EasyManua.ls Logo

Marstair CC 875 - Mhpue Wiring Diagrams; 1 Phase MHPUE 80

Marstair CC 875
68 pages
Print Icon
To Next Page IconTo Next Page
To Next Page IconTo Next Page
To Previous Page IconTo Previous Page
To Previous Page IconTo Previous Page
Loading...
32
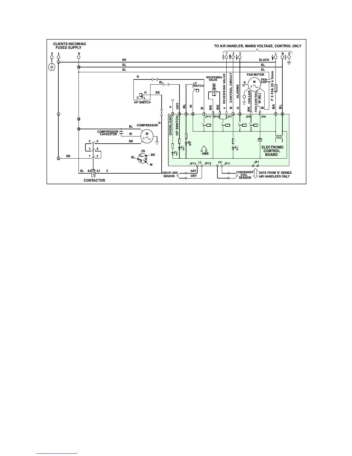
MHPUE WIRING DIAGRAMS
1 Phase MHPUE 80
Heronhill - for all your Marstair requirements
Tel: 01823 665660
www.heronhill.co.uk
Fax: 01823 665807

Table of Contents

Related product manuals