EasyManua.ls Logo

MAVIG CT Expres - Technical Description; Ceiling Column Length

MAVIG CT Expres
54 pages
Print Icon
To Next Page IconTo Next Page
To Next Page IconTo Next Page
To Previous Page IconTo Previous Page
To Previous Page IconTo Previous Page
Loading...
Page 47 of 54 5100054 BND01O03.docx
13. Technical Description
13.1. Ceiling Column Length
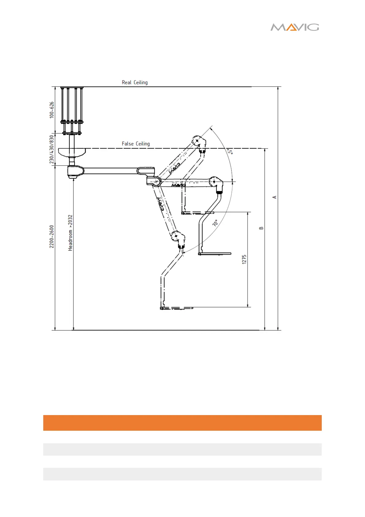
Figure 46 Ceiling Mount Height
The ceiling mount must be positioned as depicted in Figure 46 to ensure the specified
working height and enough headroom:
1. The bottom end of the ceiling column must be located at 2200 - 2600 mm above the
floor.
2. If a substructure is used it must not protrude out of the false ceiling.
3. Choose either a ceiling column with an appropriate length or a combination of a
substructure with a ceiling column:
Components Length
Ceiling Column 200 mm 230 mm
Ceiling Column 400 mm 430 mm
Ceiling Column 800 mm 830 mm
Substructure MAVIG TS1524 100-626 mm

Table of Contents

Related product manuals