EasyManua.ls Logo

Mircom TX3-200-4U-C - Universal Enclosure Installation Guide

Mircom TX3-200-4U-C
101 pages
Print Icon
To Next Page IconTo Next Page
To Next Page IconTo Next Page
To Previous Page IconTo Previous Page
To Previous Page IconTo Previous Page
Loading...
Enclosure Installation
TX3 Telephone Access System Installation and Operation Manual 19
2.2.1 Installing the Universal enclosure
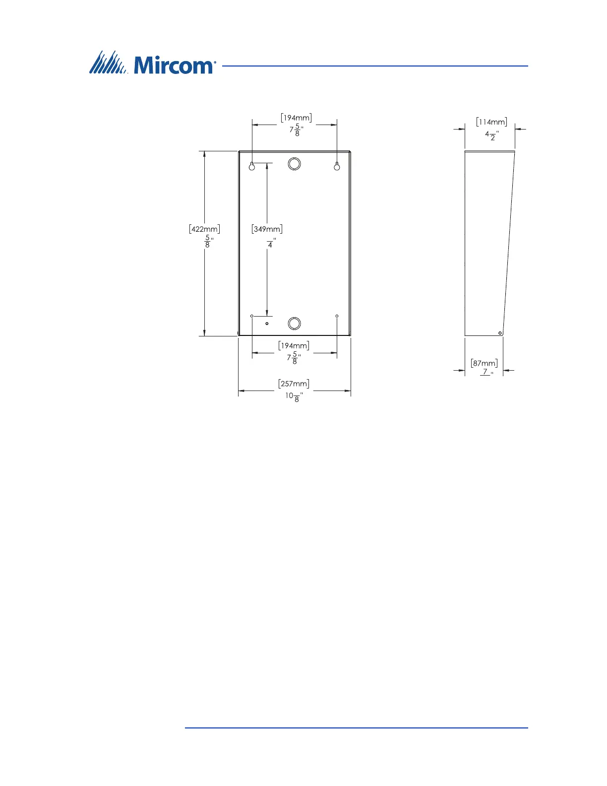
Figure 1. TX3-200-8U-C, TX3-1000-8U-C, TX3-2000-8U-C, TX3-120U-C
Dimensions
The Universal enclosure mounts inside the wall with or without the TX3-UFT
Universal Series Flush Trim Ring TX3-UFT. This Trim Ring houses the
universal series enclosure as shown in figure 3.
16
13
3
1
1
3
16

Table of Contents

Other manuals for Mircom TX3-200-4U-C

Related product manuals