EasyManua.ls Logo

Mitsubishi LANCER EVOLUTION-IV 1998

Mitsubishi LANCER EVOLUTION-IV 1998
526 pages
To Next Page IconTo Next Page
To Next Page IconTo Next Page
To Previous Page IconTo Previous Page
To Previous Page IconTo Previous Page
Loading...
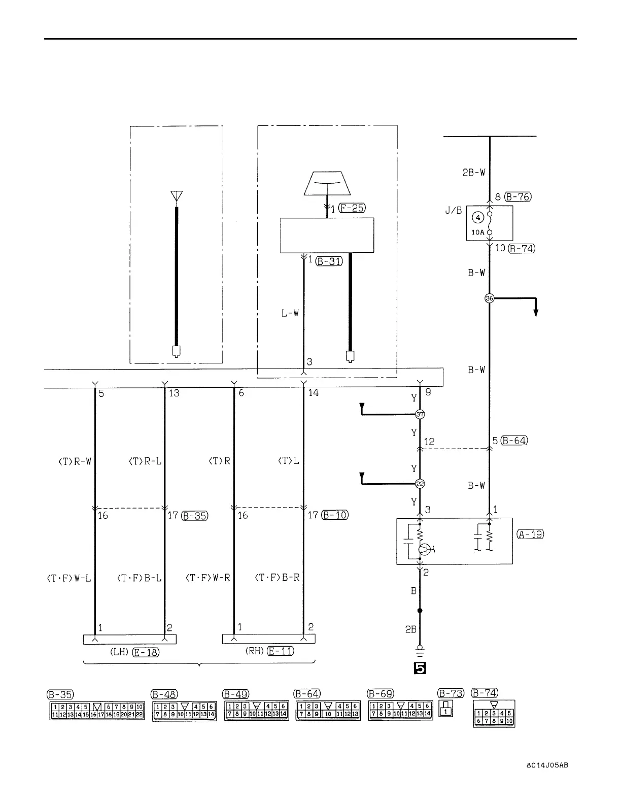
CIRCUIT DIAGRAM Spare Connector for Radio
<VEHICLES WITH
POLE ANTENNA>
POLE
ANTENNA
ANTENNA
FEEDER
LINE
<VEHICLES WITH
GLASS ANTENNA>
REAR WINDOW
GLASS ANTENNA
GLASS ANTENNA
AMPLIFIER
ANTENNA
FEEDER
LINE
METER AND GAUGE
SPARE CONNECTOR FOR
DOOR SPEAKER
IGNITION SWITCH (IG1)
SUNROOF
SEAT BELT
WARNING LAMP
VEHICLE
SPEED
SENSOR
ENGINE CONTROL
SYSTEM
C-69

Table of Contents

Related product manuals