EasyManua.ls Logo

Mocom millenium B2 - Electrical Diagram (Board Type T)

Mocom millenium B2
96 pages
Print Icon
To Next Page IconTo Next Page
To Next Page IconTo Next Page
To Previous Page IconTo Previous Page
To Previous Page IconTo Previous Page
Loading...
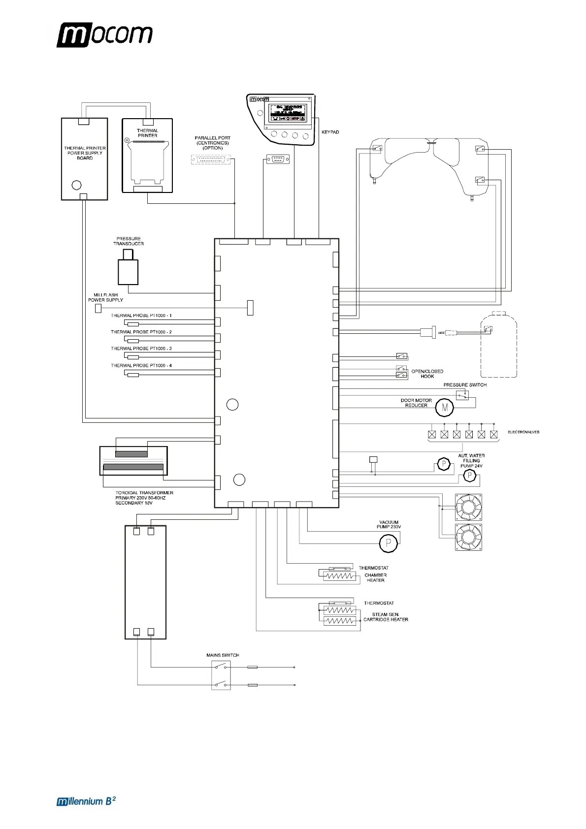
APPENDIX F – DIAGRAMS
87
ELECTRICAL DIAGRAM (BOARD TYPE “T”)
MAINS FILTER
BOARD
DOOR
SWITCH
FAN 24V
JACK FOR MAX LEVEL
PROBE CONNECTION ON
EXTERNAL TANK (OPTION)
LCD
LCD
KEYBOARD
Flowmeter
SC+SC-SS+SSE
DoorDoor lock
Motor lock
EV1 EV2 EV3
EV4 EV5
EV6
STEAM GEN.
PUMP
24V
F 16A
ELECTRONIC
BOARD
TYPE “T”
EC output
Aux pump
Pump injection
Fan
Vac uum pu mp
Bandage
Generator
Line
P-traf o
S-trafo AC-LPT
F1
6.3A T
F2
3.15A T
PT1
PT2
PT3PT4
MPX
Datalogger
Flash/serial
RS232
DISTILLED WATER
USED WATER
MAX
MAX
MIN
SERIAL
PA R A L L E L
RESERVOIRS
FUSE PTR
T 4A
F 16A
220-240V
50-60HZ
START/STOP
MILLDROP

Table of Contents

Related product manuals