EasyManua.ls Logo

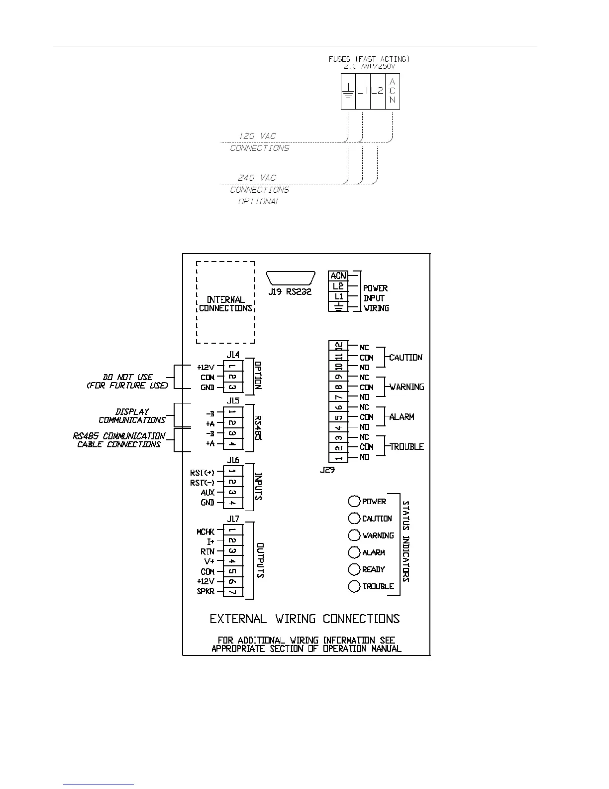
MSA Chemgard - Figure B-4. Chemgard Relay Module Power Wiring Diagrams for 120 Volts and 240 Volts AC

MSA Chemgard
74 pages
Print Icon
To Next Page IconTo Next Page
To Next Page IconTo Next Page
To Previous Page IconTo Previous Page
To Previous Page IconTo Previous Page
Loading...
Appendix B, Relay Module
Chemgard Infrared Gas Monitor
B-3
Figure B-4. Chemgard Relay Module Power Wiring
Diagrams for 120 Volts and 240 Volts AC
Figure B-5. Chemgard Infrared Gas Monitor
Communication Cable Connections

Table of Contents

Related product manuals