EasyManua.ls Logo

Notifier XPIQ - XPIQ-RMI Remote Microphone Interface Installation

Notifier XPIQ
80 pages
Print Icon
To Next Page IconTo Next Page
To Next Page IconTo Next Page
To Previous Page IconTo Previous Page
To Previous Page IconTo Previous Page
Loading...
Installation Circuit Connections
52 XPIQ PN 51013:C 7/01/03
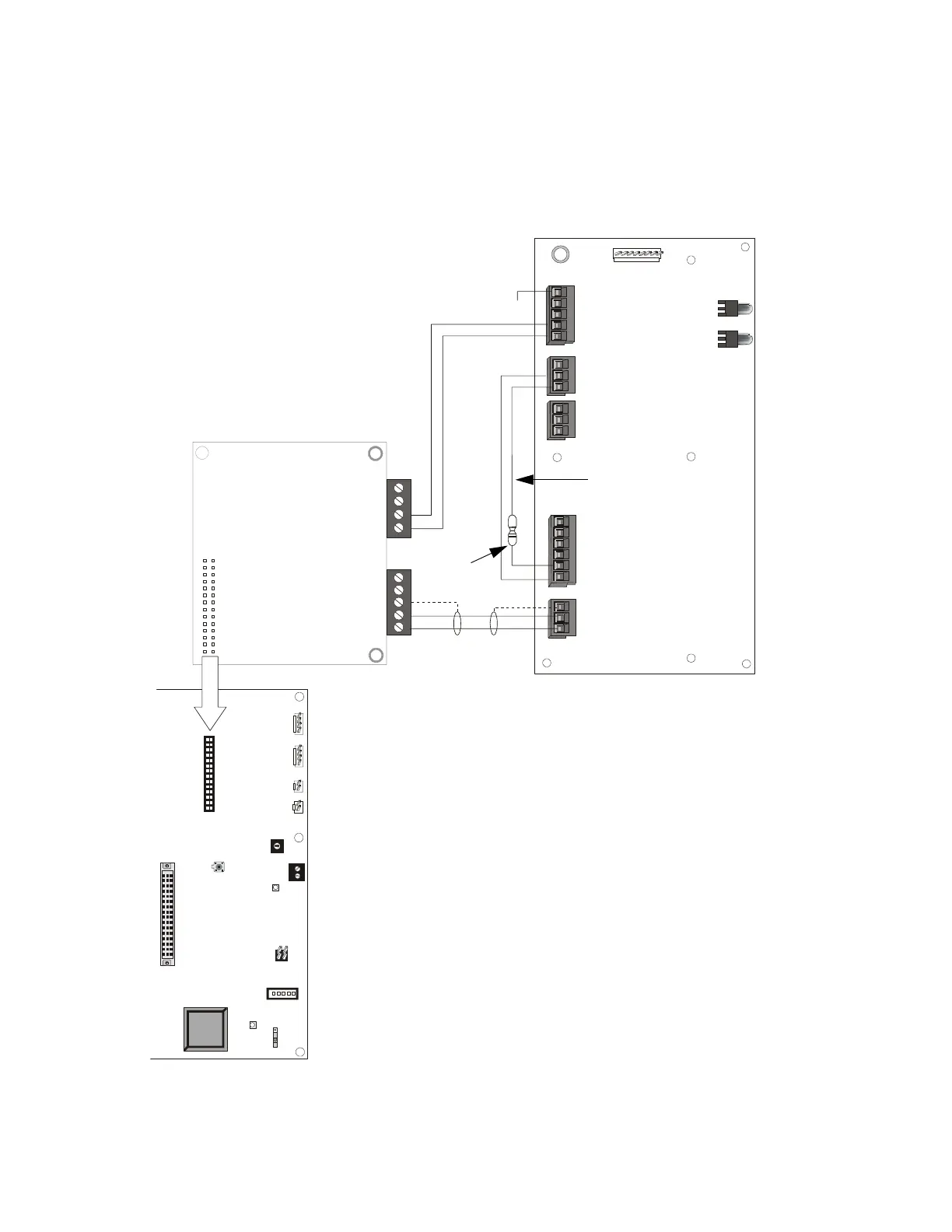
2.5.6 XPIQ-RMI Remote Microphone Interface
The Remote Microphone Interface board plugs into connector J8 on the XPIQ-MB motherboard
and mounts to three supplied standoffs installed on the XPIQ-MB motherboard. The XPIQ-RMI
provides a connection for an RM-1/RM-1SA microphone which can be remotely located up to
1,000 feet (300 m) from the XPIQ-RMI.
J7
J6
J11 J12
J13
TB10
SW4
JP1
JP2
SW1
SW5
EARTH FAULT
DETECTION
EARTH
FAU LT
GEN TBL
DISABLED
ENABLED
P6
Low Level
Backup IN
Remote
Out
BCKGND
MUSIC
Remote
In
Low Level
Backup OUT
J8
CONTROL/COMM
1 2
5
6
7
8
9
0
1
2
3
4
TB1
LED 1
LED 2
J1
TB2
TB3
TB4
TB5
5
4
3
2
1
4
3
2
1
TB2
TB1
E
Figure 2.29 XPIQ-RMI Remote Microphone Interface
XPIQ-MB
XPIQ-RMI Mounts parallel to XPIQ-
MB (Component side of XPIQ-RMI
board faces down as illustrated.)
XPIQ-RMI
RM-1 Remote Microphone Board
DC Common From XPIQ-RMI
+24 VDC From XPIQ-RMI
(+) Audio Out From RM-1
RM-1 Trouble Contact Common
(-) Audio Out From RM-1
Into RM-1 Normally Closed
Trouble Contact
R-47K
DC
+24 VDC
Twisted, shielded cable
All wiring between the XPIQ-RMI
and RM-1 Remote Microphone is
supervised.
XPQRM1in.CDR

Table of Contents