EasyManua.ls Logo

Olec OLITE - 3. Component Layout

Olec OLITE
118 pages
Print Icon
To Next Page IconTo Next Page
To Next Page IconTo Next Page
To Previous Page IconTo Previous Page
To Previous Page IconTo Previous Page
Loading...
94MS20 Rev. B4 3-1
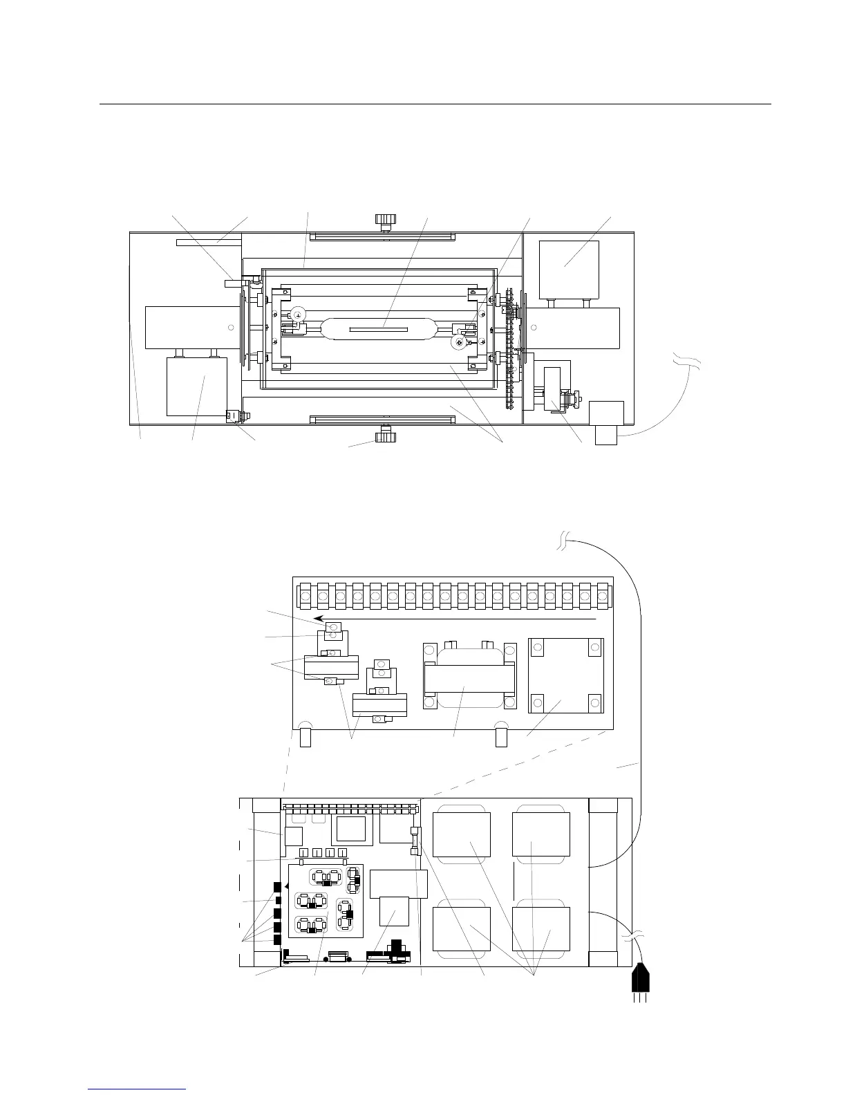
3. Component Layout
Lamphead for AL 83, 84, 84-480, 85, 56, 56-480
31MOT06
Shutter Motor
39BLO14
Blower
64MV414
Trigger Board
55SW02
Shutter Position Switch
L1280, L1281 or L1282
Replacement Lamp
55SW03
Safety Interlock SwitchBlower
63D0142B03
Lamp Support Assembly
90RF83-C
45KOB05
Knob
Interconnect Cable To
Power Supply
62SA83-B
Shutter Assembly
PA91
Photocell
39BLO14
Reflector
Power Supply for AL 83
Terminal Strip
18 1
Power
Input
Power
Output
120 VAC
Coil Voltage
32TRC03
Autoformer
33RLY18
Power Relay
33RLY04
Mercury Relay
56FUS15
3Amp 250V 3AG
Slow Blow Fuse
52FUH04
Fuse Holder
32BAL01
Ballast
39BLO03
Blower
64MV407V04
Control Board
62D127-83
Capacitors
CL 83
Interconnect Cable
To Lamphead
53JKP01
Saftey
Interlock
Jack
55SW01
Rocker
Switches
62D331
Voltage
Selection
Switch
16D0334A18
Interconnect Cable
64MV422-83
Resistor
Board

Table of Contents