EasyManua.ls Logo

Panasonic Minas A4 Series - Page 357

Panasonic Minas A4 Series
366 pages
Print Icon
To Next Page IconTo Next Page
To Next Page IconTo Next Page
To Previous Page IconTo Previous Page
To Previous Page IconTo Previous Page
Loading...
355
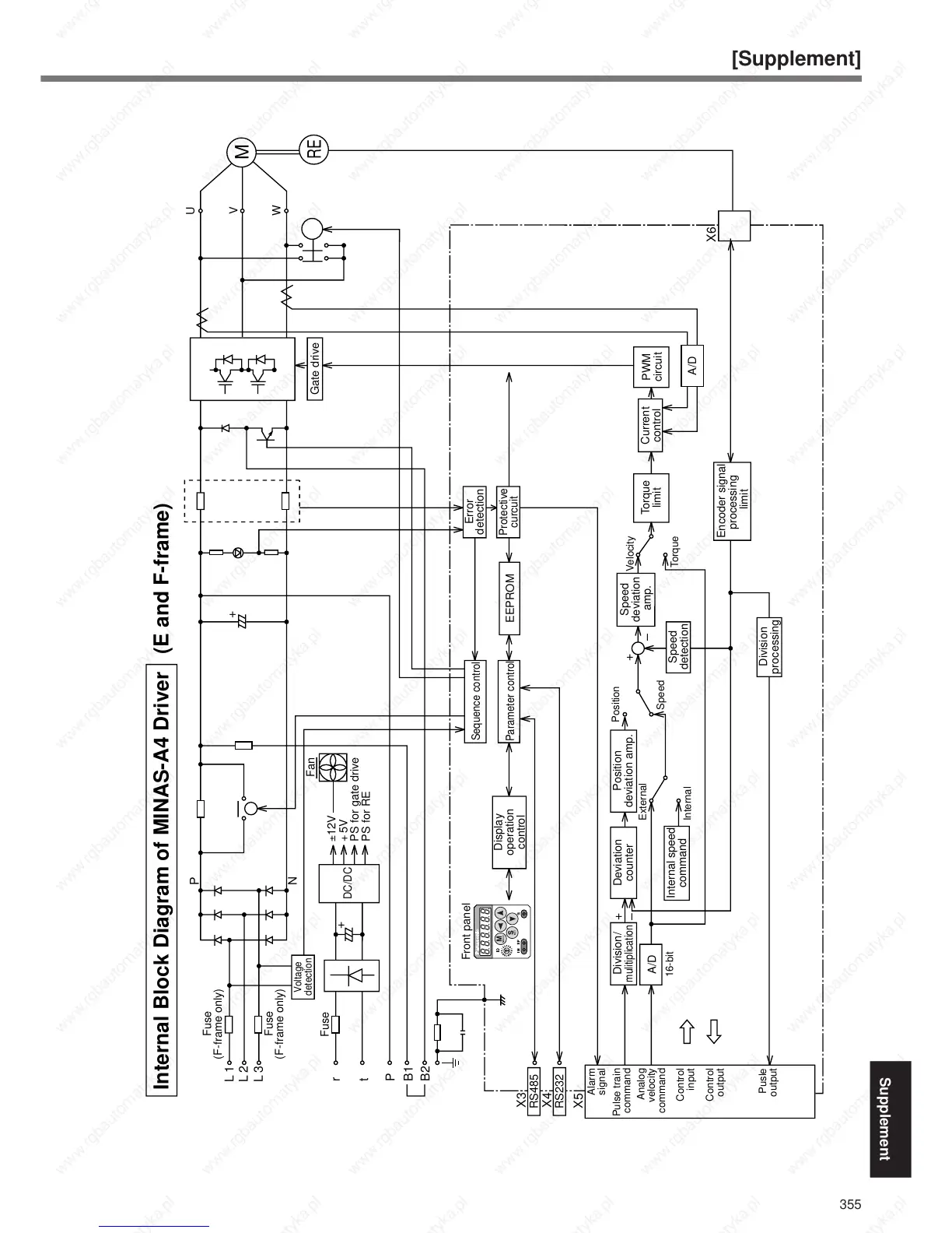
[Supplement]
Supplement
L 1
L 2
L 3
DC/DC
r
t
P
B1
X3
X4
X6
U
V
W
M
RE
X5
N
P
+
±12V
+5V
PS for gate drive
PS for RE
+
Fuse
(F-frame only)
Fuse
(F-frame only)
Fuse
Parameter control
EEPROM
Sequence control
B2
Fan
Front panel
RS485
RS232
Internal Block Diagram of MINAS-A4 Driver
Display
operation
control
Protective
curcuit
Error
detection
Alarm
signal
Pulse train
command
Pusle
output
Analog
velocity
command
Control
input
Control
output
(E and F-frame)
Voltage
detection
Division/
mulitiplication
+
+
–
–
A/D
A/D
16-bit
Position
Speed
Velocity
Torque
Internal
External
Deviation
counter
Internal speed
command
Speed
detection
Division
processing
Position
deviation amp.
Speed
deviation
amp.
Torque
limit
Current
control
PWM
circuit
Encoder signal
processing
limit
Gate drive

Table of Contents

Other manuals for Panasonic Minas A4 Series

Related product manuals