EasyManua.ls Logo

Primus DAM 9 - Models HDE007*F3000, SDE007*F3000 and UDE007*F3000

Primus DAM 9
128 pages
Print Icon
To Next Page IconTo Next Page
To Next Page IconTo Next Page
To Previous Page IconTo Previous Page
To Previous Page IconTo Previous Page
Loading...
116 516514
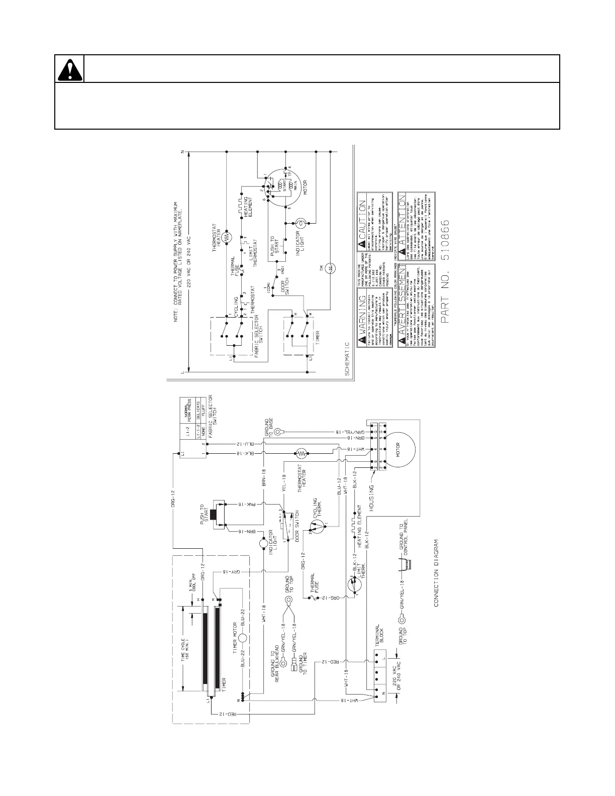
Section 8 Wiring Diagrams
Failure to install, maintain, and/or operate this machine according to the manufacturer's
instructions may result in conditions which can produce bodily injury and/or property damage.
W030
WARNING
© Copyright, Alliance Laundry Systems LLC DO NOT COPY or TRANSMIT
MODELS HDE007*F3000, SDE007*F3000 AND UDE007*F3000

Table of Contents

Related product manuals