EasyManua.ls Logo

Primus DAM 9 - Model SDG409*F3058

Primus DAM 9
128 pages
Print Icon
To Next Page IconTo Next Page
To Next Page IconTo Next Page
To Previous Page IconTo Previous Page
To Previous Page IconTo Previous Page
Loading...
96 516514
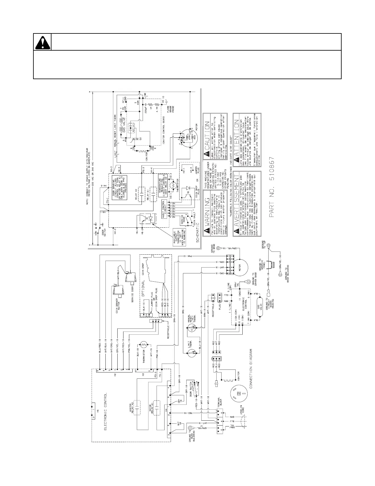
Section 8 Wiring Diagrams
Failure to install, maintain, and/or operate this machine according to the manufacturer's
instructions may result in conditions which can produce bodily injury and/or property damage.
W030
WARNING
© Copyright, Alliance Laundry Systems LLC – DO NOT COPY or TRANSMIT
MODEL SDG409*F3058

Table of Contents

Related product manuals