EasyManua.ls Logo

Primus DAM 9 - Models HDE007*G3003, HDE007*G3008, HDE007*G3010 and SDE007*G3018

Primus DAM 9
128 pages
Print Icon
To Next Page IconTo Next Page
To Next Page IconTo Next Page
To Previous Page IconTo Previous Page
To Previous Page IconTo Previous Page
Loading...
516514 117
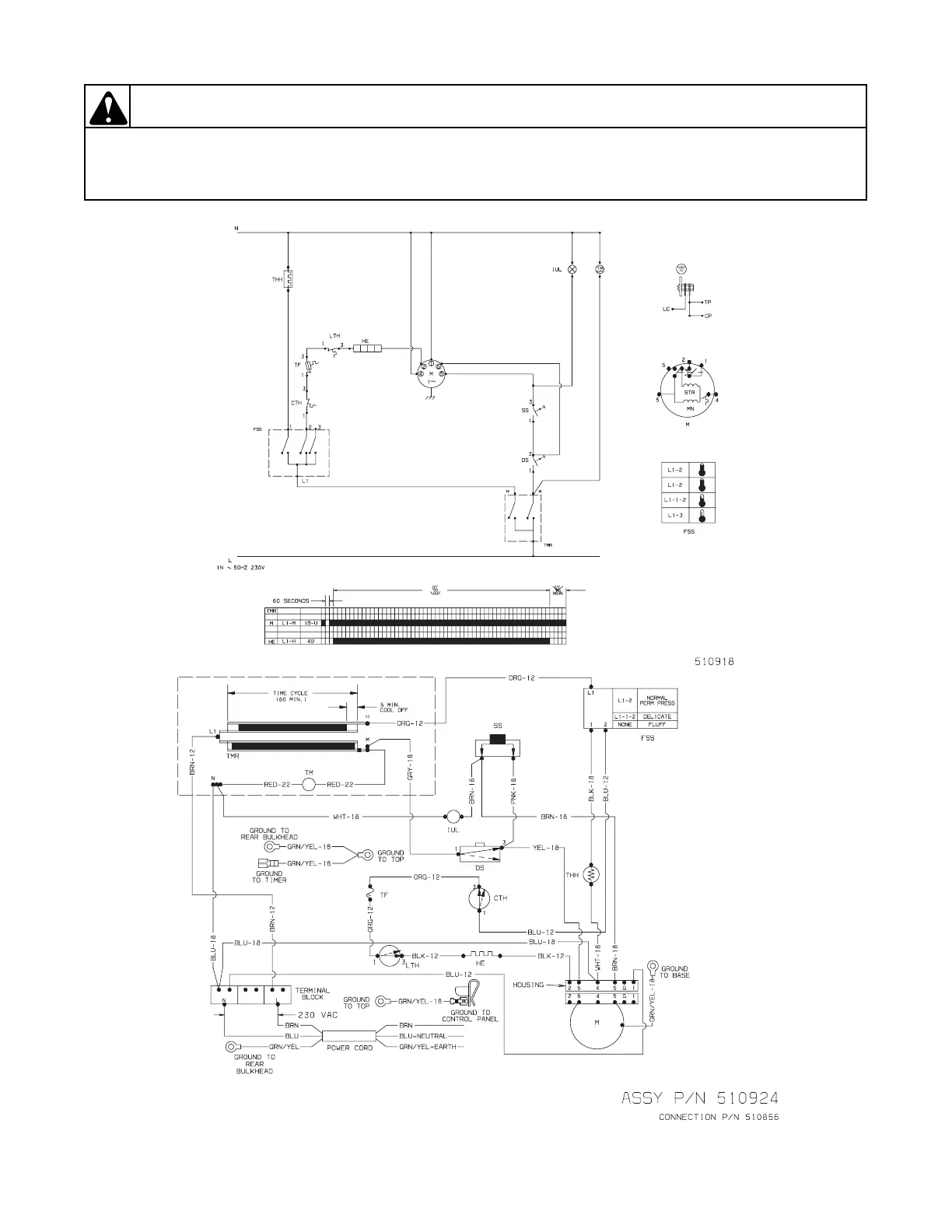
Section 8 Wiring Diagrams
Failure to install, maintain, and/or operate this machine according to the manufacturer's
instructions may result in conditions which can produce bodily injury and/or property damage.
W030
WARNING
© Copyright, Alliance Laundry Systems LLC DO NOT COPY or TRANSMIT
MODELS HDE007*G3003, HDE007*G3008, HDE007*G3010 AND SDE007*G3018

Table of Contents

Related product manuals