EasyManua.ls Logo

Riello 20148874 - Burner Description

Riello 20148874
88 pages
Print Icon
To Next Page IconTo Next Page
To Next Page IconTo Next Page
To Previous Page IconTo Previous Page
To Previous Page IconTo Previous Page
Loading...
20152192
10
GB
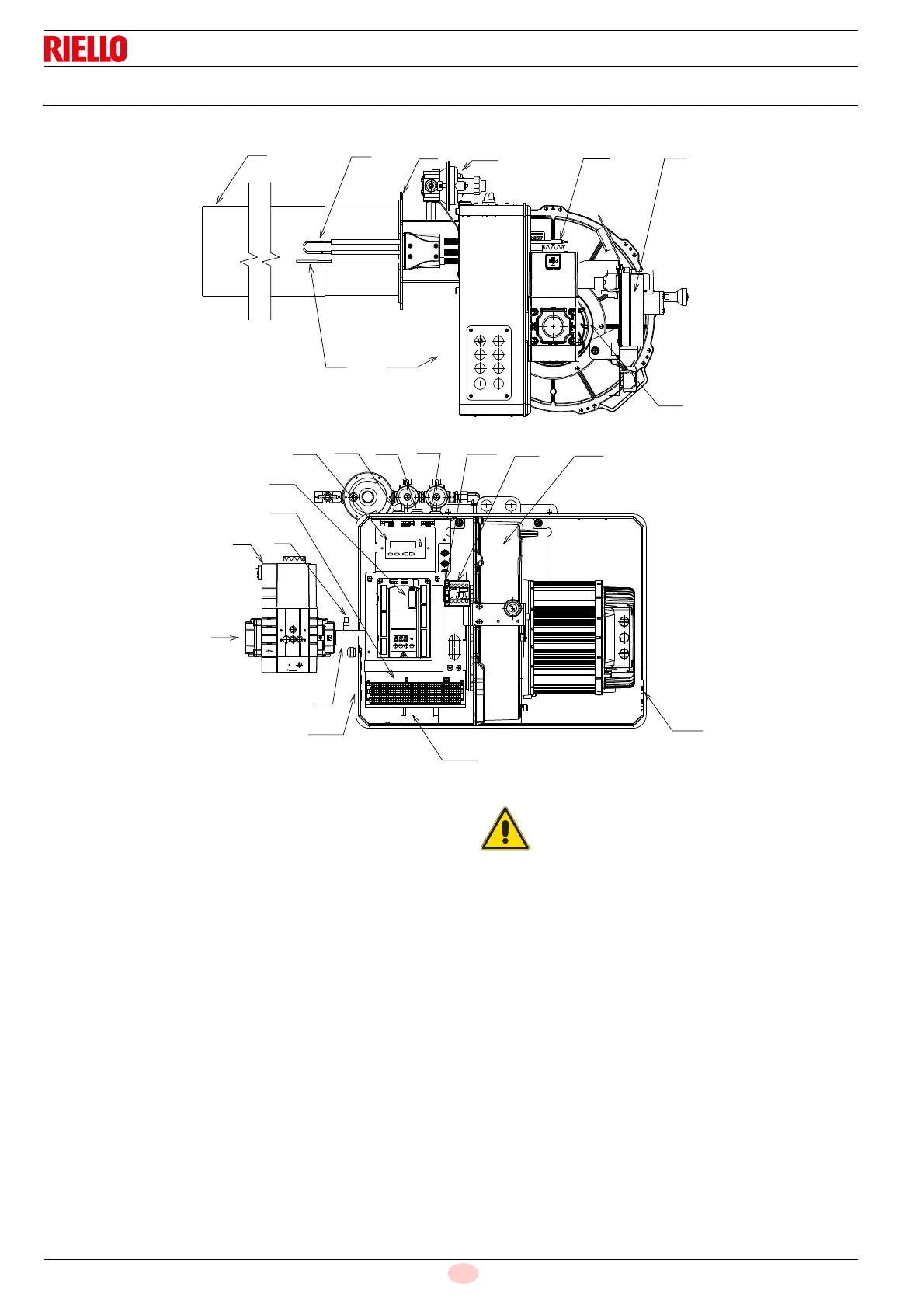
Technical description of the burner
4.7 Burner description
1 Combustion head
2 Ignition electrode
3 Flame sensor probe
4 Gas valve
5 Air/gas mixer in the suction line circuit
6 Gas pressure test point
7 Gas valve pipe
8 Gas input
9 Boiler fixing flange
10 Fan
11 Air passage in fan
12 Electrical control box
13 Luminous push-button for reset
14 Plug-socket on ionisation probe cable
15 Terminal board for electrical wiring
16 Transformer
17 Plate with 4 holes, useful for passing electric cables
18 Fuses
19 Programming card
20 ON/OFF selector
21 Light signalling of mains live state
22 Three-phase contactor fan/output relay
23 Display
24 Pilot gas train
19
4
8
7
16
17
17
21
20
23
13
10
22
15
6
1
2
3
9
14
12
5
11
24
18
20127948
Fig. 2
WARNING
Burner lockout may occur.
CONTROL BOX LOCKOUT:
if the button 13) lights up (Fig. 2) it signals that the
burner is in lockout.
Press the push button to reset.

Table of Contents

Related product manuals