EasyManua.ls Logo

Riello GITRE Series - Water Connections

Riello GITRE Series
52 pages
Print Icon
To Next Page IconTo Next Page
To Next Page IconTo Next Page
To Previous Page IconTo Previous Page
To Previous Page IconTo Previous Page
Loading...
17
INSTALLATION
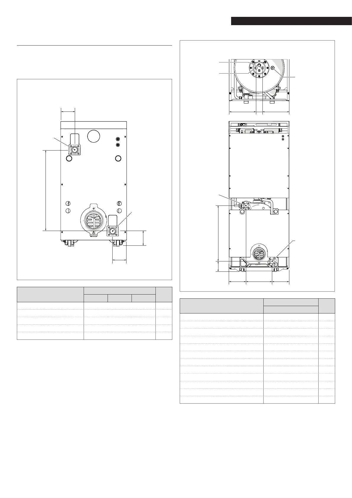
2.6 Water connections
The following gures and tables give the dimensions and po-
sitions of the water ttings for (GITRÈ and GITRÈ B/100) boilers.
Before installing the boiler, ush out all the pipes of the central
heating circuit to remove any machining residues.
GITRÈ
MI
RI
A
A
B
C
DESCRIPTION
GITRÈ
GITRÈ 4 GITRÈ 5 GITRÈ 6
A 96 mm
B 103 mm
C 555 mm
MI (CH ow) 1"1/4 F Ø
RI (CH return) 1"1/4 F Ø
GITRÈ B/100
AA B
D
C
GE F
MI
US
ES
RC
RI
DESCRIPTION
GITRÈ
GITRÈ 5 B/100
A 170 mm
B 260 mm
C 555 mm
D 103 mm
E 267,5 mm
F 65 mm
G 267,5 mm
MI (CH ow) 1"1/4 M Ø
RI (CH return) 1"1/4 M Ø
US (DHW outlet) 3/4” M Ø
RC (DHW recirculation) 3/4" F Ø
ES (domestic cold water inlet) 3/4” M Ø

Related product manuals