EasyManua.ls Logo

Rotex RKHBH008AA - Hoofdcomponenten Schakelkast; Functioneel Schema

Default Icon
Print Icon
To Next Page IconTo Next Page
To Next Page IconTo Next Page
To Previous Page IconTo Previous Page
To Previous Page IconTo Previous Page
Loading...
RKHBH/X008AA
Binnenunit voor lucht-water-warmtepompsysteem
4PW50203-1A
Montagehandleiding
7
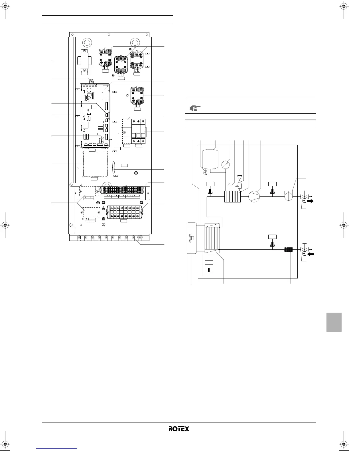
Hoofdcomponenten schakelkast
1. Schakelcontacten backupverwarming K1M, K2M en K5M
2. Hoofdprintplaat
De hoofdprintplaat regelt de werking van de unit.
3. Schakelcontact boosterverwarming K3M (alleen voor installaties
met tank voor warm water voor huishoudelijk gebruik)
4. Stroomonderbreker boosterverwarming F2B (alleen voor
installaties met tank voor warm water voor huishoudelijk
gebruik)
De stroomonderbreker beschermt de boosterverwarming in de
tank voor warm water voor huishoudelijk gebruik tegen
overbelasting of kortsluiting.
5. Stroomonderbreker backupverwarming F1B
De stroomonderbreker beschermt het elektrisch circuit van de
backupverwarming tegen overbelasting of kortsluiting.
6. Klemmenstroken
De klemmenstroken zorgen voor een gemakkelijke aansluiting
van de lokale bedrading.
7. Bevestigingen voor kabelbinders
Met de bevestigingen voor kabelbinders kan de lokale bedrading
met kabelbinders aan de schakelkast worden bevestigd voor
trekontlasting.
8. Klemmenstroken X3M, X4M (alleen voor installaties met tank
voor warm water voor huishoudelijk gebruik)
9. Zekering printplaat FU1
10. DIP-schakelaar SS2
De DIP-schakelaar SS2 biedt 4 schakelaars voor de configuratie
van bepaalde installatieparameters. Zie "Overzicht instellingen
DIP-schakelaar" op pagina 15.
11. X13A-aansluiting
De K3M-stekker wordt aangesloten op de X13A-aansluiting
(alleen voor installaties met tank voor warm water voor
huishoudelijk gebruik).
12. X9A-aansluiting
De thermistorstekker wordt aangesloten op de X9A-aansluiting
(alleen voor installaties met tank voor warm water voor
huishoudelijk gebruik).
13. In-line zekering FU2
14. Transformator TR1
15. A4P
Adreskaart zonnekit/remote alarm (alleen voor installaties met
kit voor remote alarm).
Functioneel schema
7
2-way valve
TR1
TR1
14
12
11
10
9
15
8
1
2
3
4
5
6
6
7
X9A
X13A
SS2
K1M
K2M
K5M
K3M
F2B
F1B
X2M
X3M
X4M
A4P
A1P
K1M
K2M
K5M
K3M
F2B
F1B
X1M
A4P
A1P
12
X4M
X2M
X3M (230V)
L1 L2
LN
thermostat 3-way valve
thermal
fuse
OPTIONAL
Q2L
8910111213 14 15 16 17 181234 56
SS2
SS1
on
off
on
FU1
13
FU2
OPTION EKHW
OPTION EKHW
OPTION EKHW
OPTION EKHW
K6M
K4M
LET OP
Het elektrische bedradingsschema vindt u op de
binnenkant van het deksel van de schakelkast.
1 Buitenunit 10 Stromingsschakelaar
2 Binnenunit 11 Afsluiter wateruitlaat met
aftapkraan (lokale installatie)
3 Aftapkraan expansievat
4 Expansievat 12 Afsluiter waterinlaat met
aftapkraan (lokale installatie)
5 Manometer
6 Ontluchtingsklep 13 Filter
7 Drukveiligheidsklep 14 Warmtewisselaar
8 Vat backupverwarming
met backupverwarming
R1T
R2T
R3T
R4T
Temperatuursensoren
9 Pomp
R4T
H
2
O
t >
R3T
t >
R2T
t >
R1T
t >
10
11
12
432 5 9
13141
6 7 8
1D_IM_4PW50203-1A.book Page 7 Thursday, January 29, 2009 10:51 AM

Table of Contents

Related product manuals