EasyManua.ls Logo

Rotex RKHBH008AA - Cablajul de Legătură

Default Icon
Print Icon
To Next Page IconTo Next Page
To Next Page IconTo Next Page
To Previous Page IconTo Previous Page
To Previous Page IconTo Previous Page
Loading...
RKHBH/X008AA
Unitate interioară pentru sistem de pompă termică aer la apă
4PW50203-1A
Manual de instalare
12
Cablajul de legătură
Prezentare
Ilustraţiile de mai jos prezintă cablajul de legătură necesar dintre mai
multe părţi ale instalaţiei. Consultaţi de asemenea "Exemple tipice de
aplicaţii" la pagina 3.
Cablajul intern - Lista de componente
Consultaţi schema de conexiuni a cablajului intern furnizată cu
unitatea (în interiorul capacului cutiei de distribuţie a unităţii
interioare). Prescurtările folosite sunt prezentate mai jos.
A1P ..................Placa principală cu circuite imprimate
A2P ..................Placa cu circuite imprimate a telecomenzii(interfaţa
utilizatorului)
A3P ..................Termostat (procurare la faţa locului, PC= circuit de
alimentare intern)
A4P ..........*......Cartelă de adrese pentru alarma la distanţă
E1H..................Element al încălzitorului de rezervă 1
E2H..................Element al încălzitorului de rezervă 2
E3H..................Element al încălzitorului de rezervă 3
E4H......... #......Încălzitor auxiliar
F1B ..................Siguranţă încălzitor de rezervă
F2B ......... #......Siguranţă încălzitor auxiliar
F1T...................Siguranţă termică încălzitor de rezervă (250 V, 94ˇC)
FU1 ..................Siguranţă 3,15 A T 250 V
FU2 ..................Siguranţă 5 A T 250 V
FuR,FuS...........Siguranţă 5 A 250 V pentru placa cu circuite
imprimate a alarmei la distanţă
K1M..................Contactor încălzitor de rezervă treapta 1
K2M..................Contactor încălzitor de rezervă treapta 2
K3M......... #......Contactor încălzitor auxiliar
K5M..................Contactor pentru încălzitorul de rezervă cu separare
de contact la toţi polii
M1P..................Pompă
M2S....... ##......Ventil cu 2 căi pentru modul de răcire
M3S......... #......ventil cu 3 căi: încălzirea duşumelei/apă menajeră
caldă
PHC1 ...............Circuit de intrare cuplor optoelectronic
Q1DI.................Protector faţă de scurgerea la pământ
Q1L ..................Dispozitiv de protecţie termică încălzitor de rezervă
Q2L,Q3L . #......Dispozitiv de protecţie termică încălzitor auxiliar
R1T ..................Termistor evacuare apă schimbător de căldură
R2T ..................Termistor încălzitor de rezervă evacuare apă
R3T ..................Termistor agent frigorific pe partea de lichid
R4T ..................Termistor pe admisia apei
R5T ......... #......Termistor apă menajeră caldă
AVERTIZARE
În cablajul fix trebuie intercalat un întrerupător
principal sau un alt mijloc de deconectare cu separare
de contact la toţi polii, în conformitate cu legislaţia
locală şi naţională relevantă.
Decuplaţi alimentarea de la reţea înainte de a efectua
orice conexiune.
Tot cablajul de legătură şi toate componentele trebuie
instalate de un electrician autorizat şi trebuie să se
conformeze reglementărilor europene şi naţionale
relevante.
Cablajul de legătură trebuie executat în conformitate
cu schema de conexiuni furnizată cu unitatea şi cu
instrucţiunile date mai jos.
Aveţi grijă să folosiţi un circuit electric de alimentare
special alocat. Nu folosiţi niciodată o sursă de
alimentare în comun cu un alt aparat.
Aveţi grijă să instalaţi legătura la pământ. Nu
conectaţi împământarea unităţii la o conductă de
utilităţi, circuit absorbant de impulsuri, sau o linie de
împământare telefonică. Legarea incompletă la
pământ poate cauza electrocutare.
Aveţi grijă să instalaţi un protector faţă de scurgerea
la pământ (30 mA). Neprocedând astfel pot surveni
electrocutări.
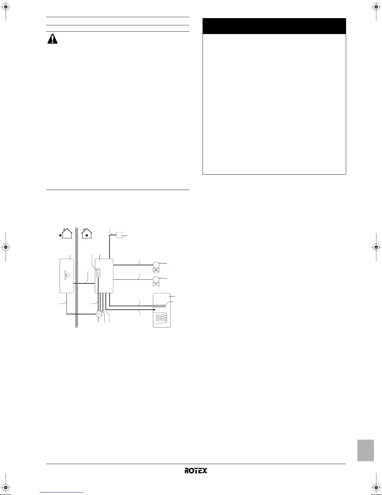
A Circuit electric unic
pentru unitatea
exterioară, încălzitorul
de rezervă şi încălzitorul
auxiliar
F Ventil cu 3 căi pentru
rezervorul de apă
menajeră caldă
(procurare la faţa
locului, opţional)
B Unitatea exterioară G Ventil cu 2 căi pentru
modul de răcire
(procurare la faţa
locului, opţional)
C Încălzitor de rezervă
D Unitatea interioară
E Termostat de încăpere
(procurare la faţa
locului, opţional)
H Rezervor de apă
menajeră caldă
(opţional)
I Încălzitor auxiliar
(opţional)
T
M
M
2
B
1 3
4
C
5
6
7
8
D
A910
E
H
I
G
F
Articol
Descriere
Număr
necesar de
conductori
Curent maxim
de regim
1 Cablu de alimentare de la reţea
pentru unitatea exterioară
2+GND
(a)
(a) Consultaţi placa de identificare de pe unitatea exterioară
2 Cablu de alimentare de la reţea
şi de comunicaţii al unităţii
interioare
3+GND
(b)
(b) Secţiunea cablului 2,5 mm
2
3 Cablul de alimentare de la
reţea al încălzitorului de
rezervă
2+GND sau
3+GND
(c)
(c) A se vedea tabelul la "Conexiunea cablului de alimentare de la reţea a
încălzitorului de rezervă" la pagina 13.
4 Cablul termostatului de
încăpere
3 sau 4
100 mA
(d)
(d) Secţiunea minimă a cablului 0,75 mm
2
5 Cablul de control al ventilului
cu 3 căi
2+GND
100 mA
(d)
6 Cablu de control al ventilului cu
2 căi
2+GND
100 mA
(d)
7 Cablu de alimentare de la reţea
şi de protecţie termică al
încălzitorului auxiliar
4+GND
(b)
8 Cablul termistorului 2
(e)
(e) Termistorul şi cablul de conexiune (12 m) sunt livrate împreună cu rezervorul de
apă menajeră caldă.
9 Cablul de alimentare de la
reţea al încălzitorului auxiliar
2+GND 13 A
10 Cablul de alimentare al reţele
de alimentare cu tarife
diferenţiate (contact fără
tensiune)
2
100 mA
(d)
1D_IM_4PW50203-1A.book Page 12 Thursday, January 29, 2009 10:51 AM

Table of Contents

Related product manuals