EasyManua.ls Logo

Rotex RKHBH008AA - Composants Principaux du Coffret Électrique; Schéma Fonctionnel

Default Icon
Print Icon
To Next Page IconTo Next Page
To Next Page IconTo Next Page
To Previous Page IconTo Previous Page
To Previous Page IconTo Previous Page
Loading...
Manuel d'installation
7
RKHBH/X008AA
Unité intérieure pour système de pompe à chaleur air à eau
4PW50203-1A
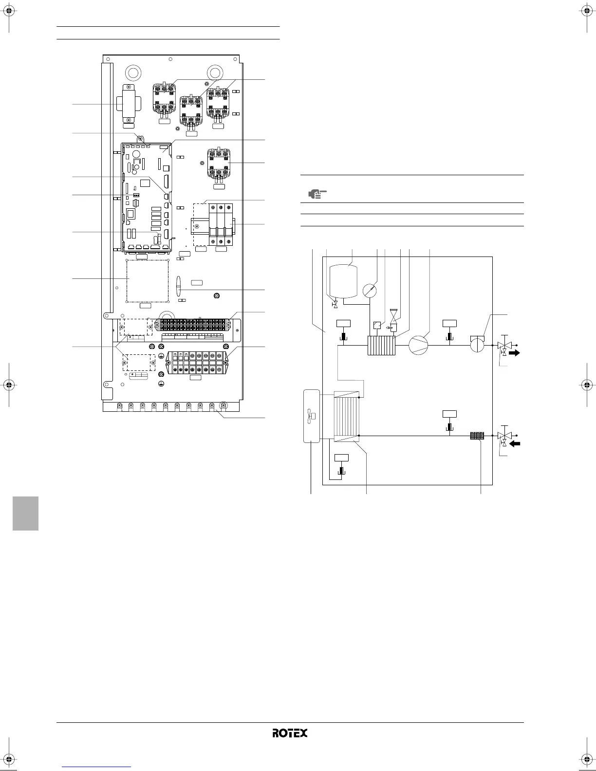
Composants principaux du coffret électrique
1. Contacteurs du chauffage d'appoint K1M, K2M et K5M
2. PCB principal
La carte de circuits imprimés principale (PCB) contrôle le
fonctionnement de l'unité.
3. Contacteur de surchauffage K3M (uniquement pour installations
avec le ballon d'eau chaude sanitaire)
4. Disjoncteur de surchauffage F2B (uniquement pour installations
avec le ballon d'eau chaude sanitaire)
Le disjoncteur protège le surchauffage dans le ballon d'eau
chaude sanitaire contre toute surcharge ou court-circuit.
5. Disjoncteur du chauffage d'appoint F1B
Le disjoncteur protège le circuit électrique du chauffage
d'appoint par rapport à une surcharge ou un court-circuit.
6. Borniers
Les borniers permettent une connexion aisée des câbles sur
place.
7. Fixations des attache-câbles
Les attache-câbles permettent de fixer le câblage local avec les
attaches au coffret électrique pour garantir la réduction des
contraintes.
8. Borniers X3M, X4M (uniquement sur les installations avec
ballon d'eau chaude sanitaire)
9. Fusible PCB FU1
10. Microcommutateur SS2
Le microcommutateur SS2 compte 4 commutateurs à bascule
pour configurer certains paramètres d'installation. Voir "Aperçu
des réglages de microcommutateur" à la page 15.
11. Prise X13A
La prise X13A accueille le connecteur K3M (uniquement pour
les installations avec ballon d'eau chaude sanitaire)
(uniquement pour les installations avec ballon d'eau chaude
sanitaire).
12. Prise X9A
La prise X9A accueille le connecteur de la thermistance
(uniquement pour les installations avec ballon d'eau chaude
sanitaire).
13. Fusible en ligne FU2
14. Transformateur TR1
15. A4P
Carte d'adresse d'alarme distante (uniquement pour les
installations avec kit d'alarme distante).
Schéma fonctionnel
7
2-way valve
TR1
TR1
14
12
11
10
9
15
8
1
2
3
4
5
6
6
7
X9A
X13A
SS2
K1M
K2M
K5M
K3M
F2B
F1B
X2M
X3M
X4M
A4P
A1P
K1M
K2M
K5M
K3M
F2B
F1B
X1M
A4P
A1P
12
X4M
X2M
X3M (230V)
L1 L2
LN
thermostat 3-way valve
thermal
fuse
OPTIONAL
Q2L
8910111213 14 15 16 17 181234 56
SS2
SS1
on
off
on
FU1
13
FU2
OPTION EKHW
OPTION EKHW
OPTION EKHW
OPTION EKHW
K6M
K4M
REMARQUE
Le schéma de câblage électrique se trouve à l'intérieur
du couvercle du coffret électrique.
1 Unité extérieure 10 Contacteur de débit
2 Unité intérieure 11 Vanne d'arrêt de sortie d'eau
avec vanne de purge
(installation sur place)
3 Vanne de purge de
vase d'expansion
4 Vase d'expansion 12 Vanne d'arrêt d'entrée d'eau
avec vanne de purge
(installation sur place)
5 Manomètre
6 Vanne de purge d'air 13 Filtre
7 Soupape de décharge
de pression
14 Echangeur thermique
8 Cuve de chauffage
d'appoint avec
chauffage d'appoint
R1T
R2T
R3T
R4T
Capteurs de température
9 Pompe
R4T
H
2
O
t >
R3T
t >
R2T
t >
R1T
t >
10
11
12
432 5 9
13141
6 7 8
1D_IM_4PW50203-1A.book Page 7 Thursday, January 29, 2009 10:51 AM

Table of Contents

Related product manuals