EasyManua.ls Logo

Rotex RKHBH008AA - Componentele Principale Ale Cutiei de Distribuţie; Diagramă Funcţională

Default Icon
Print Icon
To Next Page IconTo Next Page
To Next Page IconTo Next Page
To Previous Page IconTo Previous Page
To Previous Page IconTo Previous Page
Loading...
Manual de instalare
7
RKHBH/X008AA
Unitate interioară pentru sistem de pompă termică aer la apă
4PW50203-1A
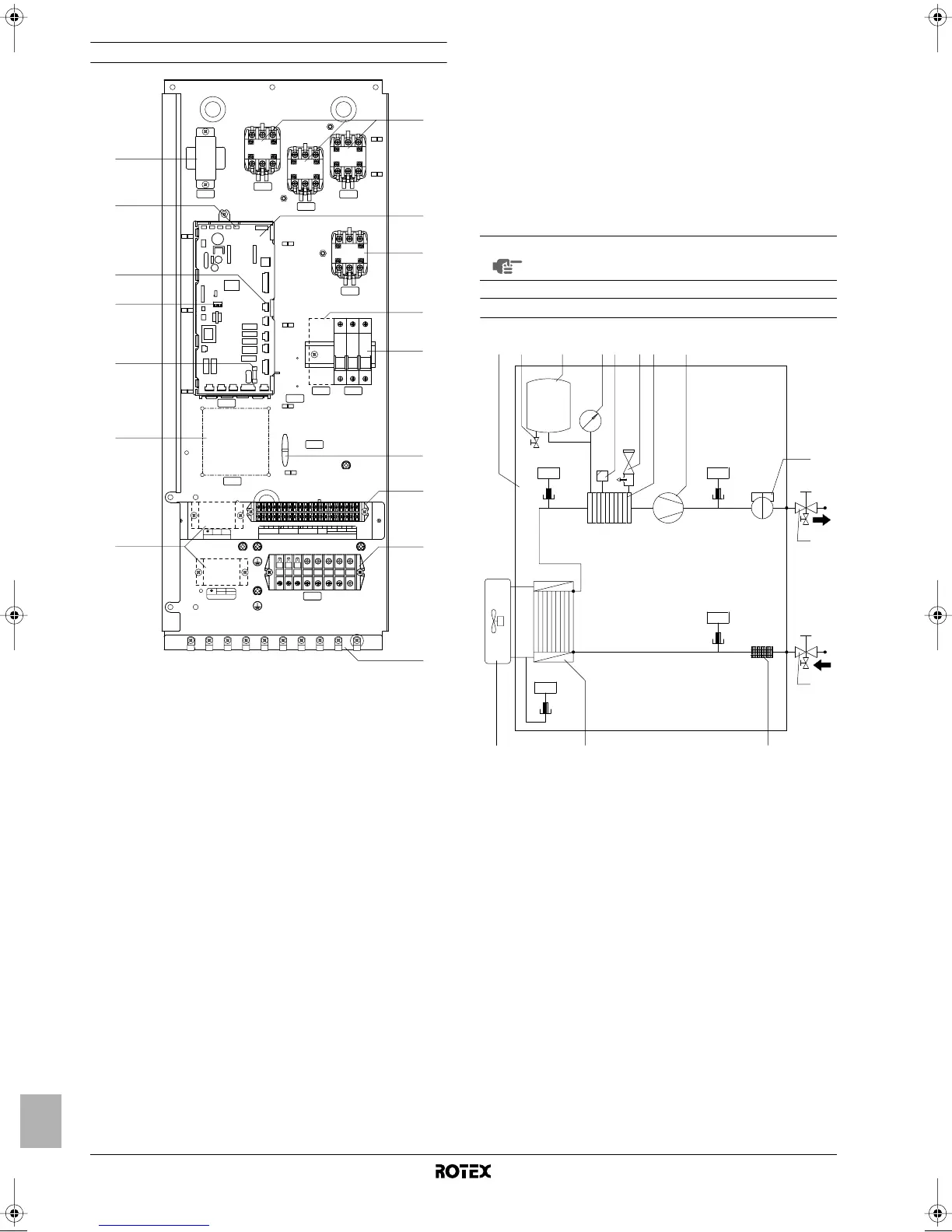
Componentele principale ale cutiei de distribuţie
1. Contactoarele K1M, K2M şi K5M ale încălzitorului de rezervă
2. Placa principală cu circuite imprimate
Placa principală cu circuite imprimate controlează funcţionarea
unităţii.
3. Contactorul K3M al încălzitorului auxiliar (numai pentru instalaţii
cu rezervor de apă menajeră caldă)
4. Disjunctorul F2B al încălzitorului auxiliar (numai pentru instalaţii
cu rezervor de apă menajeră caldă)
Disjunctorul protejează încălzitorul auxiliar din rezervorul de apă
menajeră caldă faţă de suprasarcină sau scurtcircuit.
5. Disjunctorul F1B al încălzitorului de rezervă
Disjunctorul protejează circuitul electric al încălzitorului de
rezervă faţă de suprasarcină sau scurtcircuit.
6. Reglete de conexiuni
Regletele de conexiuni permit conectarea uşoară a cablajului de
legătură.
7. Soclurile de fixare a cablurilor
Soclurile de fixare a cablurilor permit fixarea cablajului de
legătură pe cutia de distribuţie pentru a asigura eliminarea
tensionării.
8. Reglete de conexiuni X3M, X4M (numai pentru instalaţii cu
rezervor de apă menajeră caldă)
9. Siguranţa FU1 a plăcii cu circuite imprimate
10. Comutator DIP SS2
Comutatorul DIP SS2 asigură 4 comutatoare basculante pentru
configurarea anumitor parametri ai instalaţiei. A se vedea
"Prezentarea reglajelor comutatorului basculant" la pagina 16.
11. Priză X13A
Priza X13A primeşte conectorul K3M (numai pentru instalaţii cu
rezervor de apă menajeră caldă),
12. Priză X9A
Priza X9A primeşte conectorul termistorului (numai pentru
instalaţii cu rezervor de apă menajeră caldă).
13. Siguranţă pe linie FU2
14. Transformator TR1
15. A4P
Cartelă de adrese pentru alarma la distanţă (numai pentru
instalaţii cu set de alarmă la distanţă).
Diagramă funcţională
7
2-way valve
TR1
TR1
14
12
11
10
9
15
8
1
2
3
4
5
6
6
7
X9A
X13A
SS2
K1M
K2M
K5M
K3M
F2B
F1B
X2M
X3M
X4M
A4P
A1P
K1M
K2M
K5M
K3M
F2B
F1B
X1M
A4P
A1P
12
X4M
X2M
X3M (230V)
L1 L2
LN
thermostat 3-way valve
thermal
fuse
OPTIONAL
Q2L
8910111213 14 15 16 17 181234 56
SS2
SS1
on
off
on
FU1
13
FU2
OPTION EKHW
OPTION EKHW
OPTION EKHW
OPTION EKHW
K6M
K4M
NOTĂ
Diagrama circuitelor electrice poate fi găsită pe faţa
interioară a capacului cutiei de distribuţie.
1 Unitate exterioară 10 Comutator de debit
2 Unitate interioară 11 Ventil de închidere pe
evacuarea apei cu ventil de
scurgere (instalare locală)
3 Ventil de golire vas de
destindere
4 Vas de destindere 12 Ventil de închidere pe
admisia apei cu ventil de
scurgere (instalare locală)
5 Manometru
6 Ventil de purjare a aerului 13 Filtru
7 Supapă de siguranţă 14 Schimbător de căldură
8 Vasul încălzitorului de
rezervă cu încălzitorul de
rezervă
R1T
R2T
R3T
R4T
Senzori de temperatură
9 Pompă
R4T
H
2
O
t >
R3T
t >
R2T
t >
R1T
t >
10
11
12
432 5 9
13141
6 7 8
1D_IM_4PW50203-1A.book Page 7 Thursday, January 29, 2009 10:51 AM

Table of Contents

Related product manuals