EasyManua.ls Logo

Rotex RKHBH008AA - Montarea UnităţII Interioare; Instalarea Setului TăVII de Evacuare EKHBDP (Numai Pentru Modele RKHBX); Tubulatura Agentului Frigorific; Tubulatura de Apă

Default Icon
Print Icon
To Next Page IconTo Next Page
To Next Page IconTo Next Page
To Previous Page IconTo Previous Page
To Previous Page IconTo Previous Page
Loading...
Manual de instalare
9
RKHBH/X008AA
Unitate interioară pentru sistem de pompă termică aer la apă
4PW50203-1A
Montarea unităţii interioare
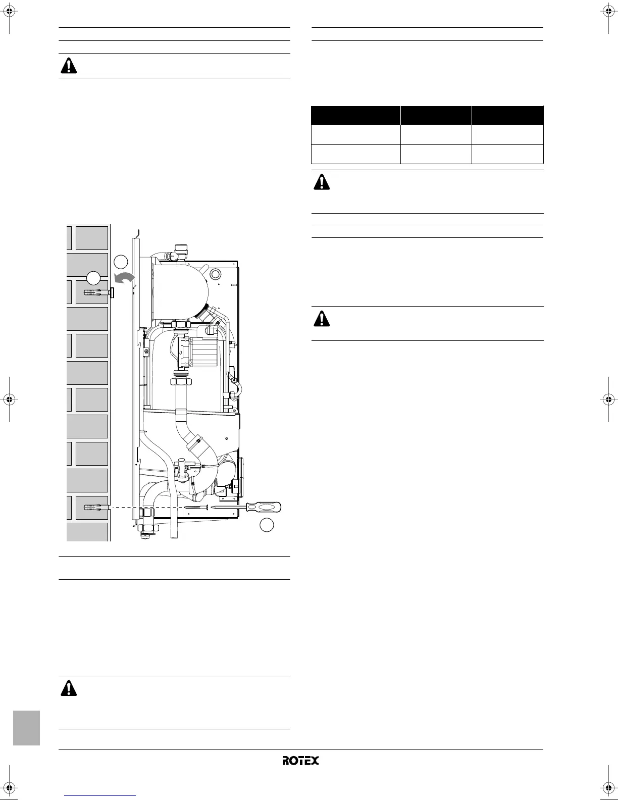
1 Fixaţi pe perete suportul de instalare pe perete utilizând diblurile
şi şuruburile corespunzătoare.
Asiguraţi-vă că suportul de instalare pe perete este orizontal.
Când unitatea nu este instalată orizontal, aerul poate fi reţinut în
circuitul de apă, cauzând funcţionarea defectuoasă a unităţii.
Acordaţi atenţie specială acestui aspect când instalaţi un model
RKHBX pentru a preveni deversarea tăvii de evacuare.
2 Atârnaţi unitatea interioară pe suportul de instalare pe perete.
3 Fixaţi unitatea interioară pe partea de fund utilizând diblurile şi
şuruburile corespunzătoare. Pentru a proceda astfel, unitatea
este prevăzută cu 2 orificii în partea de jos a muchiilor exterioare
ale şasiului.
Instalarea setului tăvii de evacuare EKHBDP
(numai pentru modele RKHBX)
În cazul modelelor pentru încălzire/răcire, trebuie să instalaţi setul
tăvii de evacuare (a se vedea "Accesorii" la pagina 2).
În timpul operaţiunii de răcire, vaporii de apă (umiditatea) din aer s-ar
putea condensa, lichidul adunându-se pe conductele reci de agent
frigorific şi apă. Această apă este colectată în tava de evacuare, care
trebuie racordată la o canalizare.
Pentru instrucţiunile de instalare, consultaţi foaia cu instrucţiuni
furnizată cu setul tăvii de evacuare.
Tubulatura agentului frigorific
Pentru toate indicaţiile, instrucţiunile şi specificaţiile privind tubulatura
agentului frigorific dintre unitatea interioară şi unitatea exterioară,
consultaţi manualul de instalare a unităţii exterioare.
Amplasarea conductei de gaz şi conductei de lichid pe unitatea
interioară este prezentată la "Componente principale" la pagina 6.
Tubulatura de apă
Verificarea circuitului de apă
Unităţile sunt echipate cu o admisie a apei şi o evacuare a apei
pentru racordarea la un circuit de apă. Acest circuit trebuie instalat de
un tehnician autorizat şi trebuie să se conformeze tuturor codurilor
europene şi naţionale relevante.
Înainte de continua instalarea unităţii, verificaţi următoarele puncte:
Presiunea maximă a apei este de 3 bar.
Două ventile de închidere sunt livrate cu unitatea. Pentru a
uşura deservirea şi întreţinerea, instalaţi unul pe racordul de
admisie a apei şi unul pe racordul de evacuare a apei în/din
unitatea interioară. Fiţi atent la poziţia ventilelor de închidere.
Orientarea ventilelor integrate de evacuare şi umplere este
importantă pentru deservire. A se vedea figura 3.
În toate punctele joase ale sistemului trebuie prevăzute robinete
de golire pentru a permite golirea completă a circuitului în timpul
întreţinerii.
Sunt prevăzute două ventile de scurgere integrate în ventilele de
închidere, şi un ventil de scurgere pe vasul de destindere pentru
a evacua apa din sistemul de apă al unităţii interioare.
Aveţi grijă să asiguraţi o evacuare adecvată a supapei de
siguranţă pentru a evita pătrunderea apei la piesele electrice.
În toate punctele înalte ale sistemului trebuie prevăzute ventile
de aerisire. Ventilele trebuie plasate în locuri uşor accesibile
pentru întreţinere. O purjă automată de aer este prevăzută în
interiorul unităţii interioare. Controlaţi ca această purjă de aer să
nu fie strânsă prea mult pentru a permite eliberarea automată a
aerului din circuitul de apă.
Aveţi grijă ca componentele instalate în tubulatura de legătură
să poată rezista la presiunea apei.
Greutatea unităţii interioare este de aproximativ 50 kg.
Pentru montarea unităţii sunt necesare două persoane.
Asiguraţi-vă că aţi plasat capătul furtunului supapei de
siguranţă în tava de evacuare. Neluarea acestei măsuri
poate cauza pătrunderea apei la piesele electrice,
provocând electrocutare sau scurtcircuitul sistemului
electric.
3
2
1
Specificaţiile tubulaturii
de agent frigorific
Unitate interioară Unitatea exterioară
Racordul conductei de gaz 15,9 mm
(5/8 ţoli)
15,9 mm
(5/8 ţoli)
Racordul conductei de
lichid
6,4 mm
(1/4 ţoli)
6,4 mm
(1/4 ţoli)
Când racordaţi conductele de agent frigorific, utilizaţi
întotdeauna două chei pentru strângerea sau slăbirea
piuliţelor! Neprocedând astfel se pot produce deteriorări
ale racordurilor tubulaturii şi scăpări.
Unitatea trebuie utilizată numai într-un sistem de apă
închis. Utilizarea într-un circuit de apă deschis poate cauza
o coroziune excesivă a tubulaturii de apă.
1D_IM_4PW50203-1A.book Page 9 Thursday, January 29, 2009 10:51 AM

Table of Contents

Related product manuals