EasyManua.ls Logo

Rotex RKHBH008AA - Page 162

Default Icon
Print Icon
To Next Page IconTo Next Page
To Next Page IconTo Next Page
To Previous Page IconTo Previous Page
To Previous Page IconTo Previous Page
Loading...
Manual de instalación
13
RKHBH/X008AA
Unidad interior para bomba de calor de aire-agua
4PW50203-1A
Cableado interno - Tabla de componentes
Consulte el diagrama de cableado interior suministrado con la unidad
(al dorso de la tapa de la caja de interruptores de la unidad interior).
Las abreviaturas utilizadas se relacionan a continuación:
A1P ................. PCB principal
A2P ................. Tarjeta de circuito impreso del control remoto
(interfaz de usuario)
A3P ................. Termostato (suministro independiente, circuito de
alimentación interna)
A4P ......... * ..... Tarjeta de dirección de alarma remota
E1H ................. Elemento del calefactor auxiliar 1
E2H ................. Elemento del calefactor auxiliar 2
E3H ................. Elemento del calefactor auxiliar 3
E4H .........# ..... Resistencia eléctrica
F1B.................. Fusible del calefactor auxiliar
F2B..........# ..... Fusible de la resistencia eléctrica
F1T.................. Calefactor auxiliar con fusible térmico (250 V, 94°C)
FU1 ................. Fusible 3,15 A T 250 V
FU2 ................. Fusible 5 A T 250 V
FuR,FuS.......... Fusible 5 A 250 V para tarjeta de circuito impreso de
la alarma remota
K1M................. Contactor del calefactor auxiliar, paso 1
K2M................. Contactor del calefactor auxiliar, paso 2
K3M.........# ..... Contactor de la resistencia eléctrica
K5M................. Contactor para la desconexión omnipolar del
calefactor auxiliar
M1P................. Bomba
M2S.......## ..... válvula de 2 vías para el modo de refrigeración
M3S.........# ..... Válvula de 3 vías: Agua caliente sanitaria para la
calefacción de suelo radiante
PHC1............... Circuito de entrada del optoacoplador
Q1DI................ Disyuntor de fugas a tierra
Q1L ................. Protección térmica del calefactor auxiliar
Q2L,Q3L..# ..... Protección térmica de la resistencia eléctrica
R1T ................. Termistor del intercambiador de calor del agua de
salida
R2T ................. Termistor del calefactor auxiliar del agua de salida
R3T ................. Termistor del lado de líquido refrigerante
R4T ................. Termistor de agua de entrada
R5T..........# .....Termistor del agua caliente sanitaria
S1L ..................Interruptor de flujo
S2S..................Contacto del suministro eléctrico a tarifa reducida
SS1..................Interruptor DIP
TR1..................Transformador 24 V para PCB
V1S..................Supresor de chispas 1
V2S..................Supresor de chispas 2
X1M-X4M.........Bloques de terminales
Instrucciones acerca del cableado de obra
La mayor parte del cableado de obra de la unidad interior debe
realizarse en el bloque de terminales del interior de la caja de
conexiones. Para acceder al bloque de terminales extraiga la
tapa de la unidad interior y el panel de mantenimiento de la caja
de conexiones; consulte al respecto el apartado "Cómo abrir la
unidad interior" en la página 5.
Los sujetacables se encuentran en la parte inferior de la caja de
conexiones. Fije todos los cables mediante sujetacables
(suministro independiente).
Es necesario utilizar un circuito de alimentación independiente
para el calefactor auxiliar.
Las instalaciones equipadas con depósito de agua caliente
sanitaria (opcional) necesitan un circuito de alimentación
independiente para la resistencia eléctrica.
Consulte el manual de instalación del depósito de agua caliente
sanitaria.
Conexión del cable de alimentación y del cable de
comunicaciones para la unidad interior
Requisitos del circuito y del cableado de alimentación
El cable de alimentación para la unidad interior viene de la unidad
exterior. La comunicación de dato a la unidad exterior tiene lugar a
través del mismo cable.
Para obtener información acerca de todas las directrices y especifi-
caciones en relación al cableado de campo entre la unidad interior y
la unidad exterior consulte el manual de instalación de la unidad
exterior.
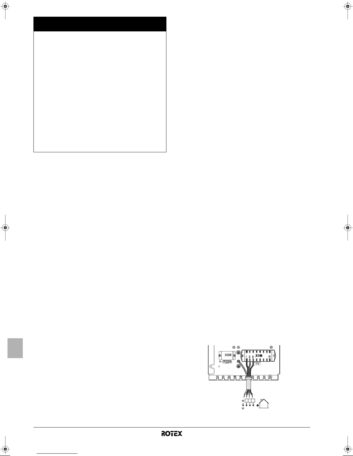
Procedimiento
1 Tomando el cable adecuado conecte el circuito de alimentación
a los terminales correspondientes tal y como se indica en el
diagrama de cableado y en la siguiente ilustración.
2 Conecte el conductor de tierra (amarillo/verde) al tornillo de
tierra en la placa de montaje de la caja de conexiones.
3 Fije el cable mediante los sujetacables a sus dispositivos de
sujeción para garantizar el alivio de tracción.
4 Cuando instale los cables, asegúrese de que éstos no
obstaculicen el montaje de la tapa de la unidad interior, consulte
la figura 3.
Nota: sólo se muestra el cableado de obra relevante.
Modelo Descripción
Número de
conductores
requerido
Corriente
máxima de
funcionamiento
1 Cable de alimentación para la
unidad exterior
2+GND
(a)
(a) Consulte la placa de especificaciones técnicas de la unidad exterior
2 Alimentación de la unidad
interior y cable de
comunicaciones
3+GND
(b)
(b) Sección del cable 2,5 mm
2
3 Cable de alimentación del
calefactor auxiliar
2+GND o
3+GND
(c)
(c) Consulte la tabla del apartado "Conexión de la alimentación del calefactor
auxiliar" en la página 14.
4 Cable del termostato de la
habitación
3 ó 4
100 mA
(d)
(d) Sección mínima del cable 0,75 mm
2
5 Cable de control de la válvula
de 3 vías
2+GND
100 mA
(d)
6 Cable de control de la válvula
de 2 vías
2+GND
100 mA
(d)
7 Alimentación de la resistencia
eléctrica y el cable de
protección térmica
4+GND
(b)
8 Cable del termistor 2
(e)
(e) El termistor y el cable de conexión (12 m) vienen suministrados con el depósito
de agua caliente sanitaria.
9 Cable de alimentación de la
resistencia eléctrica
2+GND 13 A
10 Cable de suministro de
alimentación a tarifa reducida
(contacto desenergizado)
2
100 mA
(d)
* Opcional
# Instalaciones con sólo depósito de agua caliente sanitaria
## Instalaciones de sólo calefacción/refrigeración
123
1 3
2
1D_IM_4PW50203-1A.book Page 13 Thursday, January 29, 2009 10:51 AM

Table of Contents

Related product manuals