EasyManua.ls Logo

Schlage L460 - L9010

Schlage L460
136 pages
Print Icon
To Next Page IconTo Next Page
To Next Page IconTo Next Page
To Previous Page IconTo Previous Page
To Previous Page IconTo Previous Page
Loading...
56 • Schlage • L-Series service manual
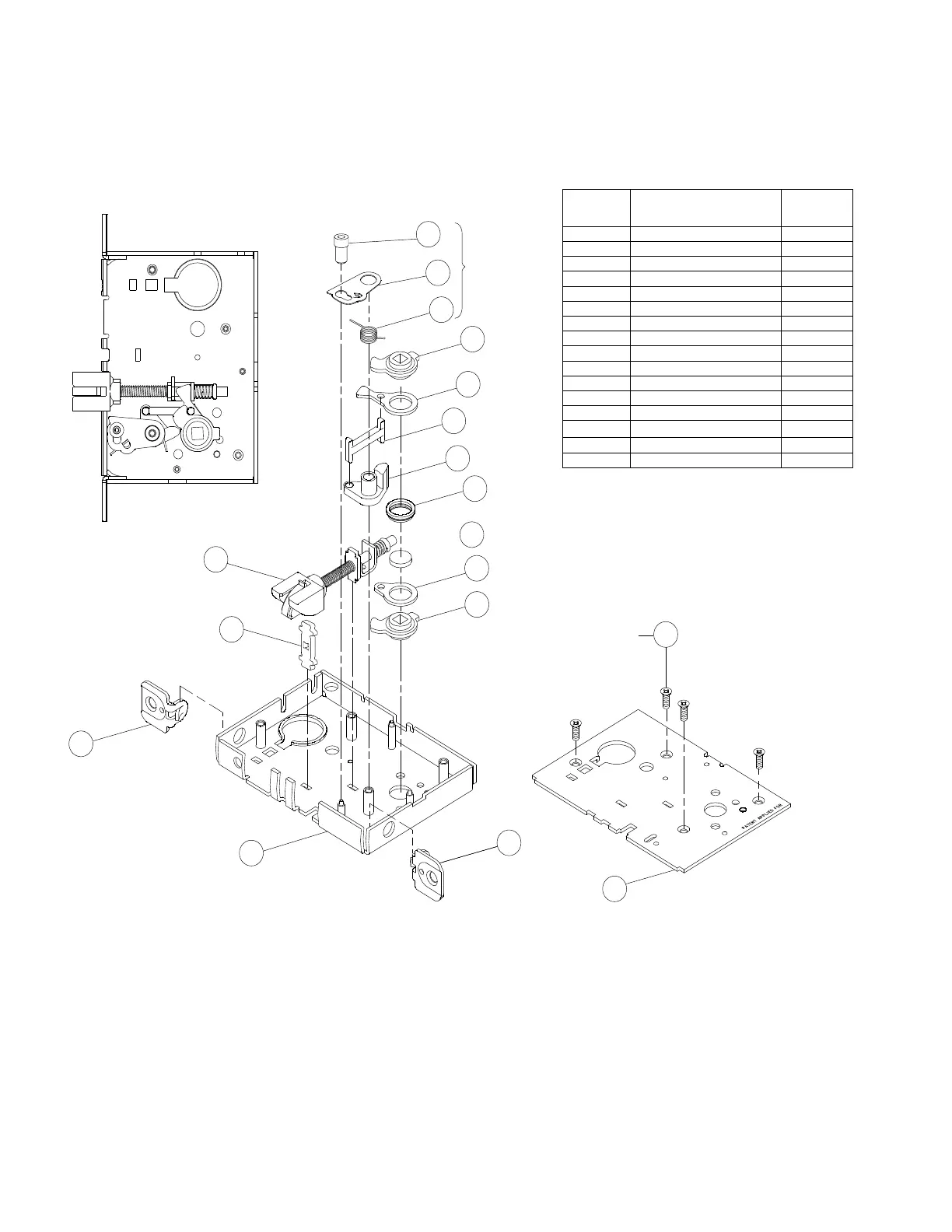
Lock case assemblies
L9010
Assembled Lock Case L283-131
Number Description
Part
Number
6 Latchbolt L283-008
13 L9000 Lock Case L283-112
17 Retractor Hub L583-019
18 Hub Spacer L583-020
19 Retractor Lever L583-021
20 Retractor Rocker L583-022
21 Blocking Plate L583-023
22 Retractor Link L583-024
23 Retractor Crank L583-025
24 Hub Spring L583-026
25 Fire Door Fuse L583-027
26 Fire Door Catch L583-028
31 Auxiliary Bar Guide L583-038
51
1
Z\v” Faceplate Tab
L583-426
52 Case Cover Screws L583-454
58 Lock Case Cover L583-496
52
4
58
25
26
24
17
19
22
23
18
21
20
17
6
51
51
13
31
**
** See "Assembly of lock case parts" on page 101.

Table of Contents

Related product manuals