EasyManua.ls Logo

Schweitzer Engineering Laboratories SEL-251 - Page 203

Schweitzer Engineering Laboratories SEL-251
208 pages
Print Icon
To Next Page IconTo Next Page
To Next Page IconTo Next Page
To Previous Page IconTo Previous Page
To Previous Page IconTo Previous Page
Loading...
Date Code 20000421 Appendix B B-1
SEL-251, -2, -3 Instruction Manual
APPENDIX B - MAIN BOARD TROUBLESHOOTING TEST
POINTS AND JUMPER LOCATIONS
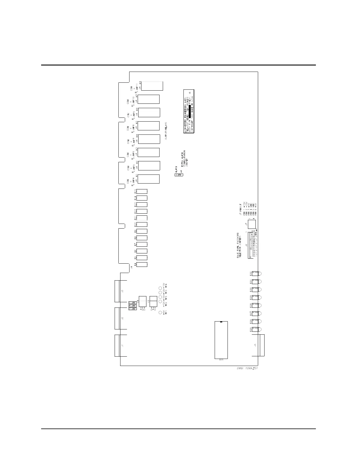
Figure B.1: SEL-251 Conventional Terminal Block Model Main Board Troubleshooting
Test Points and Jumper Locations
5-amp nominal current input main board shown (SLP chassis). The 1-amp main board (LP
chassis) has a similar layout, but the test point positions and order are different. Follow the
labels on the board.

Table of Contents

Related product manuals