EasyManua.ls Logo

Sharp LC-46LX650H - Page 101

Sharp LC-46LX650H
102 pages
Print Icon
To Next Page IconTo Next Page
To Next Page IconTo Next Page
To Previous Page IconTo Previous Page
To Previous Page IconTo Previous Page
Loading...
Appendix
101
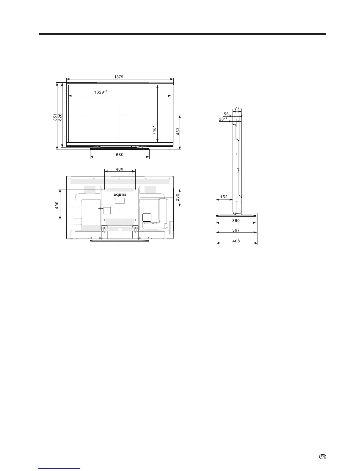
LC-60LX650H
*1 Active area
*2 Thinnest part
(Including tip prevention
brackets when stored )
(Including tip prevention
brackets when attached )
(Excluding tip prevention
brackets )

Table of Contents

Related product manuals