EasyManua.ls Logo

SICK LFP Inox - Page 59

SICK LFP Inox
68 pages
Print Icon
To Next Page IconTo Next Page
To Next Page IconTo Next Page
To Previous Page IconTo Previous Page
To Previous Page IconTo Previous Page
Loading...
OPERATING INSTRUCTIONS | LFP INOX 8019921/15H0 / 2019-09-30| SICK AG
Irrtümer und Änderungen vorbehalten
59
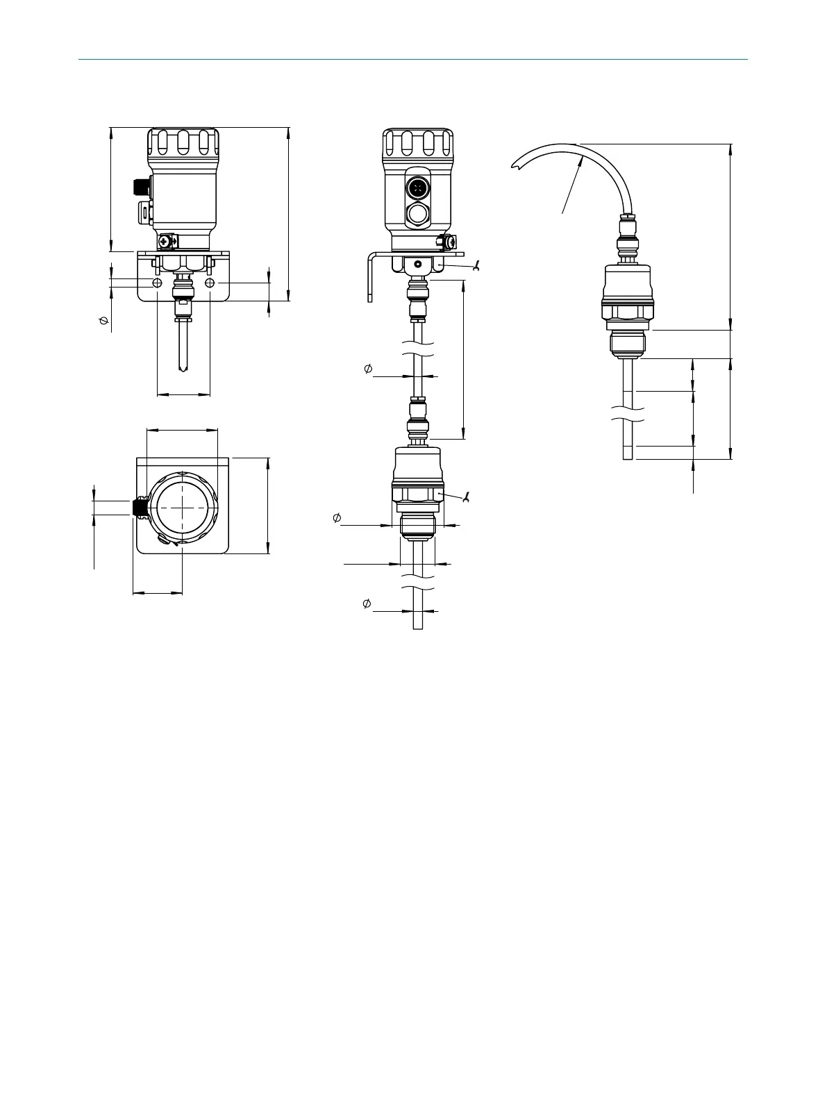
15DIMENSIONAL DRAWINGS
LFP Inox with remote amplier
132.4 (5.21)
14
(0.55)
94.4 (3.72)
40
(1.57)
6.5 (0.26)
6 (0.24)
40 (1.57)
G 3/4 A
3/4" NPT
7 (0.28)
C
36 (1.42)
36 (1.42)
73 (2.87)
38 (1.50)
M12x1
54 (2.12)
L
min. R50
22
(0.87)
142 (5.59)
IAE
IA
M
C Length of cable
M Measuring range
L Probe length
IA Inactive area at process connection 20 mm / 40 mm
IAE Inactive area at probe end 10 mm

Table of Contents

Related product manuals