EasyManua.ls Logo

Sinoboom 0607SE - Electrical Schematic

Sinoboom 0607SE
114 pages
Print Icon
To Next Page IconTo Next Page
To Next Page IconTo Next Page
To Previous Page IconTo Previous Page
To Previous Page IconTo Previous Page
Loading...
REPAIR
0607SE Maintenance Manual 6-41 © Jan 2022
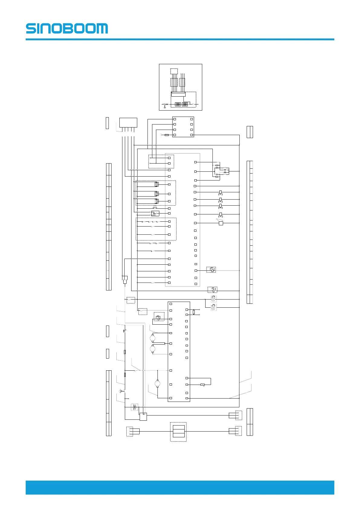
Electrical Schematic
Figure 6-42 Electrical Schematic (PN.101062063026)
-P
Manul Switch
S0
2
1
Charger
+
-
-
+
MP
Pump control motor
LMP
RMP
05x
B
B1
1
3
2
4
06
09
SA1
Brown
Black
Blue
4
3
1
Red
Yellow
Green
2
1
+BF
B+
+-
+-
V
W
U
-BATT
A-2C A-4A A-5A A-2B A-11B
A-12C
A-10B
A-1A
A-11C
A-9B A-4B
A-3C A-11A A-1B
A-1C
B-4 B-5
A-8A A-9A
A-4C
A-8C
A-7A
A-5B A-10C A-9C A-10A
A-5C
A-8B A-6A
A-6B A-7B
A-7C A-3B
Drive reducer, left
Drive reducer, right
07
SQ1
209
SQ2
210
SQ3
211
217
CANH
CANL
06
CANH
CANL
08
00
B-12
B-11
219
220
CAN1L
CAN1H
06
CANH
CANL
08
00
PLATFORM
PCBA
U6
U5
U4
L1
07
07
07
07
07
07
07
07
00
00
00
00
CAN2L
CAN2H
L
ower
Raise
DT2
DT3
DT4
DT1b
DT1a
00
302
301307
306
LB0
Ground
Right turn
Left turn
Platform lower
Platform raise
Horn
Pressure sensor 2
Pressure sensor 1
Angle sensor
Beeper
Lilt sensor
Collision
Foot Pedal
Pot holelinit switch
Down limit switch
Up limit switch
Stop
FULE2
Battery
Charger
Power supply socket
Right brake coil
308
00
00
13
10
03
QF
01
SB0
05
04
F2(10A)
03
F1(275A)
Battery
07
07
2K
2K
K1
K2
K1
A-6C
213
214
215
222
L+
R+
R-
L-
304
303
305
Relay 1
Beacon
Key switch
FULE1
Communication
00
00
Left brake
Brake
Right Brake
120 Ω
06
212
07
PCBA
02
PCU
NC
NC
NC
SQ4
HO
NC
NC
NC
NC
NO
NO
SQ5
SQ6
SQ7
SQ8
SQ9
Left brake coil
T2
T10
T24
T23
T35
T5
T22
T33
T16
T9
T17
T1
K2
T13
T6
402
401
1
3
6
4
8
2
5
7
VCC
CANH
CANL
ACC
DI
GND
GPS Model
01
F3(1A)
01
CAN1H
CAN1L
07
00
35
07
L
N
E
Charging Plug
RCBO
Power Plug
GPS Model
Option
Option
B-14
K3
K3
00
322
T18
T8
418
GND1
RT
MC Power Relay
Used when lithium battery is equipped:
Charger
24V+
Charger
24V-
Charger
CANH
Charger
CANL
+
-
-
+
GND
200A
BMS
Charger
Key Signal 24V+
Machine CANH
Machine CANL
CAN1H
CAN1L
A
B
E
C
D
K
L
1
A
B
C
2
3
4
CH1
275A
Main power switch
01
08
SQ10
NO
Hight Lift Rangr Walk
321
Option
Option
Option
Option
Option
Option
25mm2 25mm2
25mm2
25mm2
25mm2
2.5mm2
1.5mm2 1.5mm2 1mm2
8mm2
2.5mm2
0.75mm2
Option Option
Down limit switch
Collision
Foot Pedal
Pot holelinit switch
Up limit switch
Hight Lift Rangr Walk
Red
Yellow
Green
Red Yellow
Green
GND
Right turn
Left turn
Left brake
Brake
Right Brake

Table of Contents

Related product manuals