EasyManua.ls Logo

Skyjack SJ12 E - Serial Number Nameplate

Skyjack SJ12 E
92 pages
Print Icon
To Next Page IconTo Next Page
To Next Page IconTo Next Page
To Previous Page IconTo Previous Page
To Previous Page IconTo Previous Page
Loading...
12
SJ12 E, SJ16 E, SJ20 E243762ABA
Section 1 – About this Mobile Elevating Work Platform (MEWP)
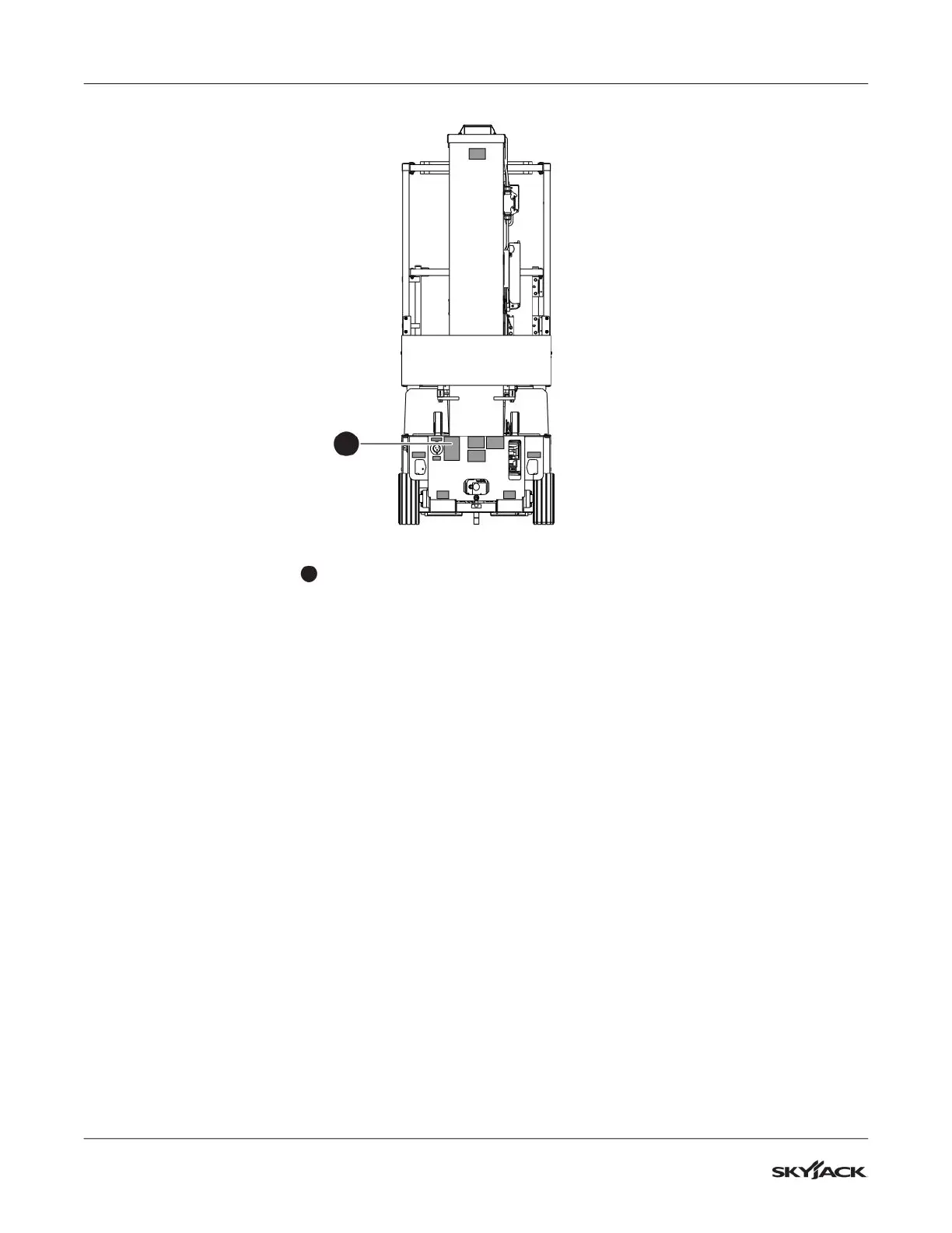
Serial number nameplate
1.3 Serial number nameplate
The serial number nameplate
1
is located at the
rear of the MEWP. It contains this information:
Model number
Type
Group
Serial number
Indoor or outdoor use
Capacity and maximum number of persons
Voltage
Maximum drive height
Maximum platform height
Maximum wind speed
Maximum manual force
Model year
MEWP weight
System pressure
Maximum incline
Year of manufacture
1

Table of Contents

Other manuals for Skyjack SJ12 E

Related product manuals