EasyManua.ls Logo

Sony KD-32NS100B - Block Diagrams

Sony KD-32NS100B
112 pages
Print Icon
To Next Page IconTo Next Page
To Next Page IconTo Next Page
To Previous Page IconTo Previous Page
To Previous Page IconTo Previous Page
Loading...
- 29 -
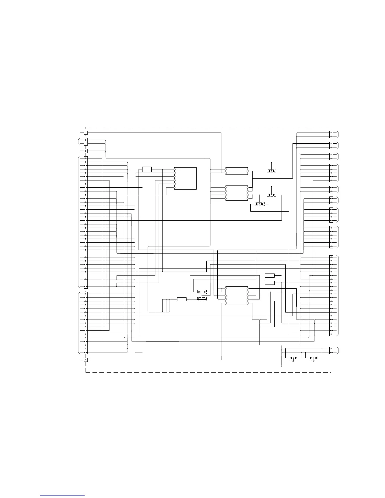
5-1. BLOCK DIAGRAMS (1)
RIGHT SP
A 1/3 ( )
PIC/SOUND
CN2000
1 15
IC1008
I/O EXPANDER
OCP
TO G BOARD
CN6006
12
13
OVP
CN1602
MAIN RY
TO G BOARD
CN6008
1
2
DGC RY
CN1703
KEY 2/SCL 3.3
TO FRONT
CONTROL
(3 PIN)
1
3
KEY 1/SDA 3.3HM(2)
HM(1)
CN1706
KEY 2/SCL 3.3
1
3
KEY 1/SDA 3.3HM(2)
HM(1)
5
SIRCS/AV INTHM(4)
6
RESP LED/RESETHM(3)
7
AV LINK
CN1702
SIRCS
TO H6 BOARD CN7100
(KD-32DX100)
TO H2 BOARD CN7150
(KD-32NS100/32NX100)
3
4
LEDHM(3)
HM(4)
CN7107
HEADPHONE R OUT
TO H3 BOARD
CN7104
1
3
HEADPHONE L OUTHP L
HP R
CN7108
AV4 CHROMA IN
TO H1 BOARD
CN7103
1
3
AV4 LUMINANCE INAV4 Y
AV4 C
AV4 LEFT IN
5
AV4 L
AV4 RIGHT IN
7
AV4 R
CN1701
HEADPHONE R OUT
TO H5 BOARD
CN7103
1
3
HEADPHONE L OUTHP L
HP R
5
AV4 C
7
AV4 LEFT IN
9
AV4 L
AV4 RIGHT IN
11
AV4 R
AV4 CHROMA IN
AV4 LUMINANCE INAV4 Y
CN1000
KEY 2
TO M3 BOARD
CN9501
4
5
CPU BUSY IN
HM (1)
6
HM (2)
7
RESP LED
8
HM (3)
AV LINK
9
KEY 1
INT COL
10
HM (4) SIRCS
13
SDA 0
AUDIO RESET
15
CK TEXT VIDEO
17
RESET 100
19
TXTBLK
21
TC LED
22
TXTB
23
BLK MB
TXTG
25
PROT
26
TXTR
27
SCL DIG
29
SDA DIG
31
VP 100
33
HP 100
35
AUDIO MUTE
39
B MB
G MB
R MB
SDA 1
SCL 1
SDA 1
SCL 1
D1008
CN1999
SCL
TO SERVICE
2
3
SDA
D1009
Q1010
Q1009
+9V
OV PROT SCL
14
SDA
3 10
PORT 2 OC PROT
4 9
DGCRY GND AUDIO PROT
5 7
PWR N RESET
CN1203
LEFT SP
1
1
3
CN1201
CN1202
1
WOOFER SP
TO SPEAKER
TO
SUBWOOFER
V PULSE IN
FBLK
3
5
CN1001
TO J BOARD
CN8805
Y MAIN IN
7
U MAIN IN
9
V MAIN IN
10
SUB C
13
SUB Y
14
D CVBS OUT
16
AV4 C OUT
17
ATV CV OUT
18
AV4 Y OUT
19
AV LINK
21
SDA
23
SCL
24
SDA 1
25
SCL 1
26
HP MUTE
31
CVBS TXT
11
HP A IN
33
HP L IN
34
AV4 R OUT
35
AV4 L OUT
36
DTV R OUT
39
DTV L OUT
40
TV R OUT
41
TV L OUT
42
ATV R OUT
43
ATV L OUT
44
MAIN R IN
45
MAIN L IN
46
AGC MON
QSS
49
AM
50
HP 100 IN
VP 100 IN
11
12
CN7109
TO B4 BOARD
CN502
Y 100 IN
14
U 100 IN
16
V 100 IN
18
DPIC
20
RESET 100
22
SCL
23
SDA
24
VP SUB OUT/Y SUB
31
V SUB OUT/C SUB
34
U SUB OUT/INT COL
36
Y SUB OUT/FB
38
Y MAIN OUT/B
42
U MAIN OUT/G
44
V MAIN OUT/R
46
VP LSE M/Y M
48
CN1604
TO G1 BOARD
CN4602
10
ACTIVE PWR
AV4 C
AV4 Y
HP R
HP L
AV4 R
AV4 L
DTV R
MAIN Y
MAIN U
MAIN V
V PULSE
N RESET SCL TV
SDA TV
EMM ISO
D1003
OVP
AGC DEF
D1004
AV PROT
OCP
Q1003
LEFT SP
RIGHT SP
WOOFER SP
1
10
IC1201
AUDIO AMPLIFIER
WOOFER
OUTPUT
STBY/MUTE
9
INPUT
WOOFER SP
WOOFER
1
9
IC1202
AUDIO AMPLIFIER
LEFT AND RIGHT
OUT S
STBY
3
OUT C
RIGHT SP
LEFT SP
14
STBY
13
6
IN S+
MUTE
8
IN C+
RIGHT
LEFT
11
MUTE
D1205
D1203
D1204
TU1001
MAIN TUNER
AGC
SCL
SDA
QS
FM/AM
VIDEO
SWITCH
Q1207
+11V
+11V
TO SHEET 3
TO SHEET 2
TO SHEET 3
TO SHEET 2
V PULSE
MAIN Y
MAIN U
MAIN V
CV TEXT
DTV L
TV R
TV L
ATV R
ATV L
MAIN R
MAIN L
V SYNC 100
H SYNC 100
Y 100
U 100
V 100
SWITCH
48
DCVBS
I2C BUS SW
I2C BUS SW
AV MUTE
H SYNC 100
V SYNC 100

Table of Contents

Related product manuals