EasyManua.ls Logo

Sony KD-32NS100B - Page 33

Sony KD-32NS100B
112 pages
Print Icon
To Next Page IconTo Next Page
To Next Page IconTo Next Page
To Previous Page IconTo Previous Page
To Previous Page IconTo Previous Page
Loading...
- 33 -
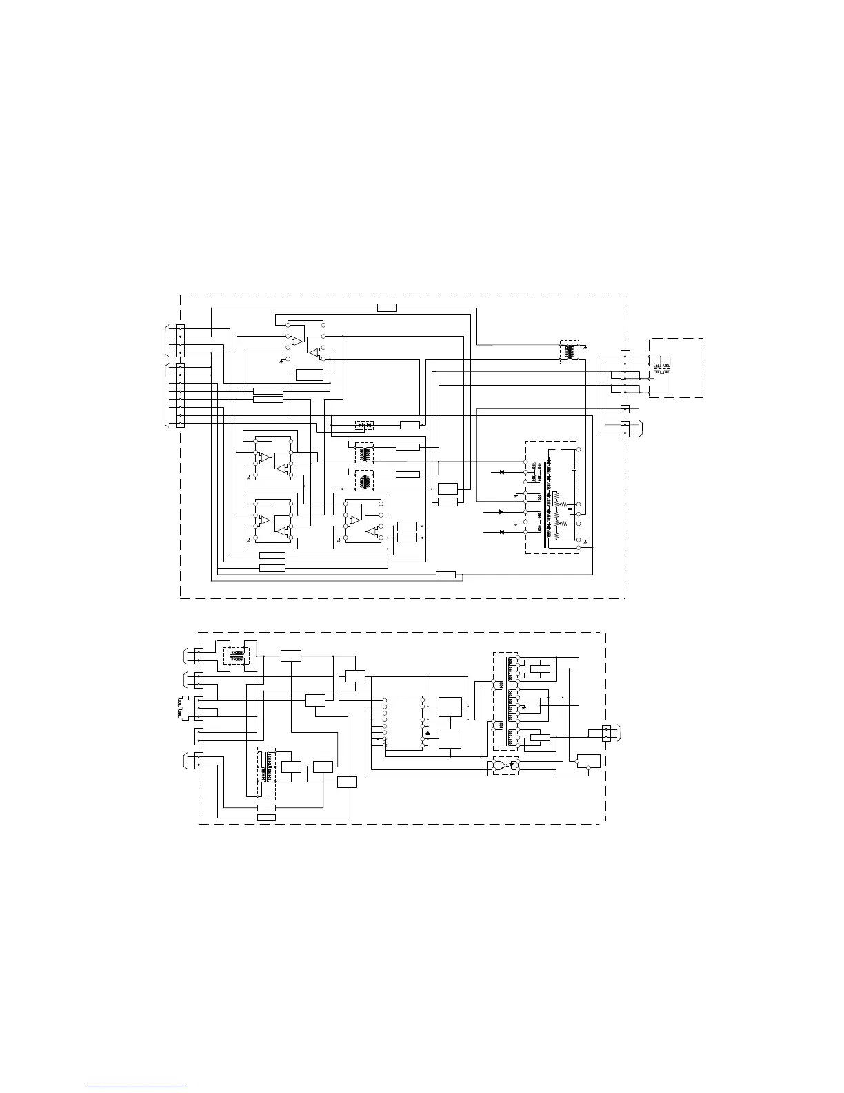
5-1. BLOCK DIAGRAMS (5)
CN8611
6
4
5
3
2
1
V -
CN8614
TO A BOARD
CN1802
V DY
V- DY+
DY ASSY
V- DY-
H DY
H- DY+
H- DY-
6
5
11
1
2
4
7
9
8
HV
12
+200V
T8800
F
SC
13
V +
H -
H +
H +
H -
1
3
5
TO C BOARD
CN5634
CN8612
V +
V -
13
24
T8852
CN8810
SWITCH Q8100,8102
TO A BOARD
CN1805
V STAT
+
-
2
3
COMPARATOR IC8100
1
4
+
-
7
6
8
5
1
2
3
4
DF DRIVE
H CENTRE
M PIN CONT
1
2
3
4
5
6
7
8
CN8620
DF PARA
MP PARA
E/W
H LIN
H DRIVE
AFC PULSE
ABL
X RAY PROTECT
+
-
2
3
COMPARATOR IC8101
1
4
+
-
7
6
8
5
SWITCH Q8136,8137
+
-
2
3
COMPARATOR IC8103
1
4
+
-
7
6
8
5
SWITCH
Q8201,
8202,8118
31
42
T8802
+
-
2
3
OP. AMP IC8102
1
4
+
-
7
6
8
5
31
42
T8801
SWITCH
Q8122
H OUT Q8804
PIN OUT Q8803
BUFFER
Q8112
SWITCH
Q8807
SWITCH Q8123
SWITCH Q8120
M PIN
CONTROL
Q8805
H LIN
Q8806
DF DRIVE
Q8851
Q8203
+8
+8
HD1
TO A BOARD
CN1807
D ( )
DEFLECTION
D8819
D8808
+15V
D8807
-15V
D8805
DGC
10
+6V
AU (+)
CN6001
RECT
D6102
AC IN
AC IN
TO F1 BOARD
CN402
G ( )
POWER
SUPPLY
1
5
CN6002
CHECK
CHECK
1
2
1
2
3
CN6003
CN6004
PFC
PFC
1
3
CN6008
MAIN RY
DGC RY
TO A BOARD
CN1602
1
2
DGC
DGC
3
1
T6003
4
2
3
1
T6101
4
2
9
7
8
RELAY
SWITCH
Q6103
11
12
13
14
15
16
17
18
1
2
3
7
9
6
8
IC6001
MAIN BRIDGE
RECTIFIER
1
V SENSE
2
F/B
CT
4RT
8
9
VC 1
OCP
3
TIMER
7
SS
6
18
16
15
14
12
10
VD
VG
VG (L)
VC 2
VS
VB
RELAY
SWITCH
Q6101
RELAY
RY6001
RELAY
RY6002
MAIN RECT
D6001
MOSFET
TRANSISTOR
USED BY
SWITCHING
CIRCUIT Q6006
MOSFET
TRANSISTOR
USED BY
SWITCHING
CIRCUIT Q6007
1
2
4
3
PH6001
T6002
RECT
D6010
RECT
D6016
1
2
IC6003
TO A BOARD
CN2000
6
5
CN6006
AU (+)
+135V
+200V
D6004
Q6104
Q6105
FOR CHECK
+11V

Table of Contents

Related product manuals