EasyManua.ls Logo

Sony RMT-D123A - System Control

Sony RMT-D123A
142 pages
Print Icon
To Next Page IconTo Next Page
To Next Page IconTo Next Page
To Previous Page IconTo Previous Page
To Previous Page IconTo Previous Page
Loading...
DVP-CX860/CX870D
4-25 4-26
SYSTEM CONTROL
MB-94 (7/10)
HD10
HD15
3300
R123
HA16
HA5
MAMUTE
HD6
HA9
4V
100u
C104
WIDE
HA7
HA1
HA15
XARPCS
10k
R120
HA20
HD7
0.01u
B
C105
HD12
0.01u
B
C103
HA12
44.1/48K
22p
C102
10k
R118
HD2
HD8
HA14
HA3
HD14
HA2
HA11
HA6
HD3
HD0
22p
C101
HA8
RB102
2
3
4
5
7
8
9
10
HA19
XFGACS
HD11
CPUCK
10k
R131
RB101
2
3
4
5
7
8
9
10
HD13
HA13
HA4
HD5
IC103
PST9126NL
123
45
HA10
HA21
0.01u
B
C107
10k
R130
HD4
HD9
HA17
HD1
HA18
HA0
0
R121
XAVDCS2
XAVDCS3
XSDSPCS
X3VRST
RD
WRH
6CH/VES_CS
2CH_CS
3300
R125
3300
R127
3300
R129
100k
R114
ARINT
AVINT
FGAINT
12k
R124
47k
R128
0.01u
B
C106
XDRVMUTE
XRST
ARPRST
AVWT
ARPWT
10k
R102
22
R104
10k
R101
XFRRST
XIFBUSY
XIFCS
SO0
SC0
SI0
+3.3V
D_GND
FL101
10k
R161
0.1u
B
C115
JL110
39INT
10k
R166
10k
R169
10k
R170
10k
R171
10k
R168
10k
R167
10k
R172
10k
R173
10k
R174
10k
R175
10k
R176
22
R184
0.01u
B
C116
BR9040F-D-E2
IC101
R/B
1
VDD
2
CS
3
SK
4
DI
5
DO
6
GND
7
WC
8
10k
R188
1k
R164
RB521S-30-TE61
D101
JL118
JL119
JL120
AURST
DACMUTE/FS
JL123
10k
R103
10k
R105
JL101
EUROV/Y/VFC1
0
R108
3300
R195
MB91108PFV-G-BND
IC102
HA17
1
HA18
2
HA19
3
HA20
4
HA21
5
HA22
6
RGBSEL
7
DACMUTE/FS
8
AVCC
9
AVRH
10
AVSS
11
AN0
12
AN1
13
AN2
14
AN3
15
XRST
16
POFF
17
CSb
18
N.C
19
EUROV/Y/VFC1
20
DISCEXT/VFC2
21
ARPRST
22
DRVMUTE
23
VCC
24
INT0
25
INT1
26
INT2
27
INT3
28
INT4
29
INT5
30
INT6
31
INT7
32
SI0
33
VSS
34
SO0
35
SC0
36
SI1
37
SO1
38
SC1
39
SI2
40
SO2
41
YUVRGB/GAIN/CKSW2
42
DREQ0
43
DACK0
44
IFCS
45
DREQ1
46
DACK1
47
EWC
48
ECS
49
KCS/39CK
50
AURST
51
VSS
52
X1
53
X0
54
VCC
55
CKSW1
56
OCSW1
57
OCSW2
58
DACCS0
59
DACCS1
60
48/44.1K
61
MAMUTE
62
WIDE
63
C
64
CS0X
65
CS1X
66
CS2X
67
CS3X
68
CS4X
69
CS5X
70
CPUCK
71
NMIX
72
HSTX
73
FRRRSTin
74
VSS
75
MD0
76
MD1
77
MD2
78
XWAIT
79
BGRNTX
80
BRQ
81
RD
82
WRH
83
N.C.
84
HD0
85
HD1
86
HD2
87
HD3
88
HD4
89
HD5
90
HD6
91
HD7
92
HD8
93
HD9
94
HD10
95
HD11
96
HD12
97
HD13
98
HD14
99
HD15
100
VSS
101
HA0
102
HA1
103
HA2
104
HA3
105
HA4
106
HA5
107
HA6
108
HA7
109
VCC
110
HA8
111
HA9
112
HA10
113
HA11
114
HA12
115
HA13
116
HA14
117
HA15
118
VSS
119
HA16
120
YUVRGB/GAIN/CKSW2
DISCEXT/VFC2
RGBSEL
FB112
12.5MHz
X101
1
2
3
POFF
1k
R132
2200
R133
HD3
HA16
HA10
HD7
HA8
HD8
HA13
HA18
HD11
HD1
HA12
HA11
HD6
HA21
HA5
HA14
HA4
HA1
HA2
HD15
HA3
HA17
HA20
HA6
HA9
HD14
HD5
HA19
HD9
HD10
HD12
HD0
HD4
HD2
HD13
HA15
HA7
RD
WRH
FLASHCE
SO2
DACK0
CMDREQ
SC1
SI2
DREQ0
SI1
SO1
DACK1
KCS/39CS
SDSPINT
DREQ1
B+
R126
1
A
B+
B+
B+
HD3
HA13
HD7
HD10
HD0
HA14
HA8
HA12
HD15
HD1
HA7
HD11
HA20
HA19
HD8
HD12
HA6
HA16
HA2
HA18
HA9
HA15
HA21
HA4
HD6
HD2
HA10
HD9
HA17
HA1
HA11
HD4
HA3
HD14
HD13
HA0
HA5
HD5
HA21
HA20
HA19
HA18
HA17
HA16
HA15
HA14
HA13
HA12
HA11
HA10
HA9
HA8
HA7
HA6
HA5
HA4
HA3
HA2
HA1
HA0
SI0
SO0
SC0
SO0
SI0
SC0
HD5
HD4
HD3
HD2
HD1
HD0
HD6
HD7
HD15
HD14
HD13
HD12
HD11
HD10
HD9
HD8
HA10
HA6
HD6
HA16
HA17
HD2
HA1
HA11
HA2
HA18
HA9
HD9
HD15
HD11
HA19
HD8
HA7
HA12
HA13
HA8
HD0
HA14
HD7
HD5
HA5
HD3
HD14
HD4
HD10
HD13
HA3
HD12
HA20
HD1
HA15
HA21
HA4
10K
10K
48
TO(9/10)
TO(5/10)
45
TO(9/10)
60
TO(10/10)
59
20
TO(1/10)
26
TO(2/10,4/10,5/10)
5
TO(1/10,2/10,5/10,8/10,9/10)
TO(1/10,2/10,8/10,9/10)
6
TO(1/10,2/10,8/10)
7
TO(2/10,8/10)
8
TO(2/10,8/10,9/10)
9
8
TO(2/10,8/10)
TO(2/10,8/10)
10
TO(1/10,2/10,5/10,8/10,9/10)
11
TO(9/10)
61
TO(8/10)
79
TO(8/10)
80
IC103
RESET
81
TO(8/10)
TO(1/10)
21
24
TO(2/10)
TO(2/10)
38
12
TO(1/10,2/10,5/10,
8/10,9/10)
13
TO(1/10)
TO(2/10)
33
56
TO(9/10)
TO(3/10)
39
58
TO(10/10)
TO(8/10)
57
TO(10/10)
55
TO(10/10)
54
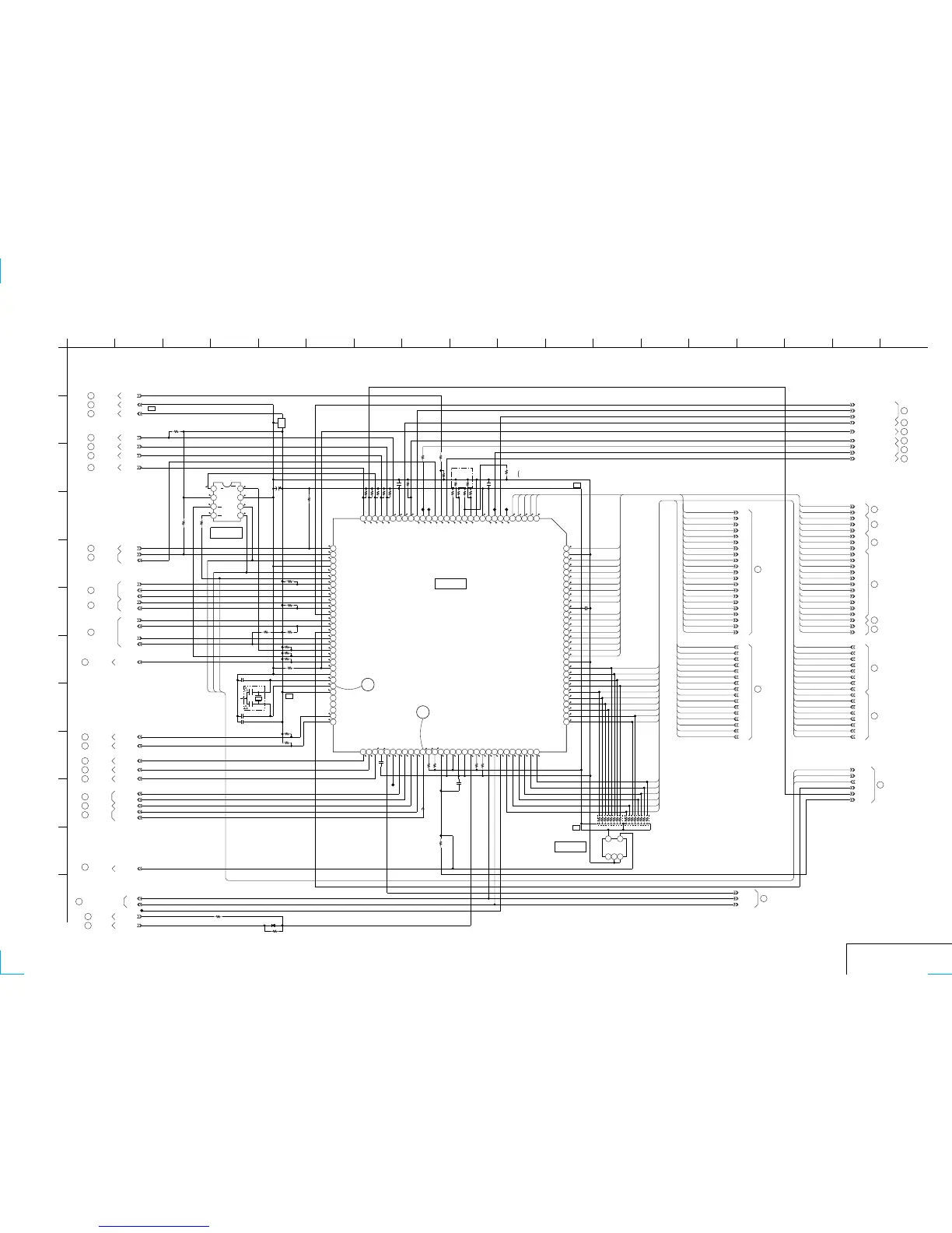
SYSTEM CONTROL
IC102
EEPROM
IC101
53
TO(10/10)
TO(10/10)
50
TO(5/10)
43
51
TO(10/10)
TO(8/10)
52
TO(2/10)
25
TO(10/10)
46
TO(9/10)
49
TO(1/10)
22
TO(2/10)
23
3
40
TO(3/10)
2
TO(3/10)
TO(3/10)
SYSTEM CONTROL
MB-94 BOARD(7/10)
-REF.NO.:10000 SERIES-
AEP/UK MODEL
3300(CX860 MODEL)
2200(CX870D MODEL)
16
10
G
H
5 13
L
6
E
38
B
12
D
C
924 7
J
I
1716 18
F
K
11 1514
NO MARK:PB MODE
3.2
3.2
0.1
0
3.2
3.2
0
3.2
3.2
0.1
3.2
3.2
3.2
3.1
3.2
3.2
3.2
3.2
3.2
3.2
1.6
1.6
1
3.3
3.2
3.2
3.2
3.2
0
2.5
0
3.2
3.2
3.2
3.2
3.2
1.4
3.2
3.2
3.2
3.2
3.2
3.2
0
2.4
3.2
3.2
2.5
2.3
2.7
2.6
2.4
2.4
2
0.8
0.4
1.3
2.0
1.3
1.5
2.2
1.4
1.8
3.3
1.8
2.3
2.1
2.3
0.9
0.9
2.7
0
2.7
2.3
2.3
2.5
2.5
2.7
2.7
2.7
2.5
2.4
3.3
3.2
3.2
3.2
3.2
3.2
3.2
3.2
3.2
3.2
3.2
3.2
3.2
3.3
3.2
3.2
3.2
3.3
1.6
3.3
3.3
0
3.2
0.3
2.4
0.8
1.0
1.4
0.5
3.2
3.3
0
0.1
0
3.3
3.2
3.2
For Schematic Diagram
Refer to page 4-11 for printed wiring board.

Table of Contents

Related product manuals