EasyManua.ls Logo

Sony RMT-D123A - Page 87

Sony RMT-D123A
142 pages
Print Icon
To Next Page IconTo Next Page
To Next Page IconTo Next Page
To Previous Page IconTo Previous Page
To Previous Page IconTo Previous Page
Loading...
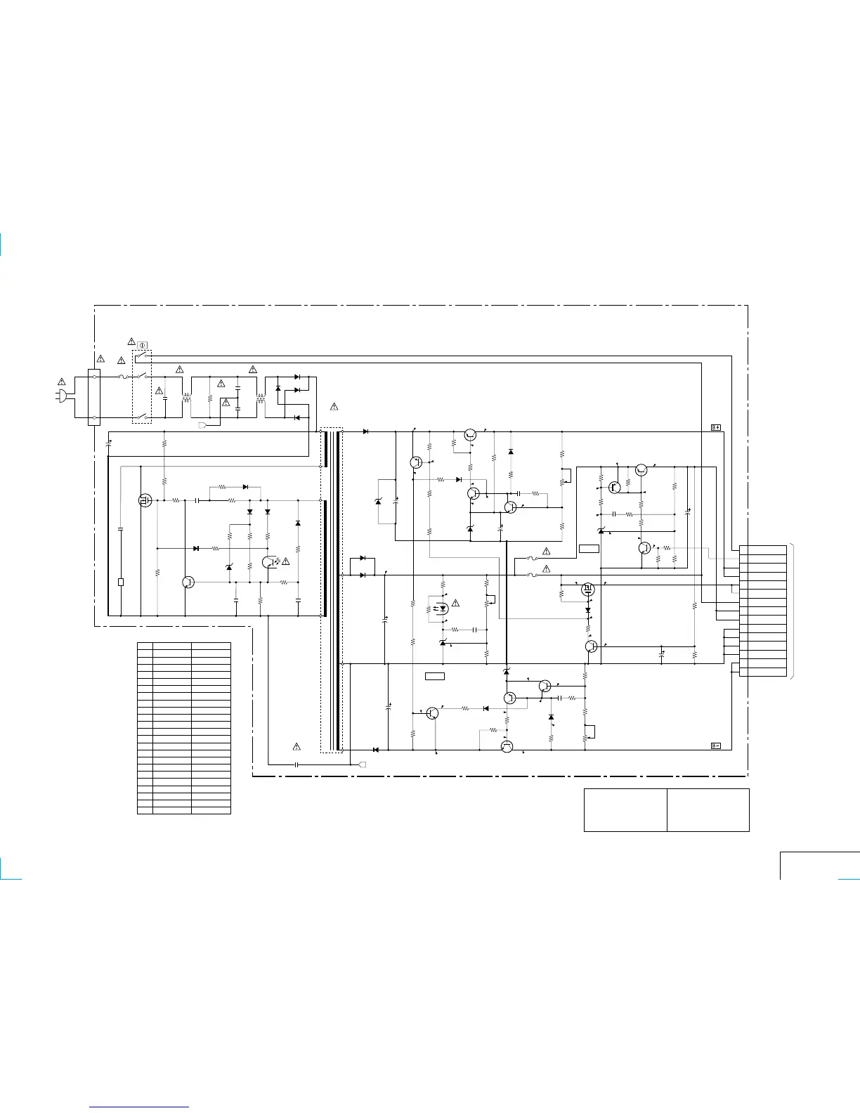
DVP-CX860/CX870D
POWER BLOCK
MPW1241 / MPW1141
4-81 4-82
* MARKED : MOUNT TABLE
16
AC IN
120-240V
50/60Hz
CN1
F1
*
L1
*
L2
*
R1
*
R106
*
R407
*
R302
*
C1
*
C5
*
R2
*
R3
*
R7
*
R6
*
R12
*
C15
*
R11
*
R9
*
PC1(1/2)
*
PC1(2/2)
*
R22
*
R13
*
R5
*
C8
*
Q1
*
SWITSH
SW1
FG
C4
100pF
C3
100pF
D12
ERA15-06
D13
ERA15-06
D14
ERA15-06
D11
ERA15-06
R19
10
C10
0.01µF
D22
1SS133
D5
HZS982
D21
1SS133
D7
1SS133
D4
1SS133
D6
1SS133
R17
680
R8
33K
Q2
2SC1741AS
SWITCH
Q104
2SA933S
SWITCH
C9
4700pF
C11
100pF
R10
6.2K
BEA1
BL02RN1
T1
POWER
TRANSFORMER
D101
21DQ10
Q101
2SB1642
+11V REG
R111
1K
R102
1K
R107
4.7K
R103
56
R101
2.7K
R112
4.7K
R113
4.7K
R303
2.2K
R304
2.7K
R108
1.2K
R104
1.5K
R105
3.3K
C110
1000pF
D110
1SS133
D104
1SS133
Q102
2SC1740S
SWITCH
Q103
2SC1740S
SWITCH
Q304
2SA933S
SWITCH
Q303
2SC1740S
SWITCH
Q404
2SC1740S
SW
D103
HZ18CP
D102
HZS7A2
C101
330µF
350V
C307
33µF
35V
C304
0.1µF
C111
33µF
35V
C306
33µF
35V
C301
680µF
25V
C401
330µF
35V
FG
D401
21DQ10
Q401
2SD2525
11V REG
R411
1K
R402
1K
R406
1K
R408
3.3K
R404
1.5K
R309
1.5K
R310
470
R405
3.3K
R203
6.8K
R403
330
SHUNT REG
R413
6.2K
R412
6.2K
R305
1K
R301
150
VR101
VR1K
VR301
VR1K
R313
68
R319
33K
R314
120
R322
39
R316
39
R317
3K
R312
2.4K
R318
1.2K
R315
1.2K
R311
910
Q301
2SB1642
+3.3V REG
C305
1000pF
IC303
TA76431AS
IC302
TA76431S
D301
ERB83-006
D302
ERB83-006
D410
1SS133
D404
1SS133
D205
1SS133
D402
HZS7A2
Q402
2SA933S
SW
Q403
2SA933S
SW
Q302
2SC1740S
C410
4700pF
VR401
VR1K
R306
150
P302
1.6A 60V
P301
2.0A 60V
Q201
2SJ525
+5V REG
IC302
SHUNT REG
IC303
C1
C5
C8
C15
F1
L1
L2
PC1
Q1
R1
R2
R3
R5
R6
R7
R9
R11
R12
R13
R22
R106
R302
R407
US,CND MODEL
0.1µ/250V
150µ/200V
220p/1kV
2200p/250V
2.5A/125V
14mH/0.6A
XX
PC817
2SK2638
XX
220k
220k
20k
680
220
6.8k
9.1k
18k
1.5k
470
2k
15k
4.7k
AEP,UK MODEL
0.22µ/250V
68µ/400V
47p/2kV
680p/250V
2.5A/250V
36mH/0.3A
36mH/0.3A
PC123
2SK2717
4.7M
330k
330k
22k
750
680
100
8.2k
27k
750
6.2k
1k
7.5k
3k
13.2
11.5
12.5
12.3
6.5
7.1
7.1
12.5
13.1
5.1
4.9
3.9
2.5
13.0
13.0
11.5
12.4
11.9
6.5
7.1
7.1
11.5
12.3
0.7
0.3
0.8
5.0
0.8
4.4
4.3
2.9
3.5
5.0
0.2
2.5
5.1
0
TO AI-20
BOARD (1/3)
CN101
(SEE PAGE 4- 33)
15
14
13
12
11
10
9
8
7
6
5
4
3
2
1
CN101 15P
P-DET
P-CONT
SW+11V
SW+11V
SW11V
SW11V
SW+5V
SW+5V
SW+3.3V
SW+3.3V
EVER+5V
D_GND
D_GND
M_GND
M_GND
POWER BLOCK (MPW1241) (US,CND MODEL)
(MPW1141) (AEP,UK MODEL)
-REF NO 6OOO SERIES-
Note :
The components identified by
mark 0 or dotted line with mark
0 are critical for safety.
Replace only with part number
specified.
Note :
Les composants identifiés par
une marque 0 sont critiques
pour la sécurité.
Ne les remplacer que par une
pièce portant le numéro spécifié.

Table of Contents

Related product manuals