EasyManua.ls Logo

Sony SLV-ED1PL - NK-11 (KOREAN STEREO) PRINTED WIRING BOARD AND SCHEMATIC DIAGRAM

Sony SLV-ED1PL
135 pages
Print Icon
To Next Page IconTo Next Page
To Next Page IconTo Next Page
To Previous Page IconTo Previous Page
To Previous Page IconTo Previous Page
Loading...
SLV-ED1/ED4/ED7/ED8
4-33 4-34
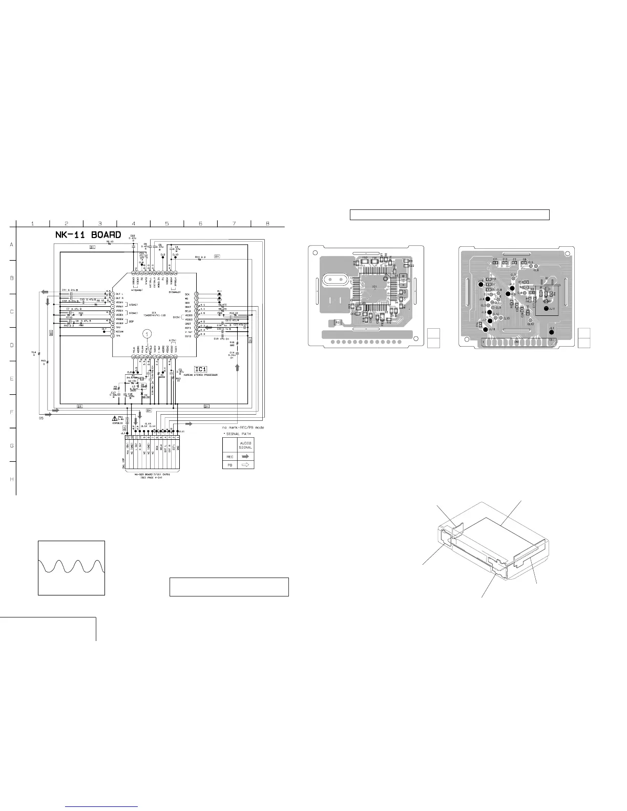
NK-11 (KOREAN STEREO) PRINTED WIRING BOARD AND SCHEMATIC DIAGRAM
– Ref. No.: NK-11 board; 1,000 series –
– SLV-ED7 –
KOREAN STEREO
NK-11
Note:The components identified by mark ! or dotted line
with mark ! are critical for safety.
Replace only with part number specified.
There are few cases that the part isn't mounted in this model is printed on this diagram.
• Waveform
1 IC1 REC/PB
740m Vp-p (24.576 MHz)
MA-323
(
VIDEO, AUDIO, I/O,
SERVO/SYSTEM CONTROL, TUNER
)
DM-76
(MODE CONTROL)
POWER BLOCK (HS-921SF1)(ED4)
POWER BLOCK (SR-708) (ED7/ED8)
(POWER SUPPLY)
NK-11 (ED7)
(KOREAN STEREO)
MF-312
(
MODE CONTROL,
)
FRONT IN
NK-11
BOARD(SIDE A)
1-669-815-
11
(11)
05
NK-11 BOARD(SIDE B)
1-669-815-
11
(11)
05

Table of Contents

Related product manuals