EasyManua.ls Logo

STERO SG - SU-L & SG SEQUENCE OF OPERATION; Conditions; Power-Up Diagnostics

STERO SG
93 pages
Print Icon
To Next Page IconTo Next Page
To Next Page IconTo Next Page
To Previous Page IconTo Previous Page
To Previous Page IconTo Previous Page
Loading...
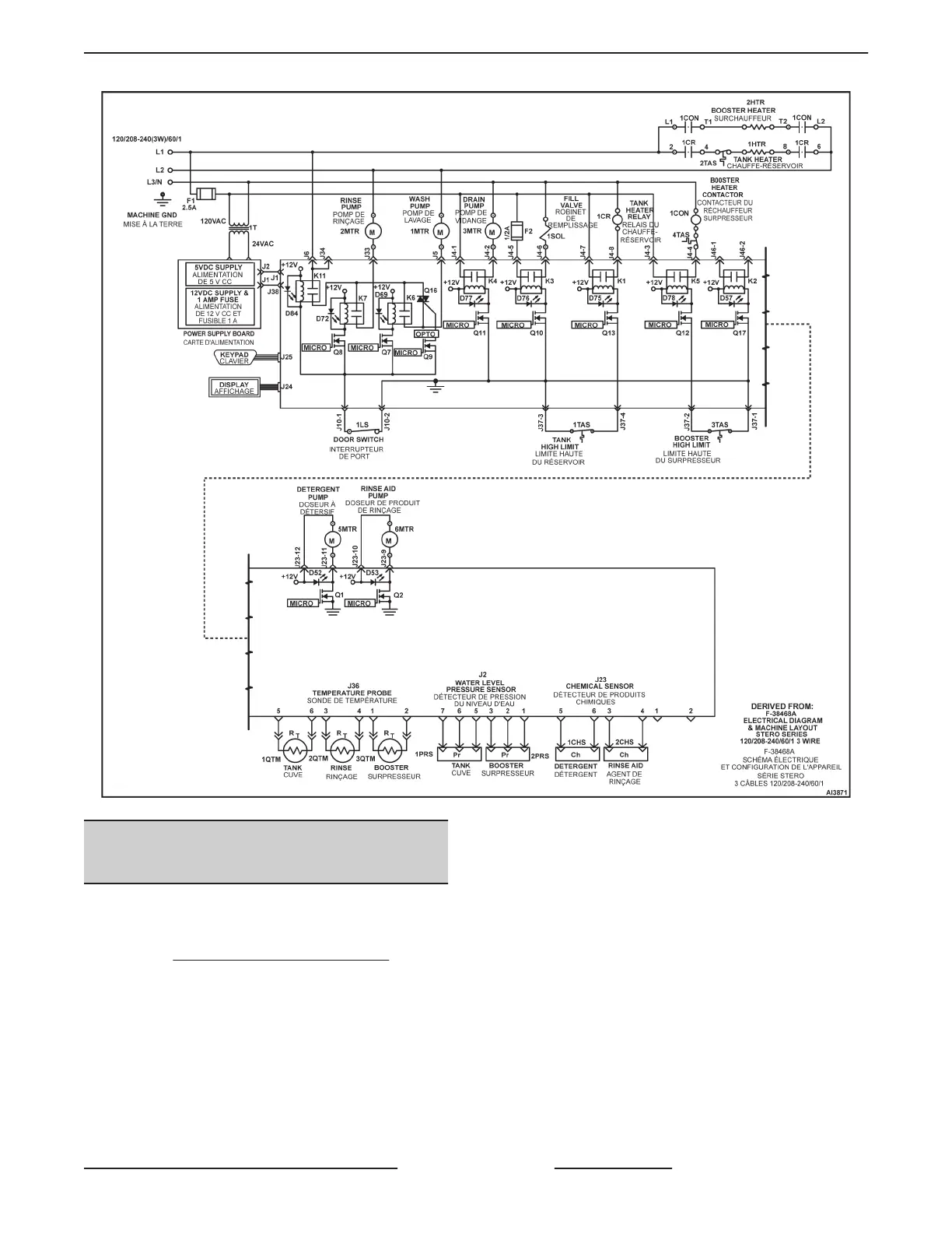
Fig. 59
SU-L & SG SEQUENCE OF
OPERATION
NOTE: Machine connected to Supply Voltage - Power
Button has not been pushed.
NOTE: Use
SU-L & SG WIRING DIAGRAM for
sequence.
Conditions
1. 120 VAC to 1T and 24VAC to Power Supply
Board.
2. Power Supply Board 5VDC to Control Board.
3. Control Board supplies 3.3 VDC processor circuit
voltage.
4. L1 to one side of K11-COM / 1CR-2 / K4-COM /
K3-COM.
5. N to one side of 2MTR / 1MTR / 3MTR / 1SOL /
1CR-6 / 1CR-1.
6. Door closed.
7. Water supply at correct temperature and manual
supply valve is on.
8. 1TAS and 2TAS closed.
Power-Up Diagnostics
1. Power Button pushed.
2. Machine type SU-L displayed.
3. Processor checks all sensors and probes for
being within range of operation.
SG, SU-L, SU-H DISHWASHERS - ELECTRICAL OPERATION
Page 47 of 59 F45577 (1215)

Related product manuals