EasyManua.ls Logo

Supero C2G41 - Fan Headers

Supero C2G41
93 pages
Print Icon
To Next Page IconTo Next Page
To Next Page IconTo Next Page
To Previous Page IconTo Previous Page
To Previous Page IconTo Previous Page
Loading...
2-24
C2G41 User's Manual
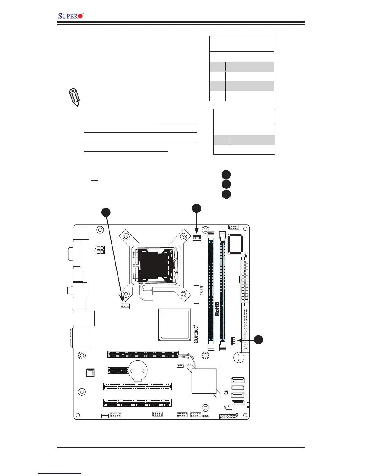
Fan Headers
The C2G41 has three chassis fan headers
(Fan 1 to Fan 3). Fan 1 is the CPU Fan. Fan
2 to Fan 3 are system/chassis fans.
Note: Pins 1-3 of a 4-pin fan headers
are backward compatible with the tradi-
tional 3-pin fans.) See the table on the
right for pin denitions. *The onboard
fan speeds are controlled by Thermal
Management via BIOS Hardware Moni-
toring in the Advanced Setting. (Default:
Disabled. When using Thermal Manage-
ment settings, please use all 3-pin fans
or all 4-pin fans on the motherboard.)
Fan Header
PinDenitions(Fan1-3)
Pin# Denition
1 Ground
2 +12V
3 Tachometer
4 PWR Modulation
A
B
C
A. Fan 1 (CPU Fan)
B. Fan 2
C. Fan 3
A
B
C
Overheat LED
PinDenitions
Pin# Denition
1 5vDC
2 OH Active
FAN2
FAN1
LE1
JBT1
JF1
121
JPT1
C2G41
Tested to Comply
With FCC Standards
FOR HOME OR OFFICE USE
AT X_POWER1
LGA775 CPU
AT X12V1
COM2
COM1
1
A
JL1
CHASSIS INTRUSION
TPM
IDE
HDMI
JF1
X
PWR
ON
RST OH/FFX
HDD
NIC1
LED
PWR
LED
CPU FA N
FAN3
I-SATA3
I-SATA2
I-SATA1
I-SATA0
BUZZER
JWOL
+
BATTERY
JPW2
JPW1
AUDIO FP
USB0/1
USB2/3
DIMM1B
DIMM1A
SLOT7 PCI-E X16
SLOT6 PCI-E X1
SLOT5 PCI 33MHZ
SLOT4 PCI 33MHZ
USB6/7 LAN
USB4/5
SPDIF OUT
KB/MOUSE
:CMOS CLEAR
ENABLE
JPT1
1-2
2-3
DISABLE
VGA
PSKBM
AUDIO

Table of Contents

Related product manuals