EasyManua.ls Logo

TERASAKI TemBreak 2 - Pvs400-Ndl 4 P, Pvs400-Ndh 4 P

Default Icon
108 pages
Print Icon
To Next Page IconTo Next Page
To Next Page IconTo Next Page
To Previous Page IconTo Previous Page
To Previous Page IconTo Previous Page
Loading...
4-15
4
Mounting and Connection
G
G
B 260
C 185
C
105
F
ED
A
420
420
105
E
F
D
C
185
C
AB 260
G
G
305
305
Ionised gas area
Ionised gas area
Interpole barrier
Front panel
Front panel
Insulating plate
(supplied as standard)
Insulating plate
(supplied as standard)
Mounting plate
Mounting plate
Interpole barrier
Interpole barrier
Insulating plate
Insulating plate
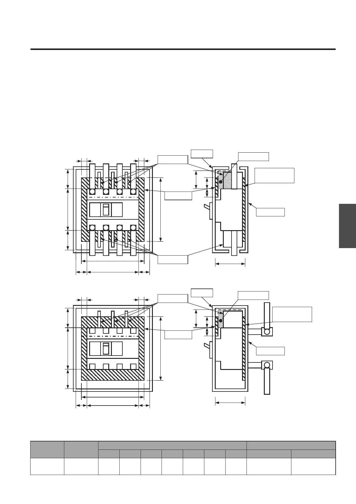
Type Connection
PVS400-NDL 4P
PVS400-NDH 4P
Front-connected
Rear-connected
160
Not supplied Supplied as standard
PVS400-NDL 4P, PVS400-NDH 4P
Front-connected
Rear-connected
Minimum insulation distance (mm) Insulating plate
A B C D E F Front panel side Mounting plate side
80 80 30 140 160
G
60

Table of Contents

Other manuals for TERASAKI TemBreak 2

Related product manuals