EasyManua.ls Logo

TERASAKI TemBreak 2 - Ar325 S, Ar332 S 3 P

Default Icon
108 pages
Print Icon
To Next Page IconTo Next Page
To Next Page IconTo Next Page
To Previous Page IconTo Previous Page
To Previous Page IconTo Previous Page
Loading...
6-5
6
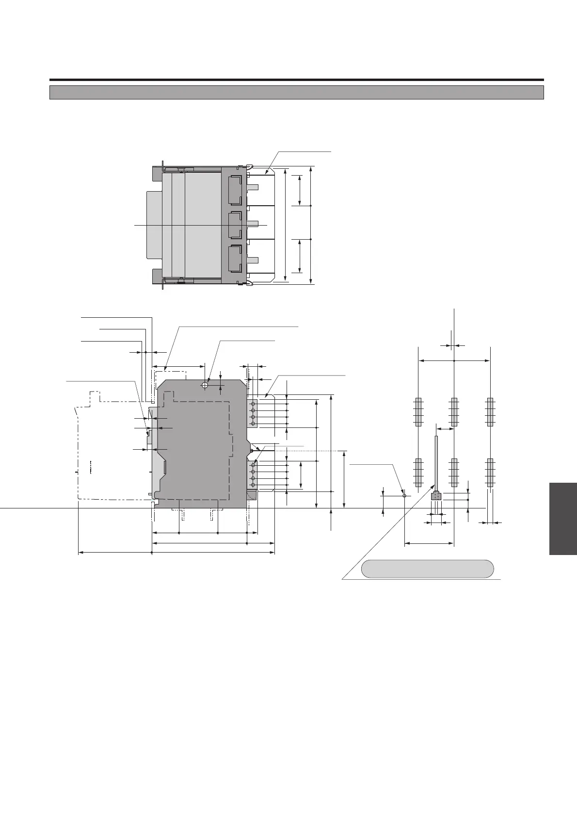
Outline Dimensions
ACB Front cover center line
P
C
P
C
345 100
40
130 130
5
20
445
265
141
199
14 21
35
15
12.5
12.5
252525
94 110
12.5
12.5
25
100
165
40
120 100
2525
65
18
9
406
345.5
59.5
120 142161
109120
204.5
33
25 48.5
4-ø11
12
17
20
1
197.5
CONNECTED position
TEST position
ISOLATED position
ON-OFF button cover
Control circuit terminal cover (optional)
Inter-pole barrier
M8 screw
earth terminal
conductor overlap. max
Inter-pole barrier 1.6t
Inter-pole barrier 2t
Lifting hole 2-ø20
Draw-out arm
(comes out when breaker is drawn out)
AR325S 3P, AR332S 3P

Table of Contents

Other manuals for TERASAKI TemBreak 2

Related product manuals