EasyManua.ls Logo

TERASAKI TemBreak 2 - Pvs800-Nnl 4 P, Pvs800-Nnh 4 P

Default Icon
108 pages
Print Icon
To Next Page IconTo Next Page
To Next Page IconTo Next Page
To Previous Page IconTo Previous Page
To Previous Page IconTo Previous Page
Loading...
4-21
4
Mounting and Connection
103
E
F
D
C
280
C
AB 273
400
G G
B 273
C 280
C
103
F
ED
A
400
G G
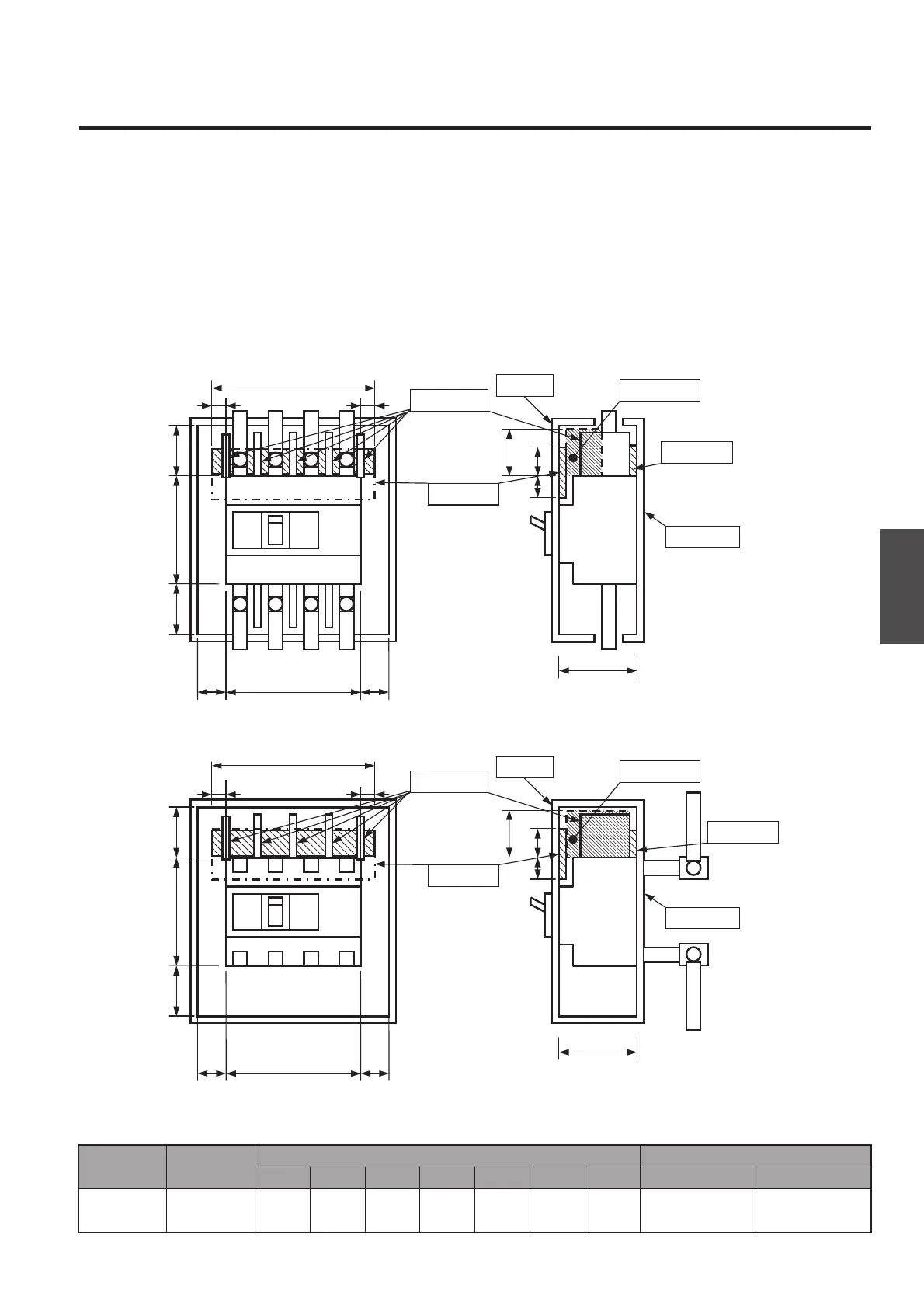
Interpole barrier
Interpole barrier
Insulating plate
Insulating plate
Insulating plate
Insulating plate
Ionised gas area
Front panel
Mounting plate
Ionised gas area
Front panel
Mounting plate
Type Connection
PVS800-NNL 4P
PVS800-NNH 4P
Front-connected
Rear-connected
120
Not supplied Not supplied
PVS800-NNL 4P, PVS800-NNH 4P
Front-connected
Rear-connected
Minimum insulation distance (mm) Insulating plate
A B C D E F Front panel side Mounting plate side
80 80 80 80 80
G
60

Table of Contents

Other manuals for TERASAKI TemBreak 2

Related product manuals