EasyManua.ls Logo

TERASAKI TemBreak 2 - Pvs800-Ndl 4 P, Pvs800-Ndh 4 P

Default Icon
108 pages
Print Icon
To Next Page IconTo Next Page
To Next Page IconTo Next Page
To Previous Page IconTo Previous Page
To Previous Page IconTo Previous Page
Loading...
4-19
4
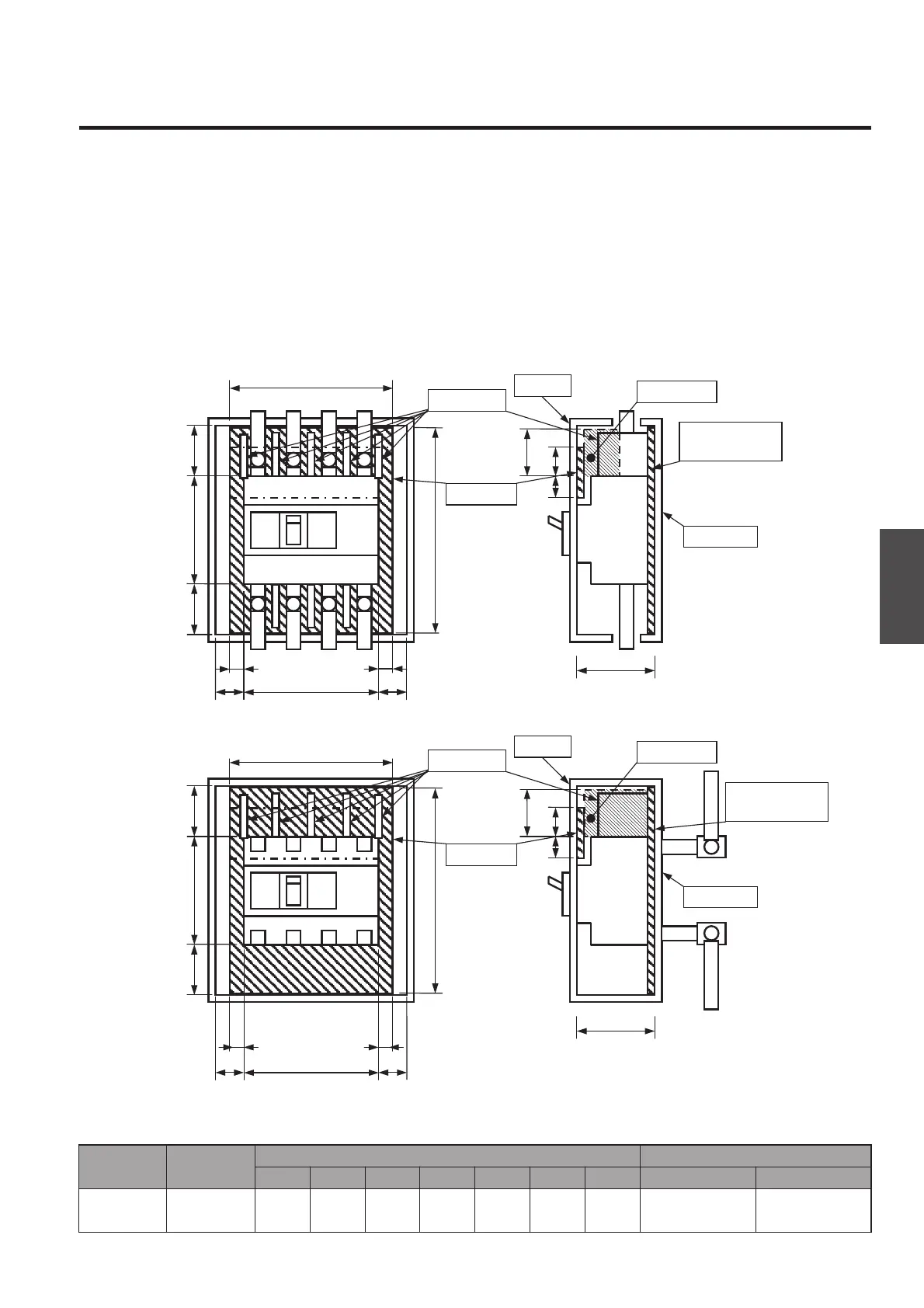
Mounting and Connection
513
105
E
F
D
C
280
C
AB 273
400
G G
B 273
C 280
C
105
F
ED
A
513
400
G
G
Interpole barrier
Interpole barrier
Insulating plate
Insulating plate
Ionised gas area
Front panel
Front panel
Insulating plate
(supplied as standard)
Mounting plate
Ionised gas area
Insulating plate
(supplied as standard)
Mounting plate
Type Connection
PVS800-NDL 4P
PVS800-NDH 4P
Front-connected
Rear-connected
160
Not supplied Supplied as standard
PVS800-NDL 4P, PVS800-NDH 4P
Front-connected
Rear-connected
Minimum insulation distance (mm) Insulating plate
A B C D E F Front panel side Mounting plate side
80 80 80 140 160
G
60

Table of Contents

Other manuals for TERASAKI TemBreak 2

Related product manuals