EasyManua.ls Logo

Thermo DCT7088 - Page 39

Thermo DCT7088
77 pages
Print Icon
To Next Page IconTo Next Page
To Next Page IconTo Next Page
To Previous Page IconTo Previous Page
To Previous Page IconTo Previous Page
Loading...
34
.....Site selection & preparation
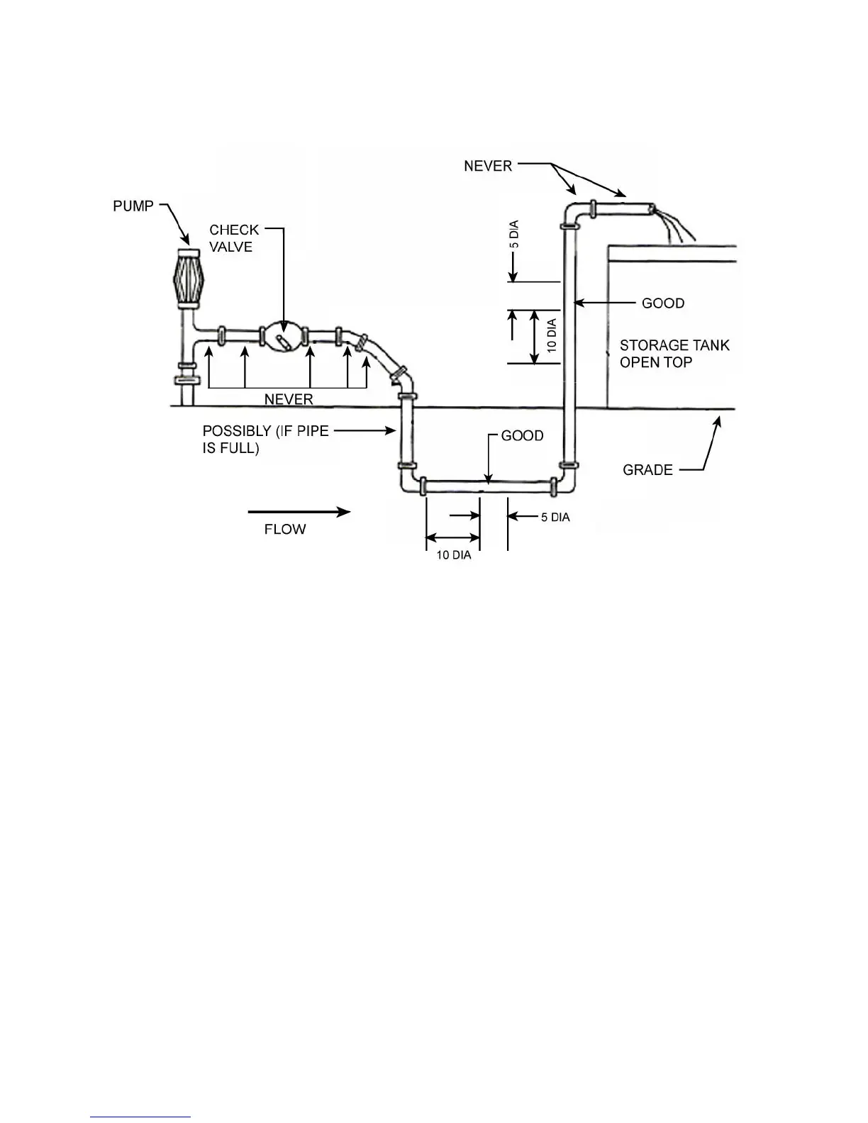
FIGURE 4.2-B
Use the following guidelines when selecting the transducer site:
a. Choose a section of pipe which is always full of liquid, such as a vertical pipe with up flow or a full
horizontal pipe.
b. The site should have a straight run equivalent to at least 10 pipe diameters upstream and 5 pipe
diameters downstream from any elbows, tees, throttling valves, orifices, reduced sections, or other
flow disturbances.
c. Up to 30 diameters of straight run may be required upstream from the flowmeter after a pump, control
valve, or double piping bend for greater accuracy. A distance of 5 diameters downstream is usually
sufficient under all circumstances.
d. Always mount the transducers on the sides of the pipe in the 3 o’clock or 9 o’clock positions on
horizontal pipes. Positioning the transducers in this manner prevents signal loss which can be caused
by sediment along the bottom of the pipe or gas bubbles and air pockets along the top of the pipe.
e. Ensure that the pipe skin temperature is within the transducer temperature rating. The transducers are
rated for -40º to +212º F (-40º to +100º C). Temperature ratings up to 392º F (200º C) are available
with optional high temperature transducers.

Table of Contents

Related product manuals