EasyManua.ls Logo

Vigilant MX1-Au - Battery Wiring

Default Icon
182 pages
Print Icon
To Next Page IconTo Next Page
To Next Page IconTo Next Page
To Previous Page IconTo Previous Page
To Previous Page IconTo Previous Page
Loading...
Vigilant MX1-Au Operator Manual Document: LT0439
Page 23 October 2018 Issue 1.73
11-6
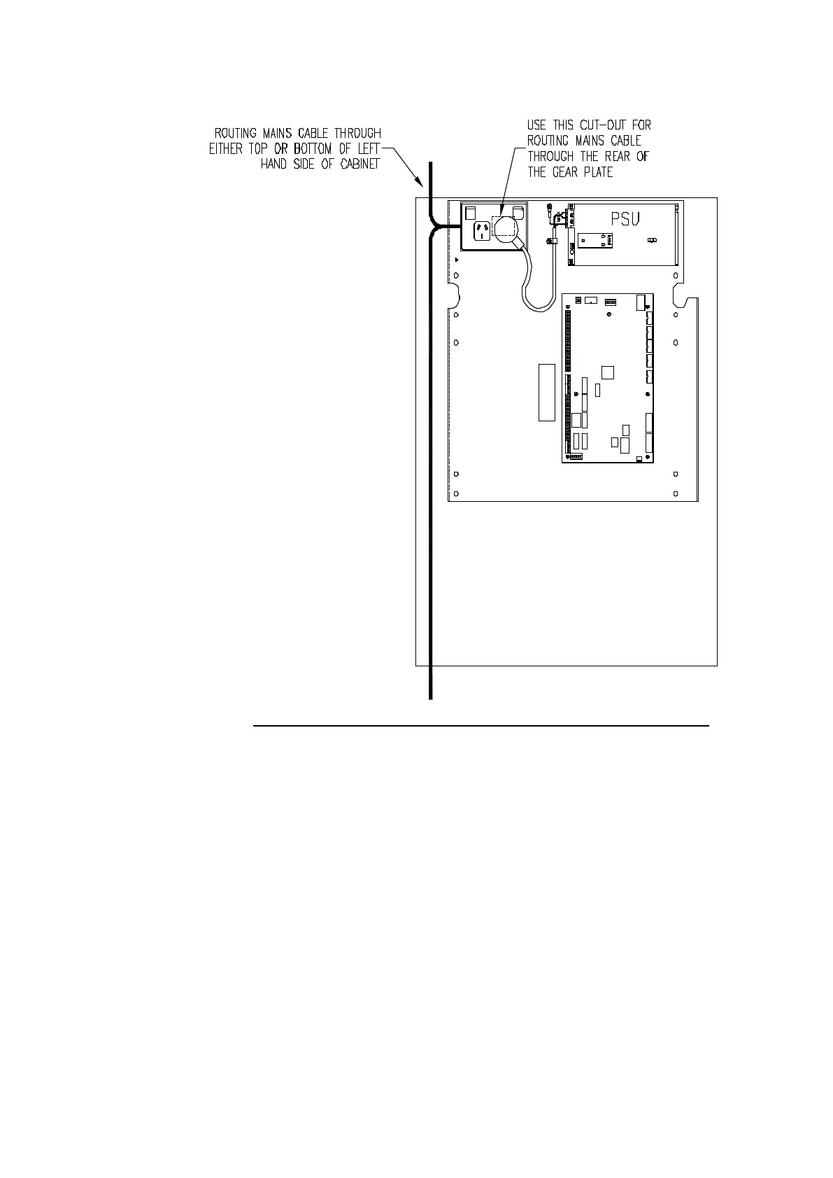
Figure 11-4 Recommended Mains Cable Routes within 15U Cabinet
The 8U cabinet has space for a pair of 12V batteries up to 17Ah. The
15U cabinet has space for a pair of 12V batteries up to 40Ah.
Many non-brigade-connected systems will require larger battery
capacities to meet the 72 hour standby operation requirements.
Batteries greater than 40Ah (or 17Ah) will require a separate battery box,
which must be located adjacent to the MX1 cabinet.
The wiring between any external battery cabinet and the MX1 should use
4mm
2
cable to minimise voltage drop. The lead interconnecting the two
batteries is provided with the panel and includes an inline 20A blade
fuse.
Battery Wiring

Table of Contents

Other manuals for Vigilant MX1-Au