EasyManua.ls Logo

WEG SSW-05 Plus Series - Descripción del SSW-05 Plus; Tabla con Par (Torque) Máximo Aplicado en Los Conectores; Tabla de Potencias; Corrientes; Cableados de Potencia

WEG SSW-05 Plus Series
88 pages
To Next Page IconTo Next Page
To Next Page IconTo Next Page
To Previous Page IconTo Previous Page
To Previous Page IconTo Previous Page
Loading...
5. DESCRIPCIÓN DEL SSW-05 PLUS:
7. TABLA CON PAR (TORQUE) MÁXIMO APLICADO EN LOS CONECTORES:
Mecánica da
SSW-05 Plus
1
2
Par en los Bornes da Electrónica
(A1, A2, DI1, DI2, 13, 14/23 y 24)
Nm (lb-in)
0,5 (4,5)
0,5 (4,5)
Par en los Bornes da Potencia
(R, S, T, U, V y W)
Nm (lb-in)
3,0 (32,7)
5,5 (60,0)
6. TABLA DE POTENCIAS / CORRIENTES / CABLEADOS DE POTENCIA (COBRE 70
O
C):
Modelo
SSW-05.3
SSW-05.10
SSW-05.16
SSW-05.23
SSW-05.30
SSW-05.45
SSW-05.60
SSW-05.85
Corriente
Nominal
3A
10A
16A
23A
30A
45A
60A
85A
220V...240V
cv kW
0,75 0,55
3 2,2
5 3,7
7,5 5,5
10 7,5
15 11
20 15
30 22
380V...415V
cv kW
1,5 1,1
6 4,5
10 7,5
15 11
20 15
30 22
40 30
60 45
440V...480V
cv kW
2 1,5
7,5 5,5
12,5 9,2
15 11
20 15
30 22
40 30
70 45
Cables de
Potencia mm
2
(AWG)
0,75 (18)
1,5 (16)
4 (12)
6 (10)
10 (8)
16 (6)
25 (4)
35 (2)
Mecánica
1
2
Las potencias máximas indicadas en la tabla arriba son para motores Standard 4 polos WEG.
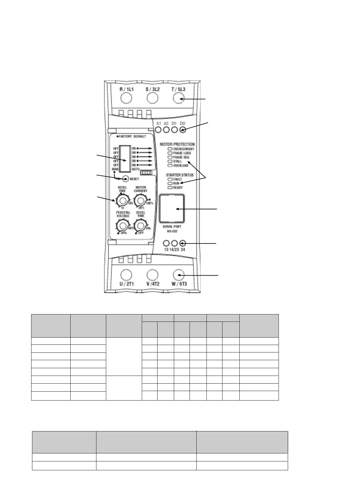
Trimpots para
Ajustes
Botón para
Reset
Dip-Switch para Habilitar
las Protecciones
Entrada de Alimentación Trifásica
Comando Acciona/Desacciona motor (DI1)
Reset (DI2)
Alimentación de la Electrônica (A1 y A2)
Entrada de Alimentación Trifásica
Salidas al Relé (13, 14/23 y 24)
Salida para motor
Conector para Serial o HMI remoto
Buy: www.ValinOnline.com | Phone 844-385-3099 | Email: CustomerService@valin.com

Table of Contents

Related product manuals