EasyManua.ls Logo

Weil-McLain GV90+ - Install water piping; Air separator; Install relief valve

Weil-McLain GV90+
108 pages
Print Icon
To Next Page IconTo Next Page
To Next Page IconTo Next Page
To Previous Page IconTo Previous Page
To Previous Page IconTo Previous Page
Loading...
Part number 550-142-903/1016
12
!IRSEPARATOR
Install an AIR SEPARATOR in the piping as shown in this
manual. For single-zone systems, install the air separator
in the return piping as shown in Figure 14, page 14. This
allows mounting the automatic air vent and expansion tank
off of the separator.
Install relief valve
1. Install relief valve ONLY as shown in Figure 12.
2. Connect discharge piping to safe disposal location,
following guidelines in Figure 13, page 13.
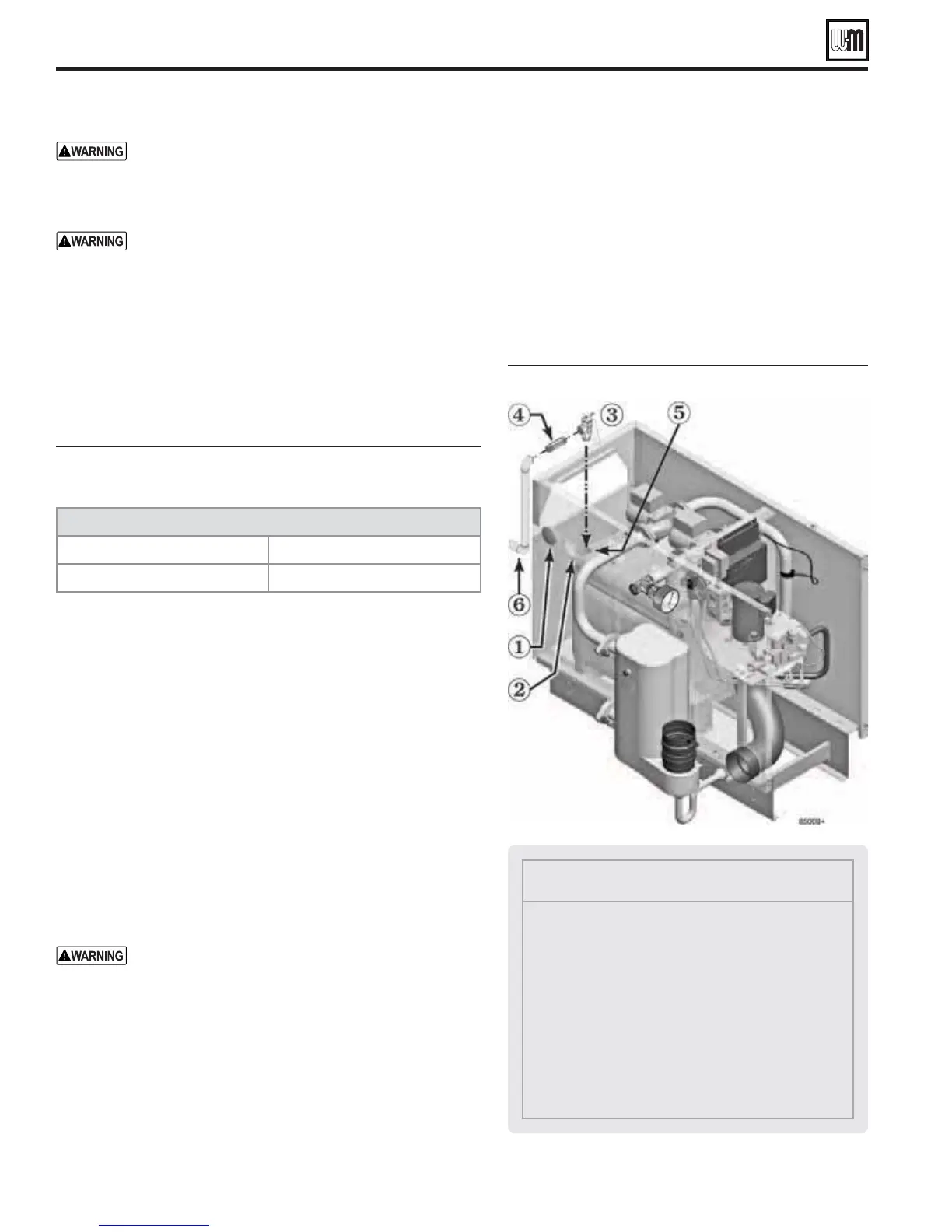
&IGURE
Install and pipe relief valve
,EGEND
1 Jacket plug for unused relief valve jacket open-
ing.
2 Jackets are provided with two relief valve open-
ings because each jacket size is used for two boiler
sizes. Cover the unused opening with the plug
provided.
3 Boiler relief valve (from accessory bag)
4 ¾” x 3” nipple, provided in accessory bag
5 ¾” relief valve tapping in back section
6 Connect minimum ¾” discharge piping to relief
valve.
3EE&IGUREPAGE.
5SETWOWRENCHESWHENTIGHTENINGWATERPIPINGAT
BOILER
, using one of the wrenches to prevent the boiler
interior piping from turning. Failure to support the boiler
piping connections to prevent them from turning could
cause damage to boiler components.
The cast iron heat exchanger return temperature must
be kept at or above 140°F during all times of operation
to prevent possibility of corrosion due to condensation.
This is done automatically, using the boiler's internal
circulators. DO NOT remove or tamper with these cir-
culators. Failure to comply could result in severe personal
injury, death or substantial property damage.
General piping information
-INIMUMPIPESIZEFORBOILERLOOPPIPING
&IGURE Provide boiler loop piping no smaller than listed
below (based on 20°F temperature rise)
"OILERLOOPPIPESIZE-INIMUM
'6OR v
'6OR v
!DDITIONALLIMITCONTROLS
Following standard industry practices, if installation is to comply with
ASME or Canadian requirements, an additional HIGHTEMPERATURE
LIMIT
may be needed. Consult local requirements for other codes/
standards to determine if needed. Wire as shown in .
s Install a manual reset high temperature limit between the boiler
and the isolation valve.
s Wire the manual reset limit in series with the boiler limit control.
s Set the manual reset limit control at least 20°F above the boiler
limit control setting (maximum setting 220°F).
,OWWATERCUTOFFWHENREQUIRED
A LOWWATERCUTOFFDEVICE is required when boiler is installed above
radiation level or by certain state or local codes or insurance companies.
Use low water cutoff designed for water installations. Electrode probe-
type is recommended. Purchase and install in tee in supply piping above
boiler. Wire contact as shown in Figure 67, page 56.
If boiler is connected to heating coils located in air han-
dling units where they can be exposed to refrigerated
air, use flow control valves or other automatic means to
prevent gravity circulation during cooling cycle. Circu-
lation of cold water through the boiler could result in
damage to the heat exchanger, causing possible severe
personal injury, death or substantial property damage.
"ACKmOWPREVENTER
Where required by codes, install a BACKmOWPREVENTER in the cold
water fill line, as shown in suggested piping diagrams on following
pages. Install a check valve if a backflow preventer is not installed.
GV90+ Series 2 GAS-FIRED WATER BOILERBoiler Manual
Install water piping

Table of Contents

Other manuals for Weil-McLain GV90+

Related product manuals