EasyManua.ls Logo

Weil-McLain GV90+ - Zone valve zoning - GV90+3, GV90+4 or GV90+5 (DO NOT apply to GV90+6)

Weil-McLain GV90+
108 pages
Print Icon
To Next Page IconTo Next Page
To Next Page IconTo Next Page
To Previous Page IconTo Previous Page
To Previous Page IconTo Previous Page
Loading...
Part number 550-142-903/1016
17
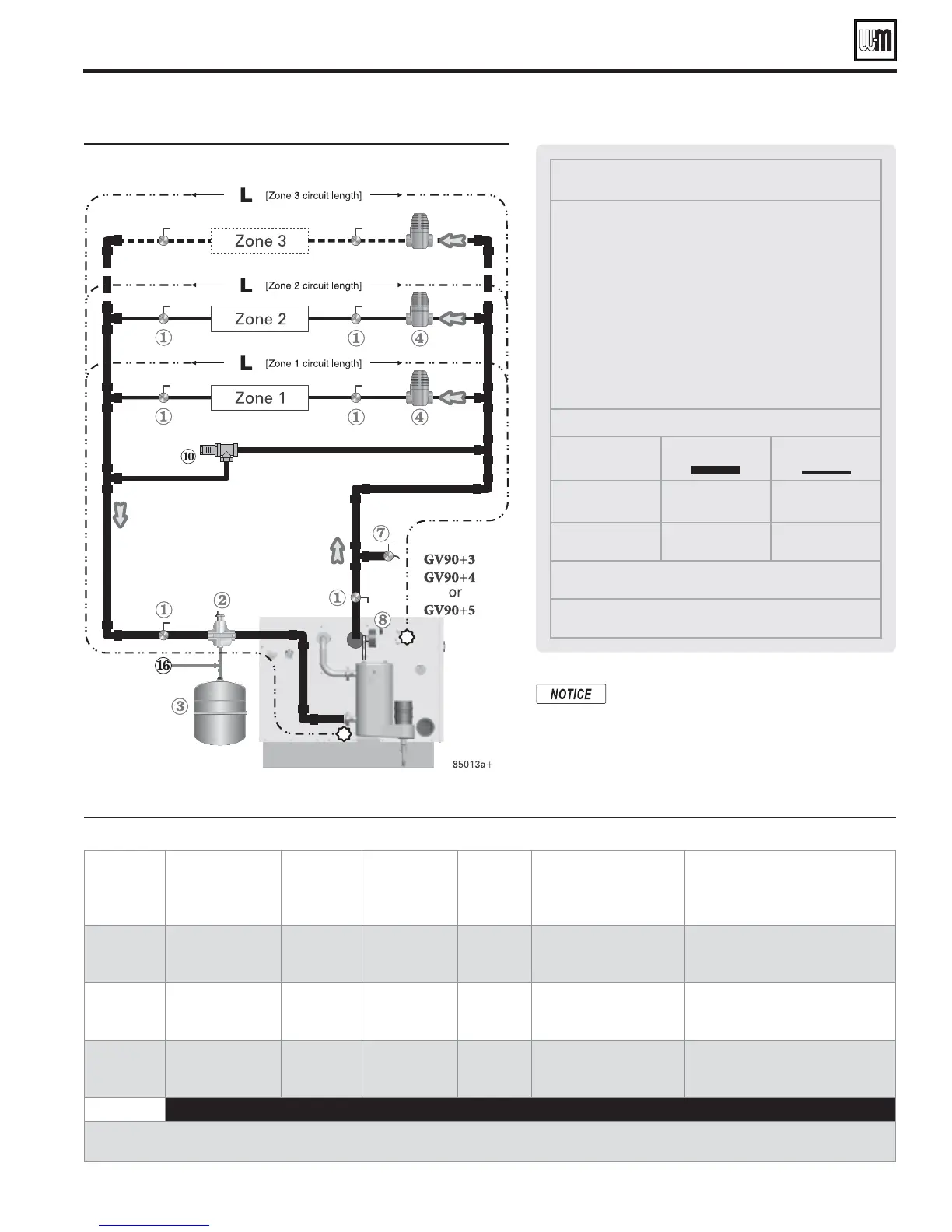
,EGEND
1 Isolation valves
2 Automatic air vent (with
diaphragm-type expan-
sion tank), or connect to
tank fitting (closed-type
expansion tank).
3 Diaphragm- or bladder-
type expansion tank, if
used. (For closed-type
expansion tank, pipe from
top of air separator to
tank fitting as in Fig-
ure 15, page 14.)
 :ONEVALVE
7 Hose bibb purge valve
8 Boiler pressure/tempera-
ture gauge
10 Differential pressure by-
pass valve
16 Cold water fill line — see
Figure 15, page 14 for
typical components
0IPESIZES.04MINIMUM
"OILERMODEL
-AINS
#IRCUITS
GV90+3
GV90+4
1" ¾"
GV90+5 1¼" ¾"
#IRCUITREQUIREMENTS
See Figure 19
&IGURE Zone valve zoning — GV90+3, GV90+4 or GV90+5
(DO NOT apply to GV90+6)
&IGURE The system must meet the following requirements when applying Figure 18
Boiler
model
Circulator HEAD
available to the
system
Maximum
circuit
length
L
Minimum
number
of circuits
Max load
of any
circuit
Max feet baseboard
of any circuit
(@ 600 Btuh/foot)
Summary
GV90+3
6.4 feet w.c.
@ 6.5 GPM
103 feet 2 40 MBH 67 feet
6.5 GPM total
(max 4 GPM any circuit)
20°F temperature drop
GV90+4
4.1 feet w.c.
@ 9.7 GPM
92 feet 3 33 MBH 55 feet
9.7 GPM total
(max 3.3 GPM any circuit)
20°F temperature drop
GV90+5
*
5.5 feet w.c.
@8.7 GPM
112 feet 3 53 MBH 88 feet
8.7 GPM
(max 3.5 GPM any circuit)
30°F temperature drop
GV90+6 DO NOT apply to GV90+6 — Use primary/secondary piping ONLY, as in Figure 20, page 18.
* This application may be marginal. It could cause temperature distribution problems, because the temperature drop is 30°F,
NOT 20°F. The best method is to use primary/secondary piping for the GV90+5 as in Figure 20, page 18.
/NEPIPE DIVERTER TEES SYSTEMS
— The ap-
plication information on this page is based
on two-pipe baseboard systems.
To ch e c k
whether the internal circulator can provide
sufficient flow to a one-pipe diverter tee
system, use the available head value given in
Figure 19, page 17.
GV90+ Series 2 GAS-FIRED WATER BOILERBoiler Manual
Install water piping (continued)

Table of Contents

Other manuals for Weil-McLain GV90+

Related product manuals