EasyManua.ls Logo

Weil-McLain GV90+ - Multiple boiler water piping; Easy-Fit piping installation

Weil-McLain GV90+
108 pages
Print Icon
To Next Page IconTo Next Page
To Next Page IconTo Next Page
To Previous Page IconTo Previous Page
To Previous Page IconTo Previous Page
Loading...
Part number 550-142-903/1016
24
&IGURE
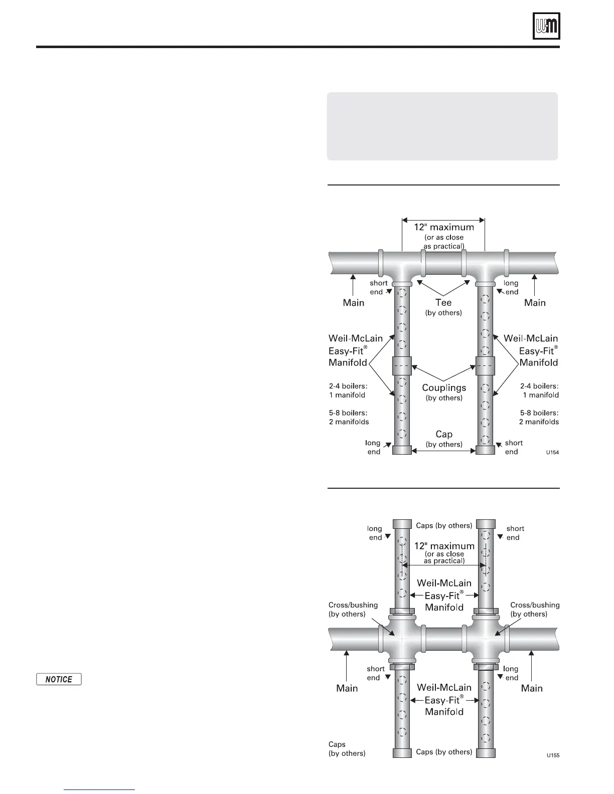
Single-sided EZ-Fit Header connection
&IGURE Double-sided EZ-Fit Header connection
-AXIMUMCONNECTEDLOADPERMANIFOLD
INCHMANIFOLD-"(
INCHMANIFOLD-"(
INCHMANIFOLD-"(
GV90+ Series 2 GAS-FIRED WATER BOILERBoiler Manual
Multiple boiler water piping
Easy-Fit® piping installation
1. Main header and Easy-Fit
®
Manifold pipe sizing.
a. New system — See page 15.
b. Replacing boilers in an existing system — Without reducing
size, connect system supply and return lines. Install tees or
crosses for Easy-Fit
®
manifolds as shown in Figure 30 or Fig-
ure 31. Size manifolds to handle total connected boiler output
as shown.
2. Provide connections in main header for Easy-Fit® manifolds as
close as possible to the midpoint of multiple boilers.
a. Use tees for four or less boilers, as in Figure 30.
b. Use either tees (Figure 30) or crosses (Figure 31) for five or
more boilers.
3. Manifold placement:
a. To alternate spacing for supply and return lines to boilers,
reverse the short-end and long-end of the manifolds as shown
in Figure 30 and Figure 31.
b. Return manifold must be on the return side of the main and
supply manifold must be on the supply side of the main. Draw-
ings in this manual show flow in system main from right to
left. For system flowing left to right, reverse the locations of
the manifolds accordingly.
4. Connect from Easy-Fit® manifold branches to boiler supply and
return connections using copper or steel pipe, sized for the required
flow rate.
5. Provide a flow/check valve in the supply piping of each boiler as
shown in piping diagrams in this manual. Install an isolation valve
on the supply and return of each boiler as shown. Some local codes
may require the use of individual water level controls and limits
on each boiler when isolation valves are installed.
6. Install main system air eliminator and primary circulator in sup-
ply piping as shown in piping diagrams. Place expansion tank on
suction side of system circulator as shown.
7. Install system accessories as shown in drawings.
8. Piping recommendation drawings:
a. Figure 30 and Figure 31 show details of Easy-Fit
®
manifolds.
b. Figure 32, page 25 is a schematic piping drawing showing the
locations of typical boiler piping and system piping, including
limits and other devices often required by local codes.
c. Figure 33, page 26 and Figure 34, page 27 are three-dimensional
piping drawings of typical multiple boiler installation.
d. Figure 35, page 28 shows recommended piping when an isolat-
ing heat exchanger is needed.
9. If desired, other primary/secondary piping arrangements can be
used.
When using isolation valves on each boiler, some codes
may require providing a low water control and additional
limit for each boiler. Consult local codes to determine
if omission of the individual boiler isolation valves may
allow the use of a single water level control and additional
limit for the entire multiple boiler system.

Table of Contents

Other manuals for Weil-McLain GV90+

Related product manuals