EasyManua.ls Logo

Westerbeke 20.0 BEDA - Page 39

Westerbeke 20.0 BEDA
72 pages
Print Icon
To Next Page IconTo Next Page
To Next Page IconTo Next Page
To Previous Page IconTo Previous Page
To Previous Page IconTo Previous Page
Loading...
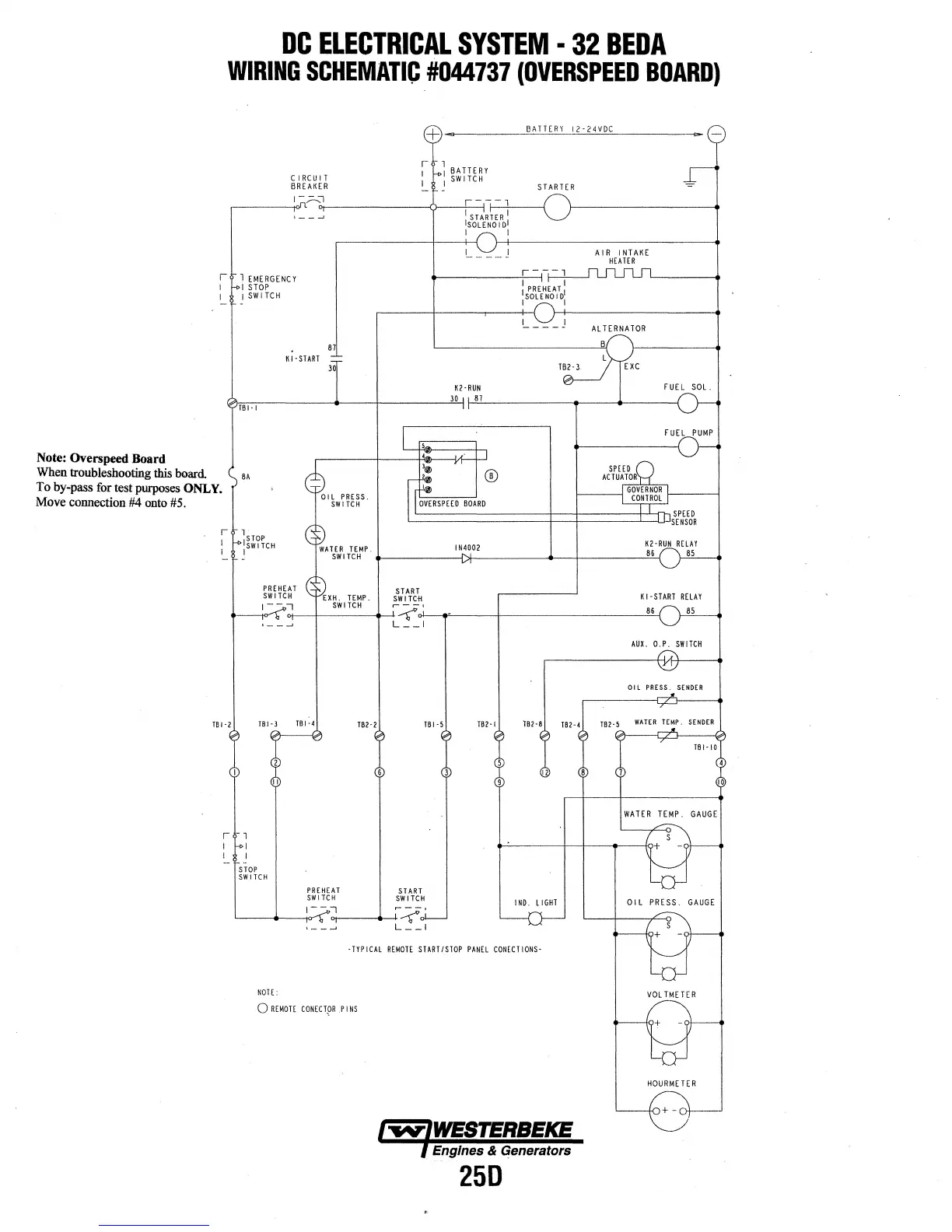
Note:
Overspeed
Board
DC
ELECTRICAL
SYSTEM
32
BEDA
WIRING
SCHEMATIC
#044737
(OVERSPEED
BOARD)
~)-~--------~B~A~T~l~E~R~Y_I~2~·~2~4V~D~C~-----------e-
C I
RC
U
IT
BREAKER
r
I
I
1 BATTERY
I SWITCH
STARTER
r-------~~-~·~--------------~--~~~--~-~1----~
I
STARTER
I
ISOLENOIDI
I I
~--------~--~
~----------------------~
I l
EMERGENCY
I STOP
!SWITCH
K
I-START
61
30
l
____
j
-------------''---1-
--l
I
PREHEAT
I
:SOlENOID:
l_
___
j
TB2·l
AIR
INTAKE
HEATER
AL
lERNA
TOR
FUEL
SOL.
K1·RUN
~1~6~1-~l----------_.----~-------~
30
~~
6
~
1
~---------4~----*-------4
When
troubleshooting
this
board.
To
by-pass
for
test
purposes
ONLY.
Move
connection
#4
onto
#5.
BA
r
l
I
PREHEAT
START
SWITCH
EXH.
TEMP.
SWITC-H
IN4D02
----~~~-~-~q---~--s_w_IT_c_H
__
+-~r~
0
·~-.~-----4----------------------~
86
~
L
__
l
TBH
181·3
161·4
STOP
SWITCH
PREHEAT
SWITCH
T61·1
IBH
START
SWITCH
.__
_
_.__"1<'1-~-~
Oj---..._.r
~'
L--1
TBH
lBH
IND.
LIGHT
·TYPICAl
REMOT£
START/STOP
PANEl
CONECTIONS·
NOTE:
0
REMOH
CON[Cl~R
.PINS
TBH
Engines
&
Generators
250
AUX.
O.P.
SWITCH
Olt.
PRESS.
SENDER
TB2·5
WATER
tEMP.
SEttDEA
161·10
01
L PRESS.
GAUG.E
VOL
!METER
HOURMEIER

Table of Contents

Related product manuals