EasyManua.ls Logo

Whirlpool WFW94HEX - Wiring Diagrams

Whirlpool WFW94HEX
86 pages
Print Icon
To Next Page IconTo Next Page
To Next Page IconTo Next Page
To Previous Page IconTo Previous Page
To Previous Page IconTo Previous Page
Loading...
7-1
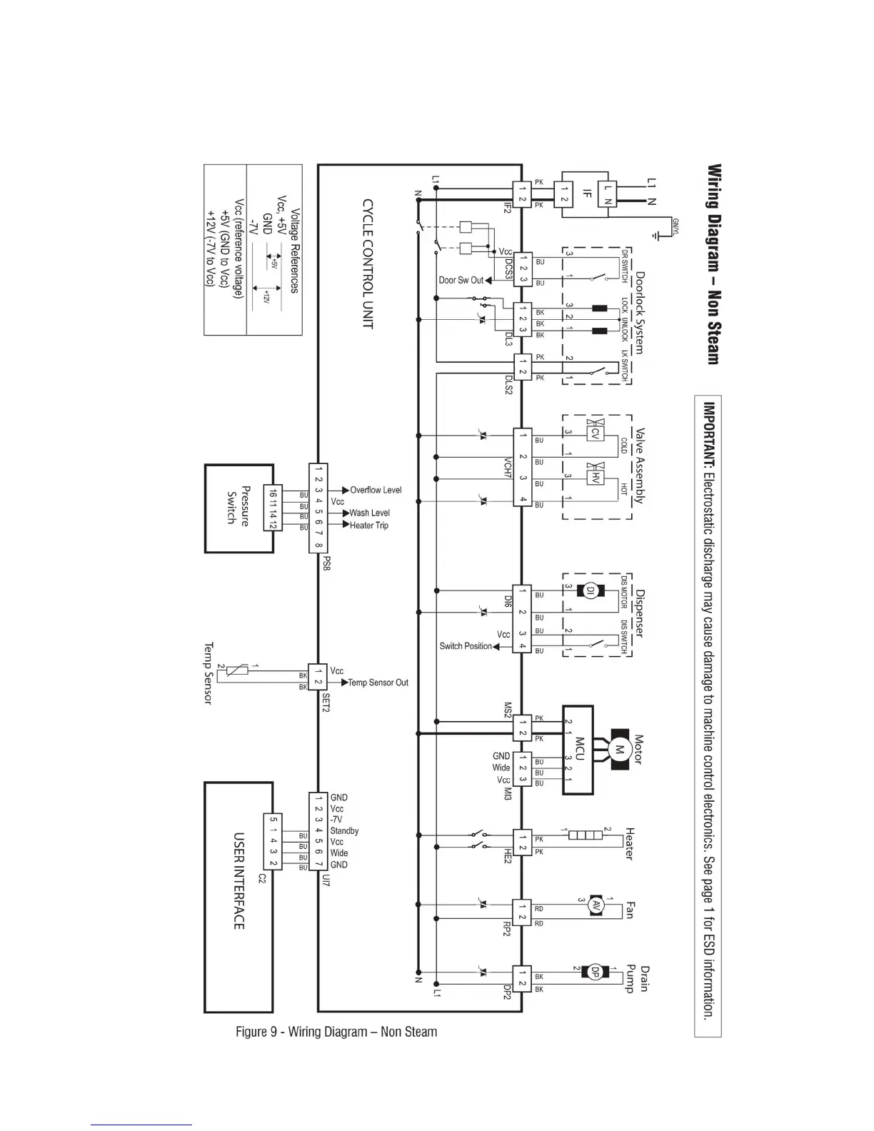
WIRING DIAGRAMS
WASHER NON-STEAM

Other manuals for Whirlpool WFW94HEX

Related product manuals