EasyManua.ls Logo

Whirlpool WFW94HEX - Washer Steam

Whirlpool WFW94HEX
86 pages
Print Icon
To Next Page IconTo Next Page
To Next Page IconTo Next Page
To Previous Page IconTo Previous Page
To Previous Page IconTo Previous Page
Loading...
7-2
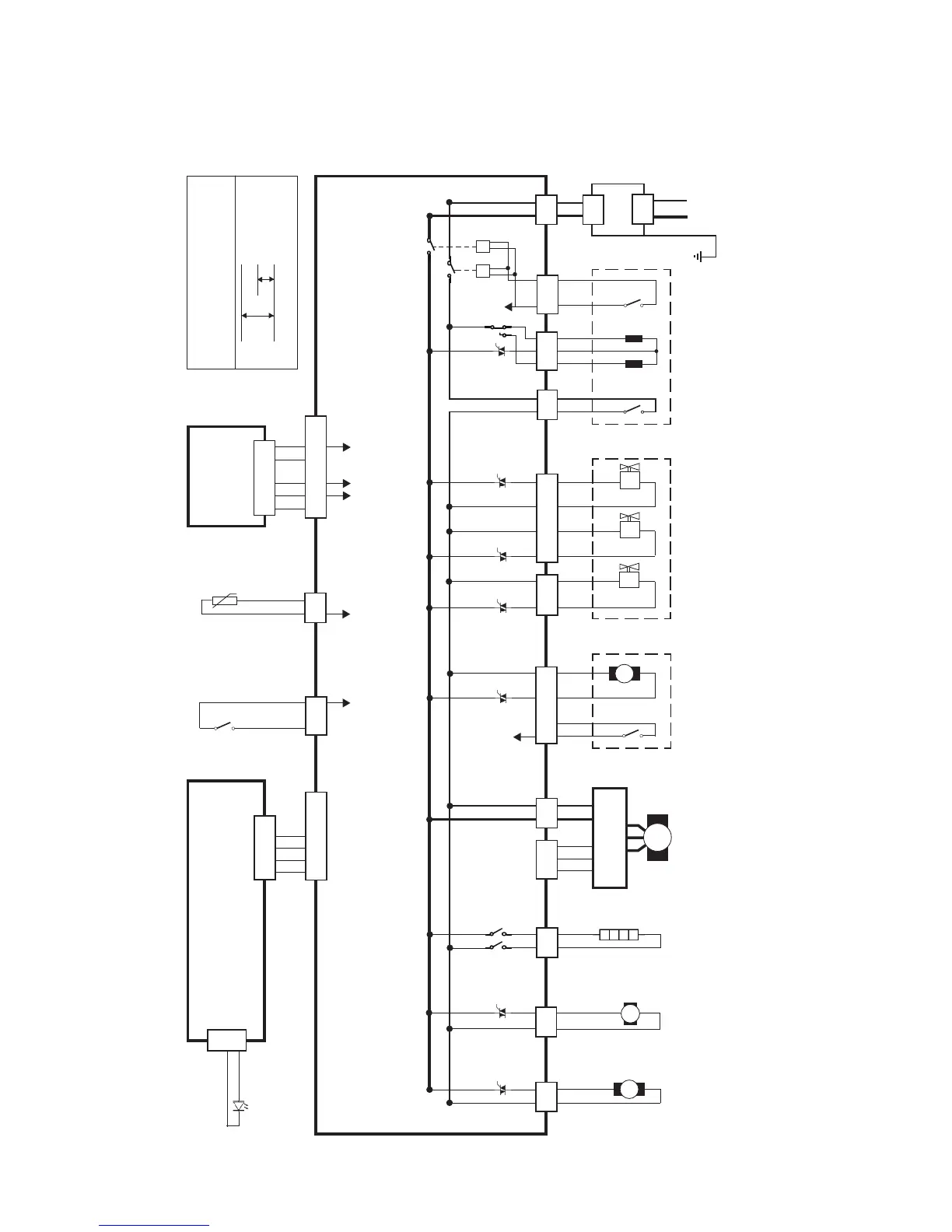
Wiring Diagram – Steam
IMPORTANT:
Electrostatic discharge may cause damage to machine control electronics. See page 1 for ESD information.
DL3 DLS2DCS3
Doorlock System
IF
HE2
DP2
Heater
Drain
Pump
N
L1
IF2
1 2
1 2
L N
3 1 3 12 1
1 2 3
1 21 2 3
2
1 2
1
DP
2
LOCK UNLOCKDR SWITCH LK SWITCH
1
2
PK
PK
BU
BU
BK
BK
BK
PK
PK
BK
BK
PK
PK
GN/YL
1 2
L1
N
L1
N
RP2
Fan
AV
3
1
RD
RD
1 2
VCH7 VSF2
Valve Assembly
1 2
3
1 2 3 4
3
3 1
COLD
HOT STEAM
CV
HV
SV
11
RD
RD
BU
BU
BU
BU
DI6
Dispenser
1 2 3 4
3 1 2 1
DIS MOTOR DIS SWITCH
DI
BU
BU
BU
BU
Vcc
Switch Position
Vcc
Door Sw Out
Motor
MS2 MI3
M
1 2 1 2 3
MCU
1
2
3 2 1
PK
PK
BU
BU
BU
GND
Wide
Vcc
CYCLE CONTROL UNIT
UI7FM3
PS8
SET2
Flow Meter
USER INTERFACE
Temp Sensor
Pressure
Sensor
Drum Light
1 2 3
1
3
5 1 4 3 2
1 2 3 4 5 6 7
C2
1 2 3
1
2
P13
1 2
1
2
1 2 3 4 5 6 7 8
YL
YL
BU
BU
BU
BU
BU
BU
BU
BU
BU
BU
BU
BK
BK
Vcc
Vcc
Vcc
Standby
Vcc
GND
Wide
Flow Meter Out
GND
Overflow Level
Heater Trip
Analog Input
6 5 4 3 2 1
Vcc, +5V
GND
-7V
+5V
+12V
-7V
Vcc
GND
Vcc (reference voltage)
+5V (GND to Vcc)
+12V (-7V to Vcc)
Voltage References
Temp Sensor Out
WIRING DIAGRAMS
WASHER STEAM

Other manuals for Whirlpool WFW94HEX

Related product manuals