EasyManua.ls Logo

YASKAWA V7 - Page 137

YASKAWA V7
157 pages
Print Icon
To Next Page IconTo Next Page
To Next Page IconTo Next Page
To Previous Page IconTo Previous Page
To Previous Page IconTo Previous Page
Loading...
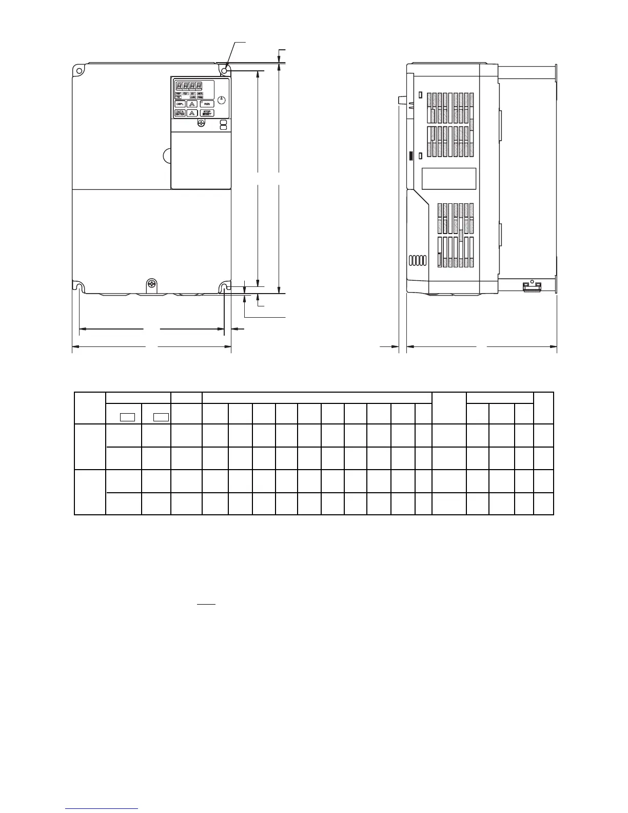
A5-3
H1
H
4-d
0.06
(1.5)
H2
W
0.09
(2.20)
0.33
(8.5)
D
W1
W2
Model Size Dimensions in inches (mm) Weight Heat Loss (W)
Voltage
CIMR- Lbs. Heat-
Class
V7* MV
HP W H D W1 H1 H2 W2 H3 H4 d
(kg) sink
Internal Total
Fig.
25P5 A025 7.5 7.09 10.24 6.70 6.46 9.61 0.31 0.31 M5 11.45 170.4 79.4 249.8 3
230V (180) (260) (170) (164) (244) (8) (8) (5.2)
3-phase 27P5 A033 10 7.09 10.24 6.70 6.46 9.61 0.31 0.31 M5 11.89 219.2 98.9 318.1 3
(180) (260) (170) (164) (244) (8) (8) (5.4)
45P5 B015 10 7.09 10.24 6.70 6.46 9.61 0.31 0.31 M5 10.14 168.8 87.7 256.5 3
460V (180) (260) (170) (164) (244) (8) (8) (4.6)
3-phase 47P5 15
(3)
7.09 10.24 6.70 6.46 9.61 0.31 0.31 M5 10.58 209.6 99.3 308.9 3
(180) (260) (170) (164) (244) (8) (8) (4.8)
V7 Enclosed wall mounted type (NEMA type 1)
Fig. 3
(1)
When drives include network communications option board, add 1.5" to drive depth.
(2)
230 and 460V drives represented in Figure 3 can be used as “IP00” type enclosures
if the top and bottom covers are removed.
(3)
Horsepower rating of 15 only available as V74X drive.

Table of Contents

Related product manuals