EasyManua.ls Logo

YOKOGAWA CW240 - Page 69

YOKOGAWA CW240
388 pages
Print Icon
To Next Page IconTo Next Page
To Next Page IconTo Next Page
To Previous Page IconTo Previous Page
To Previous Page IconTo Previous Page
Loading...
4-13
IM CW240E
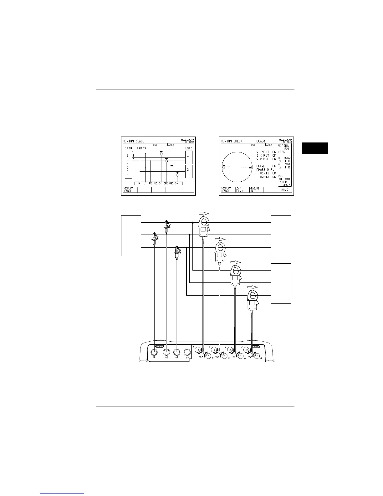
Wiring
4
4.5 Carrying out Wiring
4.5.6 Single-phase Three-wire / Two Loads (1P3W)
The CW240 can simultaneously measure multiple loads of the same power
supply (voltage shared).
WIRING DIAGRAM Screen WIRING CHECK Screen
Actual Wiring
N
I
N
I
22
N
I
2
Power
supply
Load
1
Load
2
Black
Red
Yellow
SEE ALSO
For more information on wiring checks, see Section 4.7, Checking Wiring.

Table of Contents

Related product manuals