EasyManua.ls Logo

AGI HI ROLLER - Page 47

Default Icon
134 pages
Print Icon
To Next Page IconTo Next Page
To Next Page IconTo Next Page
To Previous Page IconTo Previous Page
To Previous Page IconTo Previous Page
Loading...
HI ROLLER - BELT CONVEYORS 5. INSTALLATION
HI ROLLER, MINI ROLLER, LO ROLLER & HI LIFE 5.4. BELT INSTALLATION
P115506 R3 47
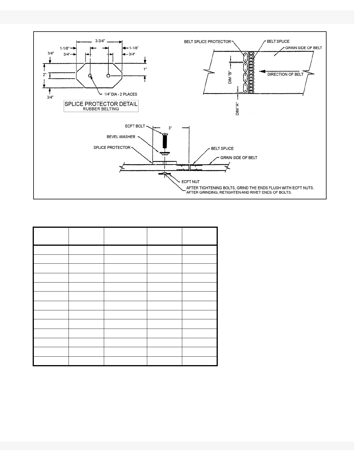
Figure 5.17 Specifications
Table 5.1 Belt Splice Protector / Wiper Cleat Spacing
Belt
Width
No. Pads ECFT Bolts Dim. A Dim. B
12” 3 6 3/16” 3/16”
16” 4 8 1/4” 3/16”
18” 4 8 3/4” 1/2”
20” 5 10 1/4” 3/16”
22” 5 10 5/8” 1/2”
24” 6 12 1/4” 3/16”
26” 6 12 1/2” 1/2”
30” 7 14 3/8” 1/2”
36” 9 18 1/8” 1/4”
42” 10 20 9/16” 3/8”
48” 12 24 1/8” 1/4”
54” 13 26 3/8” 3/8”
60” 14 28 1/2” 1/2”

Table of Contents

Related product manuals