EasyManua.ls Logo

AGI HI ROLLER - Plug Switch

Default Icon
134 pages
Print Icon
To Next Page IconTo Next Page
To Next Page IconTo Next Page
To Previous Page IconTo Previous Page
To Previous Page IconTo Previous Page
Loading...
5. INSTALLATION HI ROLLER - BELT CONVEYORS
5.9. HAZARD MONITORING DEVICES HI ROLLER, MINI ROLLER, LO ROLLER & HI LIFE
58 P115506 R3
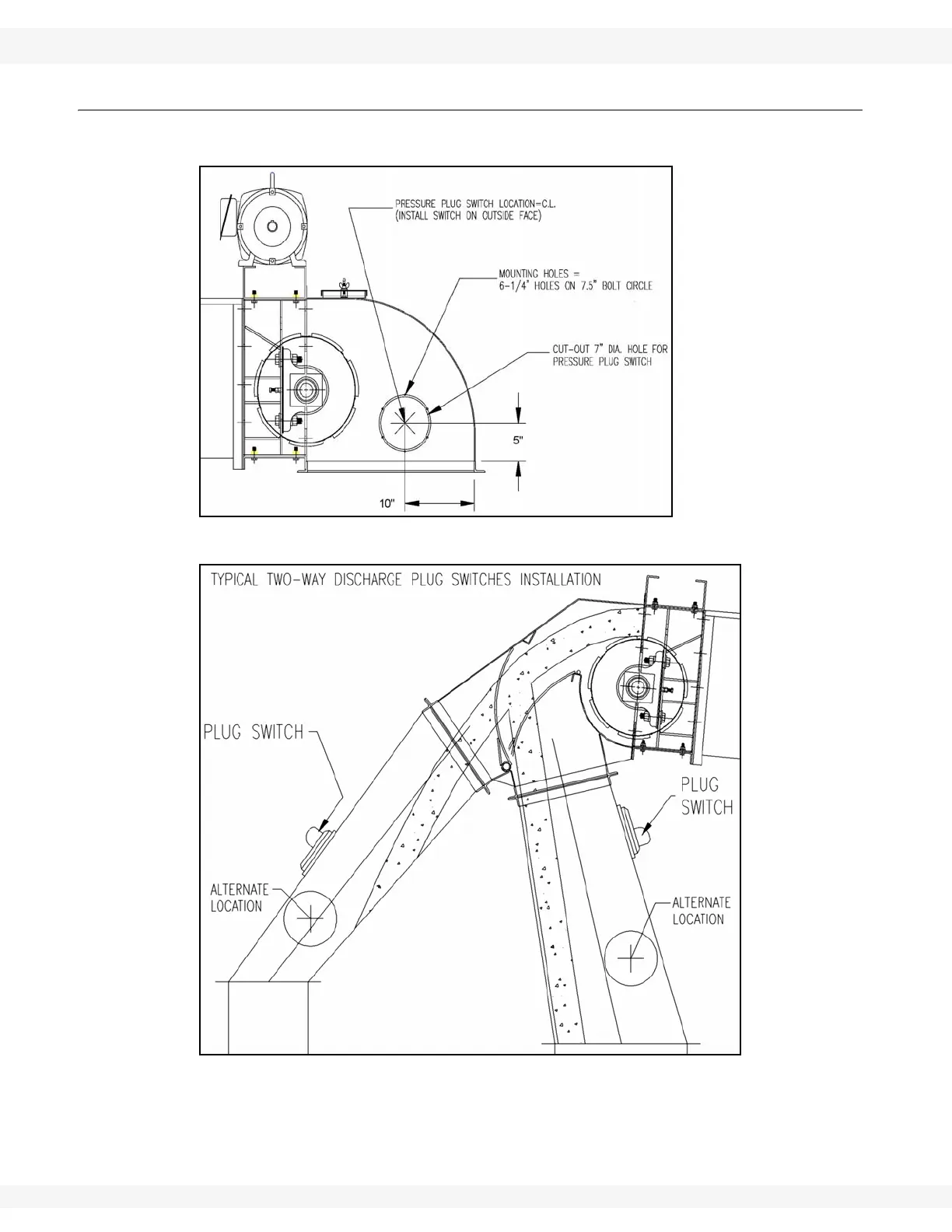
5.9.2. PLUG SWITCH
Properly installed and tested plug switches must be included in the design.
Figure 5.32
Figure 5.33

Table of Contents

Related product manuals